Version: 8.26.0Navigation überspringen
Aengevelt Immobilien GmbH & Co KG
Mietkosten auf Anfrage
4.331 m² Bürofläche  •  teilbar ab 587 m²

Bürofläche zur Miete • provisionsfrei
Mietkosten auf Anfrage
4.331 m² Bürofläche  •  teilbar ab 587 m²

Flexible Büroflächen in bester Verkehrslage

Das viergeschossig Büro- und Logistikgebäude verfügt über ein einladendes Entrée und eine gepflegte Außenfassade.
Die Büroflächen, welche Sie über einen der drei Personenaufzüge erreichen, sind modern und effizient. In der hauseigenen Tiefgarage in den Untergeschossen stehen ausreichend Parkplätze zur Verfügung. Die Produktionsfläche im Erdgeschoss verfügt über 3,80 m hohe Decken.

Merkmale

  • Bezug: nach Vereinbarung
  • Barrierefrei
  • Personenaufzug
  • voll klimatisiert
Die Büroflächen sind mit Fensterbank Kanälen ausgestattet, über die die Verkabelung im CAT-7-Standard erfolgt - ideal für eine leistungsstarke und moderne IT-Infrastruktur. Eine Klimaanlage sorgt für angenehme Temperaturen auch an heißen Tagen, während der außenliegende Sonnenschutz zusätzlichen Hitzeschutz bietet. Die flexible Raumaufteilung ermöglicht eine individuelle Gestaltung der Flächen - ganz nach den Anforderungen des Nutzers. Dank der durchdachten technischen Ausstattung sind die Räume sowohl für klassische Bürokonzepte als auch für moderne Open-Space-Lösungen geeignet. So lassen sich Arbeitsumgebungen schaffen, die Funktionalität und Komfort optimal miteinander verbinden.

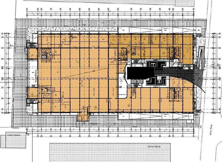
Grundrisse

Grundrisse
1 / 3

Bausubstanz und Energie

Energieausweis

Endenergieverbrauch (Wärme)

Endenergieverbrauch (Strom)

  • Baujahr1992
  • Zustand der ImmobilieGepflegt
  • EnergieträgerGas

Mietkosten

Nettomiete zzgl. Nebenkosten
nicht angegeben
Nebenkosten
3,50 €
Heizkosten
in Warmmiete enthalten
Provision für Mieter
provisionsfrei; Die Anmietung über unser Haus erfolgt für den Mieter provisionsfrei. Im Übrigen gelten unsere Allgemeinen Geschäftsbedingungen (AGB).
Kaution
keine Angabe

Lage

address-icon
Nieder-EschbachFrankfurt am Main (60437)
Der Anbieter hat die genaue Adresse nicht freigegeben
Die Berner Straße 38 befindet sich in verkehrsgünstiger Lage im nördlichen Stadtgebiet von Frankfurt am Main. Der Standort ist hervorragend an den öffentlichen Nahverkehr angebunden: Mehrere Buslinien verkehren in fußläufiger Entfernung und bieten eine direkte Verbindung zu wichtigen Knotenpunkten im Stadtgebiet. Die Autobahn A661 ist in wenigen Minuten erreichbar und ermöglicht eine schnelle Anbindung an das überregionale Verkehrsnetz sowie an das Frankfurter Stadtzentrum. In der näheren Umgebung stehen vielfältige Einkaufsmöglichkeiten, gastronomische Angebote und weitere Einrichtungen des täglichen Bedarfs zur Verfügung - ideal für Mitarbeiter und Besucher gleichermaßen.

Weitere Informationen

Stichworte 4 Etagen

Weitere Services

Lust auf eine Besichtigung?
Eine Frage zur Immobilie?
Mit einer persönlichen Nachricht hast du bessere Chancen auf eine Antwort.
Mit der Nutzung der oben angegebenen Telefonnummer oder durch Klicken auf „Kontaktieren“ akzeptierst Du die Allgemeinen Nutzungsbedingungen, denen Du jederzeit widersprechen kannst. Weitere Informationen zum Datenschutz

Über den Anbieter

Kennedydamm 55/Ross-Strasse, 40476 Düsseldorf
partner badge
Partnerschaft
Frau Neelam Mahtani-Staehle
Frau Neelam Mahtani-StaehleDein Kontakt
Online-ID: 2526IU7UZ8E6
Referenznummer: 31625
Wie zufrieden bist du mit dieser Seite (nicht mit der Immobilie selbst)?