

Penthouse zum Kauf • provisionsfrei855750 €5.250 €/m²4 Zimmer • 163 m²
855750 €
5.250 €/m²
4 Zimmer • 163 m²
Exklusives Penthouse mit Dachterrasse - 4 Zimmer auf 163 m2 Wohnfläche
Merkmale
- Gäste-WC
- Terrasse
- Außen-Stellplatz
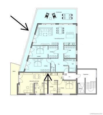
Grundrisse
Grundrisse
1 / 1
Realisiere Dein Projekt
Bausubstanz und Energie
Energieausweis
A+
- Baujahr1970
- Zustand der Immobilierenoviert / saniert
Preisdetails
Kaufpreis
855750 €
5.250 €/m²
Preis pro Stellplatz
7500 €
Provision für Käufer
provisionsfrei
Weitere Preisinformationen
1 Stellplatz, Kaufpreis: 7.500,00 EUR
Geschätzte Gesamtkosten
915.653 €1
Kaufpreis
855.750 €
Kaufnebenkosten
59.903 €
2Notarkosten (1,5%)
12.836 €
Grunderwerbsteuer (5%)
42.788 €
Grundbucheintrag (0,5%)
4.279 €
1Der angezeigte Wert ist eine automatisch berechnete Schätzung von immowelt.
2Bei den Angaben handelt es sich um ortsübliche Werte. Individuelle Kosten können abweichen.
Lage

Hardheim (74736)
Der Anbieter hat die genaue Adresse nicht freigegeben
Weitere Informationen
Weitere Services
Lust auf eine Besichtigung?
Eine Frage zur Immobilie?
Über den Anbieter
Am Stadtweg 5, 63927 Bürgstadt
Herr Maurice PfaffDein Kontakt
Weitere Unterlagen
Online-ID: 25ZZCGMRJL6F
Referenznummer: Wohnung 6.2

Pfaff Finanzberatung GmbH
Bewertung: 5 von 5 Sternen
Wie zufrieden bist du mit dieser Seite (nicht mit der Immobilie selbst)?

