

Büro zum Kauf1500000 €
1500000 €
Büro 300m2 zum Kauf - Split-Dalmatia, Split
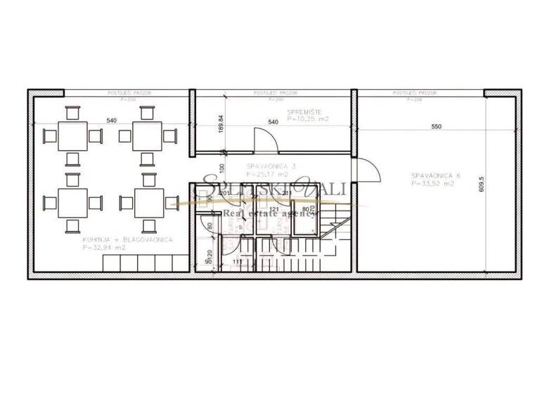
Grundrisse
Grundrisse
1 / 2
Realisiere Dein Projekt
Bausubstanz und Energie
Möchtest du Details zum Energieverbrauch?

Preisdetails
Kaufpreis
1500000 €
Provision für Käufer
Bitte beachte, das Angebot kann bei Vertragsabschluss die Zahlung einer Provision beinhalten. Weitere Informationen erhältst Du vom Anbieter.
Lage

Split
Der Anbieter hat die genaue Adresse nicht freigegeben
Weitere Informationen
Weitere Services
Lust auf eine Besichtigung?
Eine Frage zur Immobilie?
Über den Anbieter
Online-ID: 25AGM9579LE9
Referenznummer: 18695101_3

Crozilla.com
Wie zufrieden bist du mit dieser Seite (nicht mit der Immobilie selbst)?

