Version: 8.25.1Navigation überspringen
415.000 €
4 Zimmer  •  115,1 m²  •  438 m² Grundstück
Immowelt logo

Einfamilienhaus zum Kauf
415000 €
3.605 €/m²
4 Zimmer  •  115,1 m²  •  438 m² Grundstück

Familienglück trifft Neubaukomfort: Helles Haus mit Garten und Wohlfühlcharakter

Dieses charmante Einfamilienhaus verbindet modernen Komfort mit wohnlicher Atmosphäre. Über zwei Ebenen verteilt und 2015 umfassend saniert, besticht es durch eine durchdachte und vielseitige Raumaufteilung.

Im EG führt ein zentraler Flur in das helle Wohn-/Esszimmer mit direktem Zugang zur Terrasse und zum Garten. Die Küche, das Bad mit Wanne sowie begehbarer Dusche, ein Hauswirtschaftsbereich und der praktische Abstellraum ergänzen das Raumangebot im EG.

Im OG erwartet Sie ein großzügiges Schlafzimmer mit möglichem separatem Ankleidebereich, zwei weitere Zimmer, die als Kinderzimmer oder Büro dienen können und ein separates WC. Die Haustechnik mit Gas-Kombi-Therme aus 2016 ist hier ebenfalls platzsparend untergebracht.

Terrasse, Garten und die vielseitigen Räume machen das Haus ideal für Familien oder für individuelles Wohnen und Arbeiten. Ein Schwedenofen im Wohnzimmer rundet das gemütliche Wohnambiente ab.

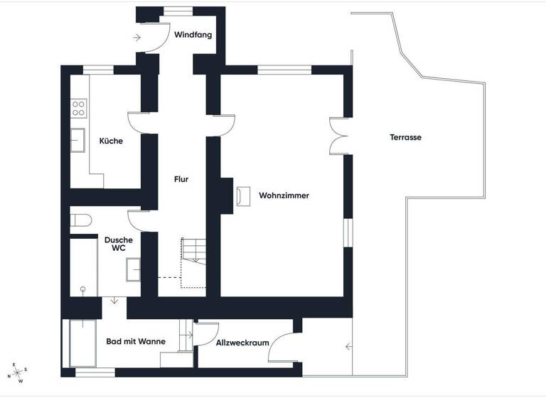
Auf einen Blick:
EG:
* Windfang: ca. 3 m²
* Flur: ca. 10 m²
* Wohnzimmer: ca. 26 m²
* Küche: ca. 8 m²
* Bad mit Wanne, Dusche, WC/Zugang Hauswirtschaftsbereich: ca. 12 m²
* Allzweckraum: ca. 5 m²
* Terrasse

DG:
* Schlafen: ca. 22 m²
* Arbeiten: ca. 6 m²
* Kind: ca. 8 m²
* WC: ca. 2 m²
* Flur

Der Energieausweis liegt zur Besichtigung vor.

B E S I C H T I G U N G E N:
Wir freuen uns auf Ihre Anfrage! Für eine Besichtigung bitten wir Sie, das Kontaktformular vollständig auszufüllen (inkl. Adresse und Telefonnummer). Im Anschluss senden wir Ihnen weitere Informationen per E-Mail zu. Sollte keine Nachricht bei Ihnen ankommen, schauen Sie bitte auch in Ihrem Spam-Ordner nach. Bei Fragen oder für eine persönliche Auskunft sind wir gerne telefonisch unter 0871/97309501 für Sie da.

Merkmale

  • Bezug: sofort
  • 438 m² Grundstück
  • Badezimmer: Badewanne, Bad mit Dusche, Bad mit Fenster
  • Kein Keller
  • Bodenbelag: Fliesen, Laminat
  • Terrasse
  • 2 Stellplätze: Garage, Außen-Stellplatz
* Energetischer Zustand Neubau-ähnlich (Energieeffizienzklasse A)
* Teilweise Fußboden-Heizung
* Einbauküche im Kaufpreis inklusive
* Schwedenofen im Wohnzimmer
* Badezimmer mit Fenster, Wanne und begehbarer Dusche
* Separates WC
* Hauswirtschaftsbereich mit Waschmaschinenanschluss
* Garten
* Terrasse
* Breite Einzelgarage mit Waschbecken und Hobbyraum

Grundrisse

Grundrisse
1 / 2

Realisiere Dein Projekt

Bausubstanz und Energie

Energieausweis

A
  • Baujahr1950
  • Zustand der ImmobilieMassivhaus, renoviert / saniert
  • EnergieträgerFlüssiggas
Immowelt logo

Preisdetails

Kaufpreis
415000 €
3.604,93 €/m²
Provision für Käufer
3,57 % inkl. MwSt.
Weitere Preisinformationen
1 Stellplatz
1 Garagenstellplatz
Geschätzte Gesamtkosten
452.640 €1
Kaufpreis
415.000 €
Notarkosten (1,5%)
6.225 €
Grunderwerbsteuer (3,5%)
14.525 €
Provision für Käufer (3,57%)
14.815 €
Grundbucheintrag (0,5%)
2.075 €
1Der angezeigte Wert ist eine automatisch berechnete Schätzung von immowelt.
2Bei den Angaben handelt es sich um ortsübliche Werte. Individuelle Kosten können abweichen.

Lage

address-icon
SeyboldsdorfVilsbiburg / Seyboldsdorf (84137)
Der Anbieter hat die genaue Adresse nicht freigegeben
Die Immobilie befindet sich in Seyboldsdorf, ein Ortsteil der Stadt Vilsbiburg im niederbayerischen Landkreis Landshut.

Seyboldsdorf ist ein charmanter Ort, der eine gute Balance zwischen ländlicher Ruhe und Nähe zur städtischen Anbindung bietet. Die Umgebung zeichnet sich durch ihre Nähe zur Natur aus und eignet sich hervorragend für entspannende Spaziergänge. Ein Fahrradweg führt direkt nach Vilsbiburg und lädt zu entspannten Radtouren ein. Es gibt zudem eine Walderlebnisgruppe für Kinder und einen eigenen Kindergarten im Ort. Es soll zudem ein eigener Dorfladen für den täglichen Einkauf eröffnen.

Im nur ca. 3 km entfernten Vilsbiburg (ca. 5 min Auto/ca. 10 min Fahrrad) finden Sie weitere Einkaufsmöglichkeiten wie etwa einen Bioladen, Edeka, Lidl, Aldi, Norma und dm, mehrere Arztpraxen, Apotheken und ein Krankenhaus. In Vilsbiburg sind auch weitere Kindergärten und Schulen (Grundschule bis Gymnasium) beheimatet.

Mit den zugänglichen Busverbindungen gelangen Sie in regelmäßigen Abständen von Seyboldsdorf nach Vilsbiburg, Geisenhausen oder Landshut. Die Bushaltestellen befinden sich quasi direkt vor der Haustüre.

Entfernungen in km:
* Vilsbiburg: ca. 2,5 km
* Geisenhausen: ca. 7,5 km
* Landshut: ca. 20 km
* Flughafen München: ca. 54 km

Weitere Informationen

Sonstiges Unser Service für Sie als Eigentümer: Wir bewerten gern kostenfrei Ihre Immobilie entsprechend dem aktuellen Marktwert, entwickeln eine Ihrem Objekt angepasste Verkaufsstrategie und stehen Ihnen bis zum erfolgreichen Verkauf zur Verfügung. Carossa Immobilien steht als Maklerunternehmen mit seinen Mitarbeitern und Kollegen für die Werte Seriosität, Zuverlässigkeit und Diskretion. Unser Netzwerk ermöglicht es uns, Verkäufer bzw. Vermieter und Interessenten bestmöglich zusammenzuführen. Wir können Ihnen bereits in den ersten Gesprächen mitteilen, wie viele vorgemerkte Suchinteressenten wir haben. Kommen Sie einfach bei uns vorbei, rufen Sie uns an oder senden Sie uns eine E-Mail. Wir freuen uns, Sie kennen zu lernen.

Das Exposé wurde auf der Grundlage der Carossa Immobilien GmbH zugänglichen Informationen erstellt mit dem Vorbehalt, dass sich bezüglich der Angaben Änderungen ergeben können. Die Angaben sowie das Angebot sind freibleibend. Sämtliche Angaben sind nach bestem Wissen und Gewissen erstellt worden. Für die Richtigkeit und Vollständigkeit der enthaltenen Angaben übernimmt die Carossa Immobilien GmbH keine Gewähr, da alle eingegebenen Informationen vom Eigentümer zur Verfügung gestellt werden. Alle hierin enthaltenen Informationen sind, soweit sie nicht öffentlich zugänglich sind, vertraulich zu behandeln und nur zum Zwecke eines möglichen Mieters oder Käufers zu verwenden. Stichworte Garage vorhanden, Stellplatz vorhanden, Anzahl der Schlafzimmer: 3, Anzahl der Badezimmer: 1, Anzahl der separaten WCs: 1, Anzahl Terrassen: 1, Distanz zum Kindergarten: 0.35, Distanz zur Grundschule: 4.00, Distanz zur Realschule: 4.00, Distanz zum Gymnasium: 4.00, Distanz zum Flughafen: 50.00, Distanz zum Hauptbahnhof: 7.80, Distanz zur Autobahn: 20.00

Weitere Services

Lust auf eine Besichtigung?
Eine Frage zur Immobilie?
Nachricht hinzufügen
Mit der Nutzung der oben angegebenen Telefonnummer oder durch Klicken auf „Kontaktieren“ akzeptierst Du die Allgemeinen Nutzungsbedingungen, denen Du jederzeit widersprechen kannst. Weitere Informationen zum Datenschutz

Über den Anbieter

Ergoldinger Str. 2a, 84030 Landshut
partner badge
10 Jahre Partnerschaft
Herr Kadir Keskin
Herr Kadir KeskinDein Kontakt
Online-ID: 26CLVNZFC1NF
Referenznummer: 11771
Carossa Immobilien
title
Carossa Immobilien
Bewertung: 4,8 von 5 Sternen
Nachricht hinzufügen
Mit der Nutzung der oben angegebenen Telefonnummer oder durch Klicken auf „Kontaktieren“ akzeptierst Du die Allgemeinen Nutzungsbedingungen, denen Du jederzeit widersprechen kannst. Weitere Informationen zum Datenschutz
Wie zufrieden bist du mit dieser Seite (nicht mit der Immobilie selbst)?