Halle, Hochlager, großer überdachter Unterstand, Freifläche, Büro etc. - alles vorhanden
Zur Vermietung steht eine vielseitig nutzbare Gewerbefläche.
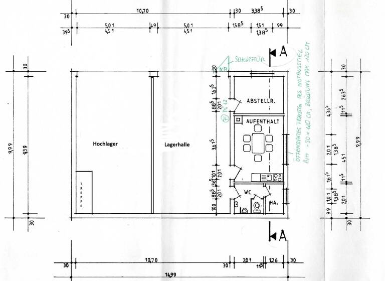
Die Halle mit großem Rolltor und Bürotrakt wurde 1991 in Massivbauweise errichtet. In der Halle befindet sich eine bis zur Decke hohe Fläche. Auf der rechten Hallenseite befindet sich in 2. Ebene ein Hochlager, das über eine Treppe oder über eine gabelstaplergeeignete Bestückung erreicht werden kann.
Der linke Hallenteil beinhaltet ein Büro, einen Sozialraum mit Teeküche, einen Hausanschlussraum sowie ein Duschbad. Über dem Bürotrakt befindet sich ein weiteres Hochlager.
Der Außenbereich bietet große Lager- und Parkflächen. Ein massives Hochregal wird mit übergeben. Es ist ein im Boden eingelassener Containerplatz vorhanden für die gute Beladung eines solchen Containers. Hinzu kommt ein großes Schleppdach, das ohne störende Mittelstütze sehr vielseitig genutzt und auch mit LKW befahren werden kann.
Das gesamte Grundstück ist eingezäunt und durch ein massives Tor geschützt.
Die Gewerbefläche lässt unzählige Nutzungsmöglichkeiten zu.
Alle Preisangaben verstehen sich zzgl. MwSt.
Merkmale
1.049 m² Grundstück
Bodenbelag: Fliesen, Stein
Grundrisse
Grundrisse
1 / 1
Realisiere Dein Projekt
Bausubstanz und Energie
Energieausweis
Endenergieverbrauch (Wärme)
Endenergieverbrauch (Strom)
Baujahr1991
EnergieträgerGas
Mietkosten
Nettomiete
1.500 €
Nebenkosten
150 €
Zusätzliche Kosten
Heizkosten
Provision für Mieter
2 Monats-Kaltmieten zzgl. MwSt.
Kaution
3000 €3.000 €
Lage
Nickenich (56645)
Der Anbieter hat die genaue Adresse nicht freigegeben
Das Gewerbegrundstück befindet sich in in sehr guter Gewerbelage im Gewerbegebiet am Rand des bevorzugten Ortes Nickenich. Hier passen noch ländliches Leben verbunden mit sehr guter Infrastruktur und Verkehrsanbindung zusammen.
Die Autobahnen A61 und A48 befinden sich quasi direkt vor der Türe - ebenfalls die Bundesstraße B9. Es ist eine Anfahrt auch mit 40-Tonnen-LKWs zu jeder Tages- und Nachtzeit möglich.
In Nickenich sind Kindergarten, Grundschule, Ärzte, Apotheken und Einkaufsmöglichkeiten vorhanden. Der Ort selbst präsentiert sich sehr modern und bürgernah. Die Städte Andernach, Mendig und Mayen befinden sich in unmittelbarer Nähe.
Gerne vereinbaren wir mit Ihnen einen Besichtigungstermin. Wir freuen uns auf Ihren Anruf unter 02651-73002.
Weitere Immobilienangebote finden Sie unter www.immonick.de