Version: 8.25.1Navigation überspringen
309.000 €
3 Zimmer  •  62,7 m²  •  3. Geschoss
Immowelt logo

Wohnung zum Kauf
309000 €
4.850 €/m²
3 Zimmer  •  62,7 m²  •  3. Geschoss

Helle 3-Zimmer-Wohnung im 3. OG in zentraler Lage von Schmargendorf

Die zum Kauf angebotene Eigentumswohnung befindet sich in einer gepflegten Wohnanlage mit insgesamt ca. 159 Einheiten. Die Anlage erstreckt sich über mehrere Etagen vom Erdgeschoss bis zum dritten Obergeschoss und bietet ein angenehmes Wohnumfeld.

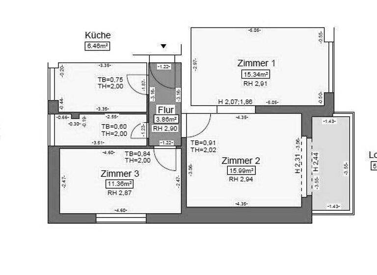
Die Wohnung selbst liegt im 3. Obergeschoss rechts und verfügt über eine Wohnfläche von ca. 62,74 m², verteilt auf drei gut geschnittene Zimmer. Ein besonderes Highlight ist der gemütliche Erker, der den Wohnraum aufwertet und für eine helle, freundliche Atmosphäre sorgt. Der Boden ist mit pflegeleichtem Laminat ausgestattet, das für eine moderne Optik und hohen Wohnkomfort sorgt.

Das Tageslichtbad mit Badewanne bietet eine angenehme Rückzugsmöglichkeit zum Entspannen. Zusätzlich steht den Bewohnern ein Kellerraum zur Verfügung, der praktischen Stauraum schafft.

Die Immobilie überzeugt nicht nur durch ihre gut durchdachte Raumaufteilung, sondern auch durch ihre attraktive Lage mit guter Infrastruktur und Anbindung.

Merkmale

  • 3. Geschoss

Grundrisse

Grundrisse
1 / 2

Realisiere Dein Projekt

Bausubstanz und Energie

Energieausweis

E
  • Baujahr1929
Immowelt logo

Preisdetails

Kaufpreis
309000 €
4.850 €/m²
Hausgeld
296.05 €
Provision für Käufer
2,38 % Käuferprovision inkl. gesetzl. gültiger MwSt. inkl. MwSt.
Geschätzte Gesamtkosten
341.074 €1
Kaufpreis
309.000 €
Notarkosten (1,5%)
4.635 €
Grunderwerbsteuer (6%)
18.540 €
Provision für Käufer (2,38%)
7.354 €
Grundbucheintrag (0,5%)
1.545 €
1Der angezeigte Wert ist eine automatisch berechnete Schätzung von immowelt.
2Bei den Angaben handelt es sich um ortsübliche Werte. Individuelle Kosten können abweichen.

Lage

address-icon
Hohenzollerndamm 76SchmargendorfBerlin (14199)
Die angebotene Eigentumswohnung befindet sich in einer der begehrtesten Wohnlagen Berlins, im charmanten Stadtteil Schmargendorf. Die Umgebung zeichnet sich durch ihre exzellente Infrastruktur und die schnelle Erreichbarkeit zahlreicher Einrichtungen des täglichen Bedarfs aus.
Die Anbindung an die öffentlichen Verkehrsmittel ist hervorragend: Mehrere Buslinien sind in wenigen Gehminuten erreichbar, die nächste Bushaltestelle liegt nur etwa 300 Meter entfernt. Die S-Bahnstation Hohenzollerndamm erreichen Sie ebenfalls fußläufig in etwa 10 Minuten, was eine optimale Mobilität in alle Richtungen der Hauptstadt garantiert. Auch für den Individualverkehr ist die Lage ideal, da die Stadtautobahn A100 in wenigen Minuten erreichbar ist, was schnelle Verbindungen sowohl in die Innenstadt als auch zu den überregionalen Verkehrswegen ermöglicht.
In der unmittelbaren Umgebung der Wohnung finden sich zahlreiche Einkaufsmöglichkeiten, darunter Supermärkte, Bäckereien und Feinkostläden, die eine bequeme Nahversorgung gewährleisten. Ebenso stehen Ihnen vielfältige gastronomische Angebote und gemütliche Cafés zur Verfügung, die zum Verweilen und Genießen einladen.
Für Familien sind Schulen, Kindergärten und Spielplätze ebenfalls in der näheren Umgebung vorhanden, was die Lage besonders attraktiv für junge Familien macht. Zudem bieten die nahegelegenen Grünflächen und Parks, wie der idyllische Grunewald, vielfältige Erholungs- und Freizeitmöglichkeiten inmitten der Natur.

Weitere Informationen

Sonstiges SONSTIGES:
Zur Wahrung der Privatsphäre unserer Kunden können wir Ihnen die ausführlichen Informationen und das aussagekräftige Bildmaterial zu dieser Immobilie erst übermitteln, wenn Sie uns Ihre vollständigen Kontaktdaten mitgeteilt haben. Ihre Daten werden selbstverständlich vertraulich behandelt und nicht an Dritte weitergegeben. Das Exposé erhalten Sie je nach Wunsch entweder per Post oder per E-Mail.

HAFTUNG:
Alle Angaben sind ohne Gewähr und basieren ausschließlich auf Informationen, die uns von unserem Auftraggeber übermittelt wurden. Wir übernehmen keine Haftung für die Vollständigkeit, Richtigkeit und Aktualität dieser Angaben. Irrtum und Zwischenverkauf/-vermietung vorbehalten.

GELDWÄSCHE:
"Wenn Sie der Immobilienmakler nach dem Personalausweis fragt ..."
Wie viele andere Branchen und Berufe sind auch die Immobilienmakler verpflichtet, die Geschäftspartner gemäß Vorgaben des Geldwäschegesetzes (§ 3 GwG) zu identifizieren. Die Identifizierung des Interessenten durch den Immobilienmakler muss erfolgt sein, bevor die Aufnahme der Vertragshandlungen ermöglicht wird. Hierzu ist es erforderlich, dass wir die relevanten Daten Ihres Personalausweises festhalten - beispielsweise mittels einer Kopie. Das Geldwäschegesetz (GwG) sieht vor, dass der Makler die Kopien bzw. Unterlagen fünf Jahre aufbewahren muss.

PROVISION:
Sofern es durch die Tätigkeit von Krossa & Co. Immobilien GmbH zu einem wirksamen Vertrag kommt, ist bei notariellem Kaufvertragsabschluss eine Courtage auf den Kaufpreis inklusive der gesetzlich gültigen MwSt. verdient und fällig und vom Käufer an die Krossa & Co. Immobilien GmbH zu zahlen. Grunderwerbssteuer, Notar- und Grundbuchkosten sind vom Käufer zu tragen.


DATENSCHUTZ:
Unsere Datenschutzbestimmungen entnehmen Sie bitte unserer Homepage. Stichworte vermietbare Fläche: 62,74 m², Wohnungsnr.: WE08, Distanz zum Flughafen: 27.00, Distanz zum Hauptbahnhof: 10.00, Distanz zur Autobahn: 0.50, Distanz zum Bus: 6.00

Weitere Services

Lust auf eine Besichtigung?
Eine Frage zur Immobilie?
Nachricht hinzufügen
Mit der Nutzung der oben angegebenen Telefonnummer oder durch Klicken auf „Kontaktieren“ akzeptierst Du die Allgemeinen Nutzungsbedingungen, denen Du jederzeit widersprechen kannst. Weitere Informationen zum Datenschutz

Über den Anbieter

Dachsberg 9, 14193 Berlin
partner badge
10 Jahre Partnerschaft
Team Büro CharlottenburgDein Kontakt
Online-ID: 258S9A49LWG1
Referenznummer: 1560_WE08_1
Krossa & Co. Immobilien GmbH
Krossa & Co. Immobilien GmbH
Nachricht hinzufügen
Mit der Nutzung der oben angegebenen Telefonnummer oder durch Klicken auf „Kontaktieren“ akzeptierst Du die Allgemeinen Nutzungsbedingungen, denen Du jederzeit widersprechen kannst. Weitere Informationen zum Datenschutz
Wie zufrieden bist du mit dieser Seite (nicht mit der Immobilie selbst)?