4 Zimmer • 125 m² • 238 m² Grundstück • frei ab sofort
1 / 26
1 / 26
Doppelhaushälfte zum Kauf
530000 €530.000 €
4.240 €/m²
4 Zimmer • 125 m² • 238 m² Grundstück • frei ab sofort
Modernes Wohnen in gepflegtem Ambiente Innen wie außen stilvoll gestaltet - sofort bezugsbereit. (Nähe Tesla Grünheide)
Einziehen, ankommen und sich vom ersten Moment an zuhause fühlen: Diese stilvolle Doppelhaushälfte überzeugt durch ein durchdachtes Gesamtkonzept, hochwertige Ausstattung und ein Wohngefühl, das innen wie außen begeistert.
Der offene Wohn-, Ess- und Küchenbereich bildet das Herzstück des Hauses und ist dank bodentiefer Fenster lichtdurchflutet und großzügig gestaltet. Hochwertige Materialien, eine elegante Einbauküche sowie maßgefertigte Einbaulösungen unterstreichen den modernen und gepflegten Charakter.
Besonders hervorzuheben ist die geschmackvoll gestaltete Außenanlage mit überdachtem Terrassenbereich und stilvoller Outdoor-Lounge – ideal zum Entspannen und Genießen. Die Immobilie wird inklusive der abgestimmten Innen- und Außeneinrichtung übergeben und ist somit sofort bezugsbereit.
Merkmale
frei ab sofort
238 m² Grundstück
Einbauküche, offene Küche
Kein Keller
Carport
Gäste-WC
Balkon
Garten
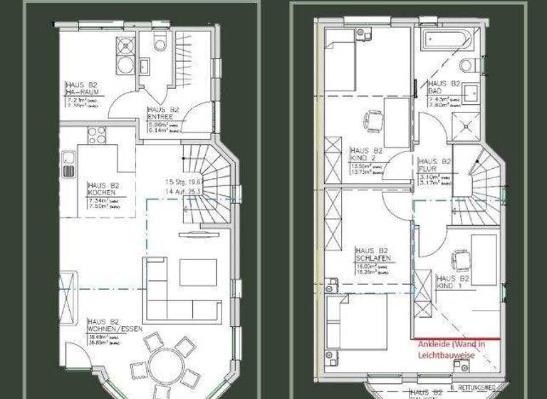
Grundrisse
Grundrisse
1 / 1
Realisiere Dein Projekt
Bausubstanz und Energie
Energieausweis
C
Baujahr2018
HeizungsartZentralheizung: Fußbodenheizung
EnergieträgerGas
Preisdetails
Kaufpreis
530000 €530.000 €
4.240 €/m²
Provision für Käufer
3,57 % inkl. MwSt.(Gesamtprovision von 7,14 %, geteilt zwischen Käufer und Verkäufer (jeweils 3,57 % inkl. 19 % Umsatzsteuer)
Geschätzte Gesamtkosten
593.971 €1
Kaufpreis
530.000 €
Kaufnebenkosten
63.971 €
2
Notarkosten (1,5%)
7.950 €
Grunderwerbsteuer (6,5%)
34.450 €
Provision für Käufer (3,57%)
18.921 €
Grundbucheintrag (0,5%)
2.650 €
1Der angezeigte Wert ist eine automatisch berechnete Schätzung von immowelt.
2Bei den Angaben handelt es sich um ortsübliche Werte. Individuelle Kosten können abweichen.
Lage
Finkensteig, Ahrensfelde (16356)
Die Immobilie befindet sich in Ahrensfelde, einer gefragten Wohnlage am nordöstlichen Stadtrand von Berlin. Die Umgebung ist geprägt von einem gepflegten und ruhigen Wohnumfeld mit viel Grün und angenehmer Nachbarschaft.
Die Anbindung ist hervorragend: Die S-Bahnlinie S7 sowie regionale Bahnverbindungen ermöglichen eine schnelle Erreichbarkeit der Berliner Innenstadt. Auch die Autobahn A10 (Berliner Ring) ist in wenigen Minuten erreichbar.
Ein besonderer Standortvorteil ist die gute Erreichbarkeit der Tesla Gigafactory in Grünheide, die in ca. 20 Minuten erreichbar ist und den Standort zusätzlich wirtschaftlich attraktiv macht.
Alle Einrichtungen des täglichen Bedarfs wie Einkaufsmöglichkeiten, Ärzte, Apotheken, Kitas und Schulen befinden sich in unmittelbarer Nähe. Gleichzeitig bieten die umliegenden Grünflächen, das Wuhletal sowie die Falkenberger Rieselfelder vielfältige Möglichkeiten für Erholung und Freizeit.
Eine ideale Kombination aus naturnahem Wohnen, urbaner Nähe und wirtschaftlich attraktivem Umfeld.
Weitere Informationen
Sonstiges
Alle Angaben in diesem Exposé beruhen auf Informationen der Eigentümer. Für die Richtigkeit und Vollständigkeit wird keine Gewähr übernommen. Dieses Exposé stellt kein vertragliches Angebot dar. Maßgeblich sind ausschließlich die im notariellen Kaufvertrag getroffenen Vereinbarungen sowie die Eintragungen im Grundbuch.
Der Immobilienmakler hat einen provisionspflichtigen Maklervertrag mit dem Verkäufer abgeschlossen. Die Provision für den Käufer beträgt 3,57 % inkl. gesetzlicher MwSt. und ist mit Abschluss des notariellen Kaufvertrages verdient und fällig.
Besichtigungstermine
Besichtigungen erfolgen nach Vereinbarung.
Energiequelle:
Solarenergie
Stichworte
Sonstiges/Wohnen: Dachboden