Version: 8.24.0Navigation überspringen
1.340 €
410 m² Lagerfläche
Immowelt logo

Lagerhalle zum Kauf
1340,24 Euro pro Quadratmeter
410 m² Lagerfläche

Gewerbeimmobilie in bester Lage von Gescher - sofort nutzbar und voller Möglichkeiten

In attraktiver Lage von Gescher wartet diese gepflegte Gewerbeimmobilie auf neue Ideen. Auf einem rund 1.066 m² großen Grundstück stehen Ihnen etwa 410 m² Nutzfläche zur Verfügung - aktuell leerstehend und damit sofort nutzbar. Ein echter Vorteil für alle, die nicht warten wollen, sondern direkt starten möchten. Ob Handel, Lager, Produktion oder Dienstleistung: Hier ist vieles denkbar.

Das Gebäude wurde 2001 errichtet und über die Jahre konsequent erweitert und modernisiert. Die Entwicklung spricht für sich:
. 2001: Neubau einer Lagerhalle mit Ausstellungsfläche und Büro
. 2002: Erweiterung der Ausstellungs- und Büroräume
. 2008: Vergrößerung der Lagerhalle
. 2014: Erneuerung der kompletten Toranlage
. 2021: Neubau moderner Büroräume im Südosten sowie neue Sektionaltore

Das Ergebnis ist ein stimmiger Gebäudekomplex, der funktional und zeitgemäß aufgestellt ist. Neue Nutzungen lassen sich ohne Umwege umsetzen - ideal für Eigennutzer mit kurzfristigem Bedarf ebenso wie für Investoren mit klaren Plänen.

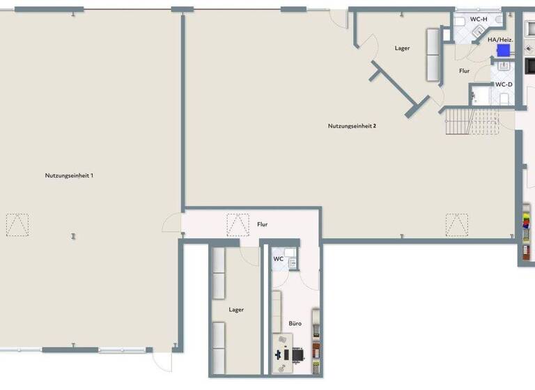
Besonders interessant: Laut Baugenehmigung vom April 2021 kann die Immobilie in zwei Einheiten aufgeteilt werden. Möglich sind eine Einheit mit ca. 228 m² inklusive Bürogebäude sowie eine zweite Einheit mit rund 181 m² Halle, Büro und Lager.

Das bietet Ihnen die Immobilie auf einen Blick:
. sofort verfügbare Gewerbeflächen durch Leerstand
Nutzeinheit 1: ca. 180,59 m²
Nutzeinheit 2: ca. 228,50 m²
. ansprechende Ausstellungsfläche
. helle, moderne Büroräume
. großzügige Lagerflächen mit guter Anlieferung
. gute Anbindung an überregionale Straßen und Autobahnen
. Grundstück mit Spielraum für weitere Entwicklungen

Egal ob Sie einen neuen Standort für Ihr Unternehmen suchen oder gezielt in Gewerbeimmobilien investieren möchten - diese Immobilie bietet Ihnen Flexibilität, Substanz und Perspektive.

Merkmale

  • 1.066 m² Grundstück
  • Kein Keller
  • Garten
  • voll erschlossen
Individuelle Ausstattungsmerkmale:

- Representative Gewerbeflächen: Nutzeinheit 1: 180,59 m² (inkl. Halle
- Büro und Lager)
- Nutzeinheit 2: 228,50 m² (inkl. Halle
- Lager und 3 Büros)
- großzügige Ausstellungsfläche
- helle Büroräume
- Pausenraum
- moderne Rolltore
- verkehrsgünstige Lage

Grundrisse

Grundrisse
1 / 2

Realisiere Dein Projekt

Bausubstanz und Energie

Energieausweis

Endenergieverbrauch (Wärme)

Endenergieverbrauch (Strom)

  • Baujahr2001
  • Zustand der ImmobilieGepflegt
  • HeizungsartZentralheizung
  • EnergieträgerGas
Immowelt logo

Preisdetails

Kaufpreis
549500 €
1.340,24 €/m²
Provision für Käufer
5,95 % inkl. MwSt.
Geschätzte Gesamtkosten
582.195 €1
Kaufpreis
549.500 €
Provision für Käufer (5,95%)
32.695 €
1Der angezeigte Wert ist eine automatisch berechnete Schätzung von immowelt.
2Bei den Angaben handelt es sich um ortsübliche Werte. Individuelle Kosten können abweichen.

Lage

address-icon
Gescher (48712)
Der Anbieter hat die genaue Adresse nicht freigegeben
Die Gewerbeimmobilie befindet sich in einem etablierten Gewerbegebiet mit hervorragender Infrastruktur. Der Standort überzeugt durch seine optimale Verkehrsanbindung: Über die nahegelegenen Bundesstraßen und die Autobahn A31 ist eine schnelle Erreichbarkeit regionaler und überregionaler Wirtschaftszentren gewährleistet. Auch für Kunden, Lieferanten und Mitarbeitende ist der Standort bestens erreichbar.

In unmittelbarer Umgebung haben sich zahlreiche erfolgreiche Unternehmen aus verschiedenen Branchen angesiedelt - ein dynamisches wirtschaftliches Umfeld, das Synergien und Kooperationsmöglichkeiten schafft.

Die ruhige, aber verkehrsgünstige Lage bietet ideale Bedingungen für logistische Abläufe, reibungslose Anlieferungen und eine hohe Sichtbarkeit. Zudem stehen ausreichend Freiflächen zur Verfügung, die eine flexible Erweiterung des Gewerbebetriebs ermöglichen.

Dank der durchdachten Standortwahl profitieren Nutzer dieser Immobilie von einer Kombination aus Wirtschaftsnähe, guter Erreichbarkeit und Entwicklungspotenzial.

Weitere Informationen

Sonstiges Aufgrund der hohen Nachfrage bitten wir um Ihr Verständnis, dass wir im Interesse der Eigentümer vorab sicherstellen möchten, dass eine mögliche Finanzierung gegeben ist.

Daher erhalten Sie eine Selbstauskunft, die wir Sie bitten, ausgefüllt an uns zurückzusenden. Erst nach Eingang der Selbstauskunft können wir Sie für einen Besichtigungstermin berücksichtigen.

Für eine Reservierung ist zudem eine Finanzierungsbestätigung erforderlich.

Bitte beachten Sie, dass alle Angaben, Zeichnungen und Berechnungen auf Informationen des Verkäufers beruhen. Wir übernehmen hierfür keine Haftung. Sollte durch unsere Vermittlung oder unseren Nachweis ein Kaufvertrag zustande kommen, trägt der Käufer die oben genannte Courtage.

Hier erhalten Sie schnell und unkompliziert:
? Eine einfache und schnelle Datenerfassung
? Einen individuell berechneten Zinssatz
? Eine Kreditrate und Zinsbindung, die zu Ihren Wünschen passt
? Möglichkeiten für Sondertilgungen und Ratenanpassungen
? Persönliche Unterstützung durch unsere Berater

Lassen Sie uns Ihr Finanzierungsangebot gerne zusammen mit Ihrer Immobilienanfrage zukommen.

Für Fragen stehen wir Ihnen sowie unsere Baufinanzierungsexperten der Volksbank Westmünsterland jederzeit zur Verfügung. Stichworte Gesamtfläche: 410,00 m², Bundesland: Nordrhein-Westfalen

Weitere Services

Lust auf eine Besichtigung?
Eine Frage zur Immobilie?
Nachricht hinzufügen
Mit der Nutzung der oben angegebenen Telefonnummer oder durch Klicken auf „Kontaktieren“ akzeptierst Du die Allgemeinen Nutzungsbedingungen, denen Du jederzeit widersprechen kannst. Weitere Informationen zum Datenschutz

Über den Anbieter

Kupferstraße 35, 48653 Coesfeld
partner badge
Partnerschaft
Herr Michael ElsingDein Kontakt
Online-ID: 2nzax5n
Referenznummer: 26-2999
Volksbank Westmünsterland Immobilien GmbH
Volksbank Westmünsterland Immobilien GmbH
Nachricht hinzufügen
Mit der Nutzung der oben angegebenen Telefonnummer oder durch Klicken auf „Kontaktieren“ akzeptierst Du die Allgemeinen Nutzungsbedingungen, denen Du jederzeit widersprechen kannst. Weitere Informationen zum Datenschutz
Wie zufrieden bist du mit dieser Seite (nicht mit der Immobilie selbst)?