Version: 8.25.1Navigation überspringen
269.000 €
3 Zimmer  •  96 m²  •  637 m² Grundstück
Immowelt logo

Doppelhaushälfte zum Kauf
269000 €
2.802 €/m²
3 Zimmer  •  96 m²  •  637 m² Grundstück

Halle/ Rosengarten: Gemütliche Doppelhaushälfte mit EBK, Garage und großzügigem Grundstück

Bei dem angebotenen Objekt handelt es sich um eine Doppelhaushälfte mit Anbau, Nebengebäude und einer Garage auf einem großzügigen und schön begrünten Grundstück. In den zurückliegenden Jahren wurden vielfältige Werterhaltungs-maßnahmen durchgeführt, so dass sich die Immobilie in einem gepflegten aber modernisierungsbedürftigen Zustand präsentiert. Modernisierungs- und Renovierungsarbeiten sind entsprechend einzuplanen.

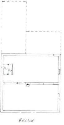
KELLERGESCHOSS:
- ein Heizungs-/Hausanschlussraum
- ein Raum für Hobby, Werkstatt oder Abstellzwecke

ERDGESCHOSS:
- Eingang zum Haus erfolgt über den Windfang
- Flur
- Schlafzimmer
- Duschbad mit Fenster
- Küche
- Wohnzimmer

DACHGESCHOSS:
- kleiner Flur mit Abstellmöglichkeit
- ein helles Zimmer mit Dachflächenfenstern

Zum Objekt gehört weiterhin eine direkt an das Wohnhaus grenzende Garage mit großzügiger Werkstatt / Abstellmöglich-keit.

Das ruhig gelegene und schön begrünte Grundstück ist komplett umzäunt und bietet mit seinen Rasenflächen einen idea-len Rückzugsort, um sich von dem Alltagsstress zu erholen. Kinder haben genügend Platz zum unbeschwerten Toben und auch für die Umsetzung Ihrer eigenen gärtnerischen Wünsche und Vorstellungen gibt es noch genügend Gestal-tungsspielraum. Abgerundet wird das Immobilienangebot durch eine überdachte Terrasse.

Merkmale

  • Bezug: sofort
  • 637 m² Grundstück
  • Einbauküche
  • Badezimmer: Bad mit Dusche, Bad mit Fenster
  • Keller
  • Bodenbelag: Fliesen, Laminat
  • Terrasse
  • 2 Stellplätze: Garage, 2 Außen-Stellplätze
- Windfang
- Einbauküche mit Elektroeinbaugeräten
- Bad mit Dusche, Waschbecken, WC, Waschmaschinenanschluss und Fenster
- doppelt verglaste Kunststofffenster mit manuell und elektrisch bedienbaren Rollläden
- Bodenbeläge: Laminat und Fliesen
- Junkers Gas-Zentralheizung zur Wärme- und Warmwasserversorgung - 2015
- gepflasterter Innenhof

Grundrisse

Grundrisse
1 / 3

Realisiere Dein Projekt

Bausubstanz und Energie

Energieausweis

D
  • Baujahr1938
  • EnergieträgerGas
Immowelt logo

Preisdetails

Kaufpreis
269000 €
2.802,08 €/m²
Provision für Käufer
3,57 % inkl. MwSt.
Wir weisen der guten Ordnung halber darauf hin, dass im Falle eines Zustandekommens eines Kaufvertrages an uns eine Vermittlungsprovision in Höhe von 3,57 % vom Kaufpreis inkl. 19 % MwSt. zu entrichten ist.
Weitere Preisinformationen
2 Stellplätze
1 Garagenstellplatz
Geschätzte Gesamtkosten
297.433 €1
Kaufpreis
269.000 €
Notarkosten (1,5%)
4.035 €
Grunderwerbsteuer (5%)
13.450 €
Provision für Käufer (3,57%)
9.603 €
Grundbucheintrag (0,5%)
1.345 €
1Der angezeigte Wert ist eine automatisch berechnete Schätzung von immowelt.
2Bei den Angaben handelt es sich um ortsübliche Werte. Individuelle Kosten können abweichen.

Lage

address-icon
DamaschkestraßeHalle (Saale) (06130)
Der Anbieter hat die genaue Adresse nicht freigegeben
Das Objekt befindet sich in ruhiger Wohnlage im südlichen Stadtgebiet von Halle (Saale) in einer gewachsenen und gepflegten Wohnstruktur. Die Umgebung ist überwiegend durch Wohnbebauung geprägt und bietet ein angenehmes, familienfreundliches Wohnumfeld.

Eine gute Verkehrsanbindung an die Innenstadt sowie in das überregionale Verkehrsnetz ist gegeben. Die Anbindung an das Straßennetz ermöglicht eine zügige Erreichbarkeit der Bundesstraßen sowie der Autobahn A14. Auch der öffentliche Personennahverkehr ist gut erreichbar.

Schulen und Kindertagesstätten sind im näheren Umfeld vorhanden. Weiterführende Schulen sowie Gymnasien befinden sich im Stadtgebiet von Halle (Saale) und sind gut erreichbar. Einkaufsmöglichkeiten für den täglichen Bedarf, medizinische Versorgung sowie weitere Dienstleistungen befinden sich in den umliegenden Stadtteilen.


Fußweg zu öffentlichen Verkehrsmitteln: 3 Minuten
Fahrzeit zum Hauptbahnhof Halle (Saale): 10 Minuten
Fahrzeit zur nächsten Autobahn: 5 Minuten
Fahrzeit zum nächstgelegenen Flughafen: 15 Minuten

Weitere Informationen

Sonstiges Ein Energieausweis ist vorhanden.
Energieausweistyp: Verbrauchsausweis
Gebäudejahr:1938
Baujahr Anlagentechnik:2015
Endenergiekennwert: 120,35 kWh/(m²*a)
Energieeffizienzklasse: D
Energieverbrauch für Warmwasser enthalten: ja
Wesentlicher Energieträger: Gas
Ausgestellt am: 10.02.2026
Gültig bis:09.02.2036

Der Grundriss kann von tatsächlichen Gegebenheiten abweichen.

Alle Angaben sind ohne Gewähr und basieren auf Informationen, die uns von unserem Auftraggeber zur Verfügung gestellt wurden. Wir übernehmen keine Gewähr für die Vollständigkeit, Richtigkeit und Aktualität dieser Angaben. Irrtum und Zwischenverkauf vorbehalten. Stichworte Garage vorhanden, Anzahl der Schlafzimmer: 2, Anzahl der Badezimmer: 1, Anzahl Terrassen: 1, 2 Etagen

Weitere Services

Lust auf eine Besichtigung?
Eine Frage zur Immobilie?
Nachricht hinzufügen
Mit der Nutzung der oben angegebenen Telefonnummer oder durch Klicken auf „Kontaktieren“ akzeptierst Du die Allgemeinen Nutzungsbedingungen, denen Du jederzeit widersprechen kannst. Weitere Informationen zum Datenschutz

Über den Anbieter

Große Steinstraße 21, 06108 Halle/Saale
partner badge
6 Jahre Partnerschaft
Phillip WenderothDein Kontakt
Online-ID: 26Q4H1W9U3TB
Referenznummer: 300801#8X03y
A1 Immobilien GmbH
A1 Immobilien GmbH
Bewertung: 4,4 von 5 Sternen
Nachricht hinzufügen
Mit der Nutzung der oben angegebenen Telefonnummer oder durch Klicken auf „Kontaktieren“ akzeptierst Du die Allgemeinen Nutzungsbedingungen, denen Du jederzeit widersprechen kannst. Weitere Informationen zum Datenschutz
Wie zufrieden bist du mit dieser Seite (nicht mit der Immobilie selbst)?