Version: 8.25.2Navigation überspringen
552 €
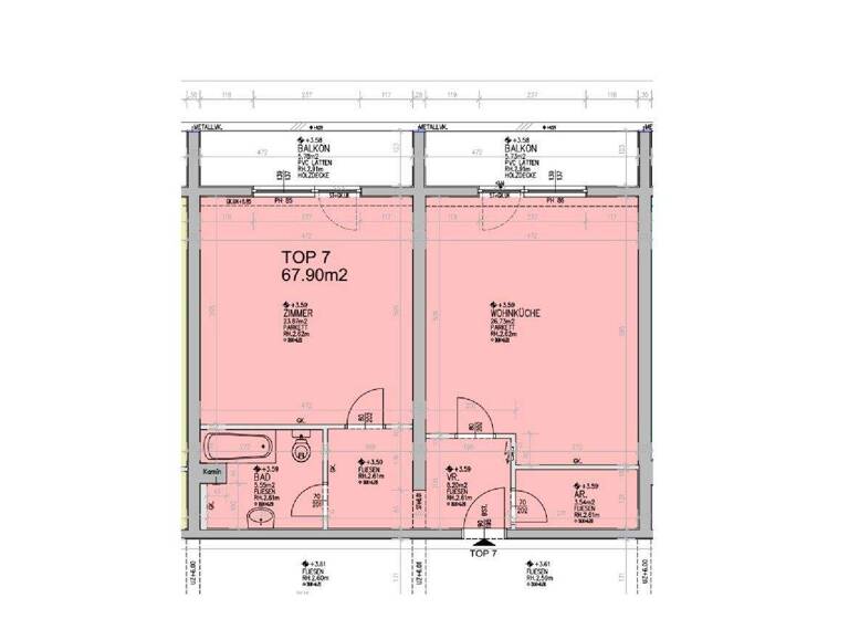
2 Zimmer  •  67,9 m²
Immowelt logo

Wohnung zur Miete
552 €
2 Zimmer  •  67,9 m²

SONNIGE MIETWOHNUNG MIT 2 LOGGIEN UND BLICK INS GRÜNE

Diese attraktive Mietwohnung überzeugt durch eine durchdachte Raumaufteilung, helle Wohnräume und eine hervorragende Lage auf der Ennsleite in Steyr. Auf rund 67,90 m² Wohnfläche zzgl. zwei Loggien, im 1. OG eines Mehrparteienhauses gelegen, bietet sie ein angenehmes Zuhause - ideal für Paare, die urbanes Wohnen bevorzugen.

Der sonnige Wohn- und Essbereich bildet das Herzstück der Wohnung. Von hier aus gelangen Sie direkt auf eine der beiden Loggien (5,70 m²), die zum Entspannen im Freien einlädt. Die vorhandene Küche ist funktional ausgestattet und fügt sich harmonisch in den Wohnbereich ein.

Das Schlafzimmer bietet ebenfalls einen besonderen Mehrwert: Es verfügt über einen direkten Zugang zur zweiten Loggia (5,80 m²) mit Blick ins Grüne - perfekt für ruhige Morgenstunden oder entspannte Abende.

Das Badezimmer ist mit einer Badewanne und WC ausgestattet und bietet alles für den täglichen Komfort.

Der Abstellraum sowie ein Kellerabteil mit ca. 3 m² bieten ausreichend Stauraum.
Ein Tiefgaragenstellplatz kann optional um € 55,- pro Monat angemietet werden.

Diese Wohnung besticht durch ihre zentrale Lage mit perfekter Infrastruktur. Besonders die zwei Loggien und der Blick ins Grüne machen sie zu einem idealen Zuhause für Paare, die Lebensqualität schätzen.

Merkmale

  • Bezug: sofort
  • Personenaufzug
  • Einbauküche
  • Badewanne
  • Bodenbelag: Fliesen, Laminat
  • Balkon
  • Tiefgarage
Aktuell werden die Wohnungen mit Gas beheizt, eine bereits geplante Hackschnitzelheizung sorgt künftig für eine effizientere und nachhaltigere Wärmeversorgung.

Grundrisse

Grundrisse
1 / 1

Bausubstanz und Energie

Heizwärmebedarf (HWB)

B

Gesamtenergieeffizienz (fGEE)

  • Baujahr1995
  • Zustand der ImmobilieGepflegt
  • HeizungsartZentralheizung
  • EnergieträgerGas
Immowelt logo

Mietkosten

Gesamtmiete
791,09 €
Nettokaltmiete
8,95 €/m²
552,41 €
Betriebskosten
166,76 €
Umsatzsteuer
71,92 €
Nicht in Gesamtmiete enthalten
Miete pro Stellplatz
55 €
Kaution
3 Bruttomonatsmieten
Weitere Preisinformationen
1 Tiefgaragenstellplatz, Miete: 55,00 EUR
Nettokaltmiete: 552,41 EUR

Lage

address-icon
JägerbergSteyr (4400)
Der Anbieter hat die genaue Adresse nicht freigegeben
Die Wohnung punktet mit einer ausgezeichneten Infrastruktur:
* Einkaufsmöglichkeiten direkt beim Objekt
* Weitere Geschäfte, Apotheken, Ärzte, Bäcker, Schulen und Kindergärten in unmittelbarer Nähe
* Bushaltestelle direkt vor dem Haus, Bahnhof ca. 15 Gehminuten entfernt.

Der Stadtplatz von Steyr mit vielfältiger Gastronomie und Einkaufsmöglichkeiten ist ebenfalls bequem zu Fuß erreichbar.

Die Nähe zum Damberg - dem Hausberg von Steyr - bietet ideale Möglichkeiten für Erholung in der Natur. Das beliebte Naherholungsgebiet lädt zu Spaziergängen und Wanderungen ein, darunter auch die bekannte Schwarzbergrunde mit schönen Ausblicken. Auch für Mountainbiker ist das Gebiet bestens geeignet.

Weitere Informationen

Stichworte Nutzfläche: 79,40 m², Anzahl der Schlafzimmer: 1, Anzahl der Badezimmer: 1, Anzahl Balkone: 2, Balkon-Terrassen-Fläche: 11,50 m², Kellerfläche: 3,00 m², Bundesland: Oberösterreich, Distanz zum Kindergarten: 0.70, Distanz zur Grundschule: 0.80, Distanz vom Zentrum: 1.50

Weitere Services

Lust auf eine Besichtigung?
Eine Frage zur Immobilie?
Mit einer persönlichen Nachricht hast du bessere Chancen auf eine Antwort.
Mit der Nutzung der oben angegebenen Telefonnummer oder durch Klicken auf „Kontaktieren“ akzeptierst Du die Allgemeinen Nutzungsbedingungen, denen Du jederzeit widersprechen kannst. Weitere Informationen zum Datenschutz

Über den Anbieter

Pfarrgasse 8, 4400 STEYR
partner badge
Partnerschaft
Frau Martina SingerDein Kontakt
Online-ID: 267K2B8LPK9Y
Referenznummer: SÜSSREAL-2026-1360
Wie zufrieden bist du mit dieser Seite (nicht mit der Immobilie selbst)?