Version: 8.24.0Navigation überspringen
345.000 €
4 Zimmer  •  141,4 m²  •  1.386 m² Grundstück
Immowelt logo

Einfamilienhaus zum Kauf
345000 €
2.440 €/m²
4 Zimmer  •  141,4 m²  •  1.386 m² Grundstück

+++ Erstklassig gepflegt - toller Garten - Garage/Werkstatt - idyllische Randlage von Augustfehn +++

Großzügiges Einfamilienhaus mit Garage in idyllischer Sackgassenlage in Augustfehn (Randlage) - an Wiesen und Felder angrenzend.

Das nicht freistehende Wohnhaus wurde im Jahr 1998 an den bestehenden Altbestand in konventioneller Massivbauweise angebaut und verfügt über großzügige, helle Räume, die Ihnen und Ihrer Familie ausreichend Platz bieten.

Das Verkaufsobjekt eignet sich nicht nur für Familien, sondern auch für die älter werdende Generation. Im Erdgeschoss befindet sich ein barrierefreies Bad und das Obergeschoss kann über einen Treppenlift erreicht werden.

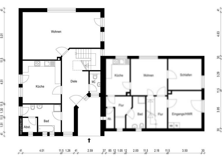
Räumlichkeiten:

a) Erdgeschoss
Die Räumlichkeiten unterteilen sich in eine geräumige Eingangsdiele, Wohnküche mit Essbereich und Zugang zur Terrasse, Wohnzimmer mit einem weiteren Essbereich, barrierefreies Bad, Hauswirtschaftsraum und Gäste-WC.

b) Dachgeschoss
Das Dachgeschoss verfügt über 3 Schlafzimmer, Badezimmer, Ankleide und Flurbereich.

Die Wohnfläche beträgt ca. 141 m² zzgl. einer Nutzfläche von ca. 47 m².

Besonders hervorzuheben sind hier die ruhige und idyllische Lage direkt angrenzend an ein kleines Wäldchen. Im hinteren Gartenbereich steht ein Gartenhaus in Holzkonstruktion zu Abstellzwecken zur Verfügung.

Das Verkaufsobjekt befindet sich in einem sehr gepflegten Gesamtzustand!
Die Heizungsanlage wurde in 2023 erneuert.

Die Übergabe erfolgt nach Vereinbarung.

Merkmale

  • Bezug: nach Vereinbarung
  • 1.386 m² Grundstück
  • Einbauküche
  • Garage
  • Balkon
  • Terrasse
  • Badezimmer: Bad mit Dusche, Bad mit Fenster

Grundrisse

Grundrisse
1 / 2

Realisiere Dein Projekt

Bausubstanz und Energie

Energieausweis

B
  • Baujahr1998
  • Zustand der ImmobilieMassivhaus, Gepflegt
  • HeizungsartZentralheizung
Immowelt logo

Preisdetails

Kaufpreis
345000 €
2.439,54 €/m²
Provision für Käufer
Keine zusätzliche Käuferprovision! inkl. MwSt.
Weitere Preisinformationen
1 Garagenstellplatz
Geschätzte Gesamtkosten
381.466 €1
Kaufpreis
345.000 €
Notarkosten (1,5%)
5.175 €
Grunderwerbsteuer (5%)
17.250 €
Provision für Käufer (3,57%)
12.316 €
Grundbucheintrag (0,5%)
1.725 €
1Der angezeigte Wert ist eine automatisch berechnete Schätzung von immowelt.
2Bei den Angaben handelt es sich um ortsübliche Werte. Individuelle Kosten können abweichen.

Lage

address-icon
KlauhörnApen / Augustfehn (26689)
Der Anbieter hat die genaue Adresse nicht freigegeben
Sämtliche Versorgungseinrichtungen sind wie auch die medizinische Grundversorgung (Allgemeinmediziner, Zahnärzte, Apotheke) am Ort und in wenigen Minuten zu erreichen.

Weiterführende Schulen (Haupt- und Realschule) befinden sich in Augustfehn bzw. Apen und Westerstede (Gymnasium). Eine Kindertagesstätte befindet sich in direkter Nachbarschaft, nur ca. 800 m entfert.

Die Kreisstadt Westerstede ist ca. 12 km entfernt. Hier befinden sich u.a. die Ammerland-Klinik, Fachärzte und sämtliche Kreisbehörden.

Augustfehn verfügt über sehr gute Verkehrsanbindungen. Die BAB 28 (Anschlussstelle Nr. 4) ist nur ca. 2,5 km entfernt. Weiter verfügt Augustfehn über einen Bahnhof an der Bahnstrecke Oldenburg - Leer. Von hier fahren Züge im stündlichen Wechsel in beide Richtungen. Der bekannte Kurort Bad Zwischenahn ist in ca. 15 Auto- bzw. Bahnminuten zu erreichen, die Oberzentren Oldenburg und Bremen in ca. ½ bzw. 1 Auto- bzw. Bahnstunde.

Weitere Informationen

Sonstiges Zu diesem Objekt liegt ein ausführliches Exposé mit weiteren Detailinformationen vor, das Sie gerne bei uns anfordern können.

Telefonische Erreichbarkeit:
Montag - Freitag: 8.00 Uhr - 12.30 Uhr und 14.00 Uhr bis 17.30 Uhr
Samstag: 9.00 Uhr -12.00 Uhr


Sie möchten Ihre Immobilie verkaufen.....
..... und suchen den passenden Käufer?

Unabhängig davon, ob Sie aktuell oder erst in unbestimmter Zeit Ihre Immobilie verkaufen möchten, ist eine fundierte Beratung bares Geld wert. Wir wissen, worauf es beim professionellen Verkauf Ihrer Immobilie ankommt.

Über 60 Jahre Marktpräsenz und tausende Vermittlungen sprechen für sich.

Für ein kostenfreies und informatives Beratungsgespräch stehen wir Ihnen jederzeit gerne zur Verfügung. Stichworte Süd-Ost-Balkon/Terrasse, Nutzfläche: 46,84 m², Anzahl der Schlafzimmer: 3, Anzahl der Badezimmer: 2, Anzahl der separaten WCs: 1, Anzahl Balkone: 1, Anzahl Terrassen: 1, modernisiert: Das Anwesen hat bis heute laufende Bauunterhaltung erfahren.

Weitere Services

Lust auf eine Besichtigung?
Eine Frage zur Immobilie?
Nachricht hinzufügen
Mit der Nutzung der oben angegebenen Telefonnummer oder durch Klicken auf „Kontaktieren“ akzeptierst Du die Allgemeinen Nutzungsbedingungen, denen Du jederzeit widersprechen kannst. Weitere Informationen zum Datenschutz

Über den Anbieter

Mühlenstraße 15, 26689 Apen - Augustfehn
partner badge
6 Jahre Partnerschaft
Herr Hermann Lott
Herr Hermann LottDein Kontakt
Online-ID: 2nwfg5d
Referenznummer: 8346
Hermann Lott Auktionator und Grundstücksmakler KG
title
Hermann Lott Auktionator und Grundstücksmakler KG
Bewertung: 5 von 5 Sternen
Nachricht hinzufügen
Mit der Nutzung der oben angegebenen Telefonnummer oder durch Klicken auf „Kontaktieren“ akzeptierst Du die Allgemeinen Nutzungsbedingungen, denen Du jederzeit widersprechen kannst. Weitere Informationen zum Datenschutz
Wie zufrieden bist du mit dieser Seite (nicht mit der Immobilie selbst)?