

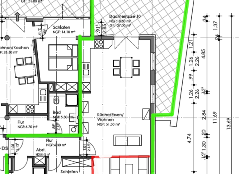
Wohnung zur Miete1.075 €3 Zimmer • 85,9 m² • 2. Geschoss • frei ab 01.03.2026
1.075 €
3 Zimmer • 85,9 m² • 2. Geschoss • frei ab 01.03.2026
Moderne Wohnung in Sassnitz
Merkmale
- frei ab 01.03.2026
- 2. Geschoss
- Einbauküche, offene Küche
- Stellplatz
- Terrasse
- Meerblick
- Badezimmer: Bad mit Dusche, Bad mit Fenster
- Bodenbelag: Fliesen, Parkett
Grundrisse
Grundrisse
1 / 1
Realisiere Dein Projekt
Bausubstanz und Energie
Der Anbieter hat keine Informationen zum Energieverbrauch bereit gestellt.
- Baujahr1997
- Zustand der ImmobilieNeubau, neuwertig
- HeizungsartFußbodenheizung
- EnergieträgerGas
Mietkosten
Warmmiete
1.290 €
Kaltmiete
12,52 €/m²
1.075 €
Nebenkosten
215 €
Kaution
2580 €
Lage

Hauptstraße 27 + 28, Sassnitz (18546)
Weitere Informationen
Weitere Services
Lust auf eine Besichtigung?
Eine Frage zur Immobilie?
Über den Anbieter
Online-ID: 2nt8j5p
Referenznummer: 619 (1/619)

Lührs Immobilien-Kontor GmbH
Bewertung: 4,4 von 5 Sternen
Wie zufrieden bist du mit dieser Seite (nicht mit der Immobilie selbst)?

