Eckreihenhaus mit Garten in Residence mit Pool in Bardolino.
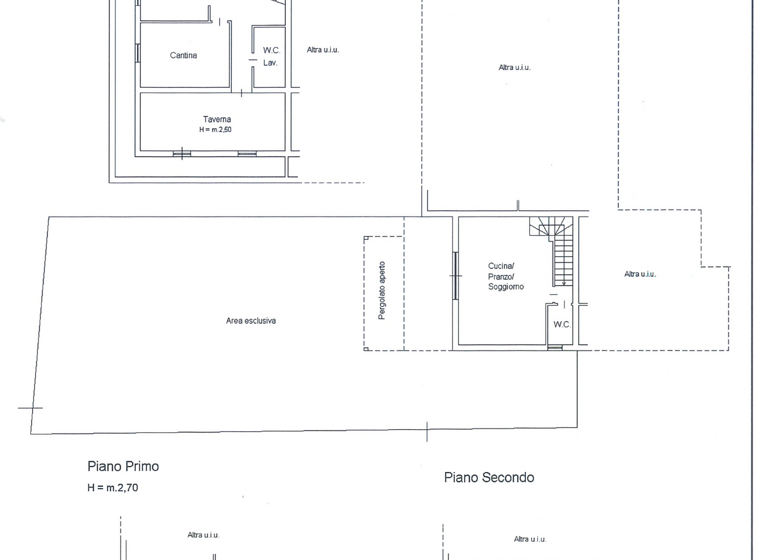
BARDOLINO: Nur wenige Schritte vom Ortszentrum entfernt, bieten wir eine interessante Eckreihenhaus mit einem privaten Garten von ca. 200 m² in einer Wohnanlage mit Swimmingpool an. Das Haus verfügt über einen separaten Fußgänger- und Fahrzeugzugang und erstreckt sich über vier Ebenen. Im Untergeschoss befinden sich zwei große Schlafzimmer mit Fenstern, ein Badezimmer und ein Hobbyraum; im ersten Stock, der über eine bequeme Treppe erreichbar ist, befinden sich ein Badezimmer mit Fenster und der Wohnbereich mit einer großen Fensterfront, die zu einer durch Schiebeglasfronten geschützten Außenterrasse mit direktem Zugang zum perfekt gepflegten und bepflanzten Garten führt; im ersten Stock befinden sich zwei große Schlafzimmer mit Zugang zur großen Terrasse und ein Badezimmer mit Fenster; Im zweiten und letzten Stockwerk befindet sich ein großes Dachzimmer, das als Schlafzimmer genutzt wird, mit einem weiteren Badezimmer. Das Anwesen wird durch zwei Garagen, von denen eine direkt mit dem Haus verbunden ist, und einen Außenparkplatz vervollständigt. Aufgrund seiner Größe ist es sowohl als Hauptwohnsitz als auch als Ferienhaus ideal geeignet.
Merkmale
200 m² Grundstück
Garage, Außen-Stellplatz
Garten
Terrasse
voll klimatisiert
Swimmingpool
Grundrisse
Grundrisse
1 / 1
Realisiere Dein Projekt
Bausubstanz und Energie
Möchtest du Details zum Energieverbrauch?
Baujahr2005
Zustand der ImmobilieGepflegt
Preisdetails
Kaufpreis
860000 €860.000 €
4.777,78 €/m²
Hausgeld
160 €160 €
Provision für Käufer
4% + ital. MwSt.
Lage
Via Casetta Fossa 33, Bardolino (VR) (37011)
Weitere Informationen
Besichtigungstermine
Montag bis Freitag 9.00 - 13.00 und 15.00 - 19.30 Samstag 9.00 - 13.00 und 15.00 - 18.00 Sonntag geschlossen.