Version: 8.25.1Navigation überspringen
RICHERT & OERTEL IMMOBILIEN GMBH
9,45 €
264 m² Bürofläche

Büro zur Miete
9,45 €
/m²
264 m² Bürofläche

Großraumbüro mit Archivmöglichkeit

Unter modernsten Aspekten der Planung präsentiert sich das Bürogebäude. Die flexible Bauweise lässt eine Raumunterteilung nach Ihren Wünschen zu. Durch den hohen Vermietungsstand ist das Gebäude belebt und somit sehr attraktiv.

Über einen ansprechenden Eingangsbereich und eine repräsentative Lobby gelangt der Mieter bzw. seine Besucher in die Mietflächen. Im Objekt befindet sich des Weiteren eine Kantine. Ausreichende Parkplätze sind durch eine Tiefgarage und oberirdische Stellplätze geboten.

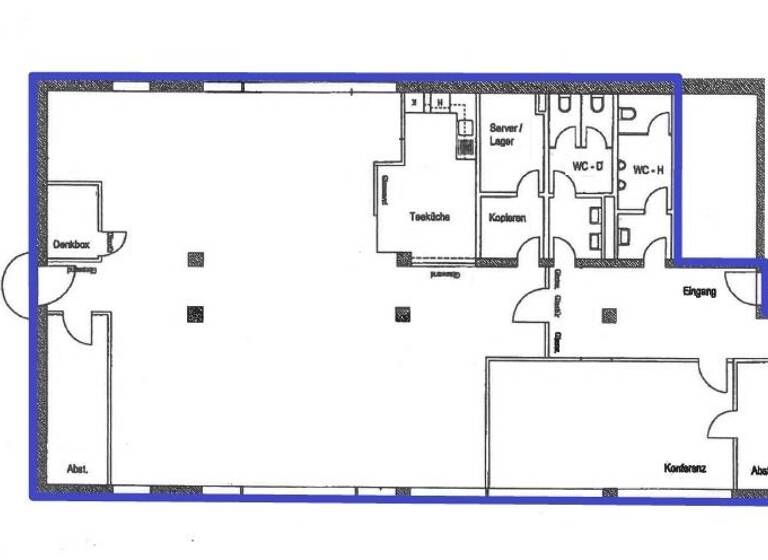
Die angebotene Fläche kann wahlweise im aktuellen Zuschnitt übernommen oder - gegen einen Aufpreis - individuell an Ihre Anforderungen angepasst werden. Ein Umbau gemäß der Ausbauvariante (siehe Grundriss) ist möglich und bietet Ihnen die Chance, die Raumaufteilung optimal auf Ihre Arbeitsabläufe abzustimmen.

So entscheiden Sie selbst, ob Sie von der großzügigen Großraumvariante profitieren oder eine maßgeschneiderte Aufteilung bevorzugen.

Der Eigentümer wünscht eine Mietvertragslaufzeit von mindestens drei Jahren.

Merkmale

  • Bezug: ab sofort
  • Bodenbelag: Teppich
  • 5 Stellplätze
- ein großer Büroraum mit abgetrennter Denkbox
- ein Konferenzimmer
- zwei Abstellzimmer
- Bodentanks bzw. Kabelkanäle zur Installationsführung
- getrennte WC-Anlagen und eine Dusche
- Teeküche
- jeweils ein Kopier- und Serverraum

Grundrisse

Grundrisse
1 / 2

Realisiere Dein Projekt

Bausubstanz und Energie

Energieausweis

Endenergiebedarf (Wärme)

Endenergiebedarf (Strom)

  • Baujahr1996
  • Zustand der ImmobilieGepflegt
  • HeizungsartZentralheizung
  • EnergieträgerGas
MediumRectangleTop

Mietkosten

Monatliche Miete
9,45 €/m²
Nebenkosten
2,75 €
Provision für Mieter
laufzeitabhängig inkl. MwSt. Weitere Informationen siehe Provisionshinweis.
Kaution
keine Angabe

Lage

address-icon
Südvorstadt-WestDresden (01187)
Der Anbieter hat die genaue Adresse nicht freigegeben
Die Chemnitzer Straße/Bamberger Straße befindet sich in direkter Verlängerung der Budapester Straße, einer der wichtigsten Verkehrsachsen in Dresden. Das Umfeld ist von einer dichten Bebauung und einer Vielzahl von Bürokomplexen geprägt. Unweit liegen sowohl die Universität als auch der Bahnhof 'Dresden-Plauen'. Das Rathaus und der Hauptbahnhof sind jeweils ca. 2,5 km entfernt.

Die Anbindungen an den öffentlichen Nahverkehr ist im direkten Umfeld gegeben. Mit dem Anschluß an die Bundesautobahn A17 wurde die Verkehrsanbindung weiter verbessert.

Weitere Informationen

Provisionshinweis laufzeitabhängig inkl. MwSt.
Bei Mietvertragsabschluss entsteht unsererseits gegenüber dem Mieter ein Honoraranspruch in Höhe von:
Honorarfrei: ab einer Mietvertragslaufzeit von 36 Monaten
1,19 Nettokaltmieten: bei einer Mietvertragslaufzeit bis 35 Monaten
Das Honorar versteht sich inkl. der gesetzlichen Mehrwertsteuer. Das Honorar ist verdient und fällig bei Mietvertragsabschluss. Sonstiges Der Mietpreis ist als Basismietpreis zu verstehen und richtet sich nach Ausstattung sowie Vertragslaufzeit. Die Angaben verstehen sich zzgl. Nebenkosten und zzgl. gesetzl. Mehrwertsteuer.

Bei Mietvertragsabschluss entsteht unsererseits gegenüber dem Mieter ein Honoraranspruch in Höhe von:
Honorarfrei: ab einer Mietvertragslaufzeit von 36 Monaten
1,19 Nettokaltmieten: bei einer Mietvertragslaufzeit bis 35 Monaten
Das Honorar versteht sich inkl. der gesetzlichen Mehrwertsteuer. Das Honorar ist verdient und fällig bei Mietvertragsabschluss.

Der aktuelle Energieausweis liegt vor. Alle in diesem Angebot enthaltenen Angaben, Darstellungen und Preise stammen ausschließlich vom Eigentümer oder eines Dritten. Eine Haftung unseres Unternehmens hierfür ist ausgeschlossen. Irrtum und die zwischenzeitliche Vermietung der Gewerbeeinheit bleiben vorbehalten. Dieses Exposé ist eine Vorabinformation, als Rechtsgrundlage gilt allein der abgeschlossene Mietvertrag.

RICHERT & OERTEL IMMOBILIEN GMBH
Tiergartenstraße 46, 01219 Dresden
Tel.: +49 (351) 43 31 20, Fax.: +49 (351) 43 31 212, E-Mail: info@r-o.de
AG Dresden, HRB 31382, Geschäftsführer Michael Oertel, Raiko Ebert Stichworte Stellplatz vorhanden, Gesamtfläche: 264,00 m²

Weitere Services

Lust auf eine Besichtigung?
Eine Frage zur Immobilie?
Mit einer persönlichen Nachricht hast du bessere Chancen auf eine Antwort.
Mit der Nutzung der oben angegebenen Telefonnummer oder durch Klicken auf „Kontaktieren“ akzeptierst Du die Allgemeinen Nutzungsbedingungen, denen Du jederzeit widersprechen kannst. Weitere Informationen zum Datenschutz

Über den Anbieter

Tiergartenstraße 46, 01219 Dresden
Frau Jenny VölkelDein Kontakt
Online-ID: 24MNW8X6FF9J
Referenznummer: R_O 4886
RICHERT & OERTEL IMMOBILIEN GMBH
RICHERT & OERTEL IMMOBILIEN GMBH
Bewertung: 3,3 von 5 Sternen
Mit einer persönlichen Nachricht hast du bessere Chancen auf eine Antwort.
Mit der Nutzung der oben angegebenen Telefonnummer oder durch Klicken auf „Kontaktieren“ akzeptierst Du die Allgemeinen Nutzungsbedingungen, denen Du jederzeit widersprechen kannst. Weitere Informationen zum Datenschutz
MediumRectangleTop
MediumRectangleBottom
MediumRectangleTop
Wie zufrieden bist du mit dieser Seite (nicht mit der Immobilie selbst)?