Version: 8.25.1Navigation überspringen
187.000 €
Immowelt logo

Land-/Forstwirtschaft zum Kauf
187000 €

Baugrundstück 771m2 zum Kauf - Istria, Liznjan

Istrien, Liznjan

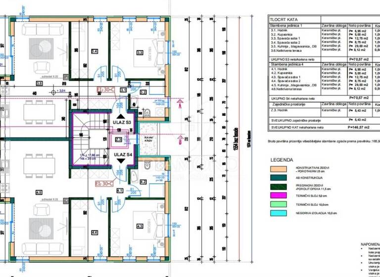
Zum Verkauf steht ein 771 m² großes Baugrundstück in Liznjan mit gültiger Baugenehmigung für ein Wohnhaus - ein Einfamilienhaus (Erdgeschoss + 1. Obergeschoss) mit insgesamt 4 Wohneinheiten. Das Grundstück befindet sich in einer außergewöhnlichen Lage, nur 5 Gehminuten vom Zentrum Liznjans entfernt und ist somit ideal als Kapitalanlage oder für ruhiges Wohnen geeignet.

Das geplante Gebäude besteht aus einem Erdgeschoss und einem Obergeschoss:

Das Erdgeschoss umfasst 2 Wohnungen mit je 66,98 m² Wohnfläche. Jede Wohnung verfügt über: 2 Terrassen, einen privaten Garten (74 m² und 90 m²) und 1 Stellplatz.

(Nebengebäude sind nicht in der angegebenen Wohnfläche enthalten.)

Das Obergeschoss umfasst 2 Wohnungen mit je 66,51 m² Wohnfläche. Jede Wohnung verfügt über: 2 Terrassen, 1 Stellplatz und einen Garten (78 m² und 70 m²). (Das Inventar ist nicht in der angegebenen Nettowohnfläche enthalten.)

Das Grundstück verfügt über Stromanschluss. Ein Vertrag mit dem Wasserwerk über den Anschluss an das Wassernetz wurde bereits abgeschlossen. Der Eigentümer erhält die Wasserversorgung bis zum Vertragsende.

Weitere Informationen:

Zum Grundstück gehört auch ein Anteil an der Zufahrtsstraße. Das Projekt sieht Änderungen nach den Wünschen des Investors vor.

Hervorragende Investitionsmöglichkeit - Baugrundstück mit Baugenehmigung, Projekt und Infrastruktur in Toplage! Nicht verpassen!

ID CODE: 1041-531

Grundrisse

Grundrisse
1 / 2

Realisiere Dein Projekt

Bausubstanz und Energie

Möchtest du Details zum Energieverbrauch?info_energy_calculation-icon
Immowelt logo

Preisdetails

Kaufpreis
187000 €
Provision für Käufer
Bitte beachte, das Angebot kann bei Vertragsabschluss die Zahlung einer Provision beinhalten. Weitere Informationen erhältst Du vom Anbieter.

Lage

address-icon
LiznjanLiznjan

Weitere Informationen

Stichworte Wohnfläche: 771,00 m², 1 Etagen

Weitere Services

Lust auf eine Besichtigung?
Eine Frage zur Immobilie?
Nachricht hinzufügen
Mit der Nutzung der oben angegebenen Telefonnummer oder durch Klicken auf „Kontaktieren“ akzeptierst Du die Allgemeinen Nutzungsbedingungen, denen Du jederzeit widersprechen kannst. Weitere Informationen zum Datenschutz

Über den Anbieter

Nova cesta 60, 10000 ZAGREB
DIAMOND Real EstateDein Kontakt
Online-ID: 267B1MTIENN5
Referenznummer: 19481654_2
Crozilla.com
Crozilla.com
Nachricht hinzufügen
Mit der Nutzung der oben angegebenen Telefonnummer oder durch Klicken auf „Kontaktieren“ akzeptierst Du die Allgemeinen Nutzungsbedingungen, denen Du jederzeit widersprechen kannst. Weitere Informationen zum Datenschutz
Wie zufrieden bist du mit dieser Seite (nicht mit der Immobilie selbst)?