

Wohnung zum Kauf1150000 €9.256 €/m²3 Zimmer • 96,1 m² • 1. Geschoss
1150000 €
9.256 €/m²
3 Zimmer • 96,1 m² • 1. Geschoss
Exklusive Luxuswohnung am See im Zentrum
Merkmale
- 1. Geschoss
- offene Küche
- Personenaufzug
- Kelleranteil
- Terrasse
- Fernblick
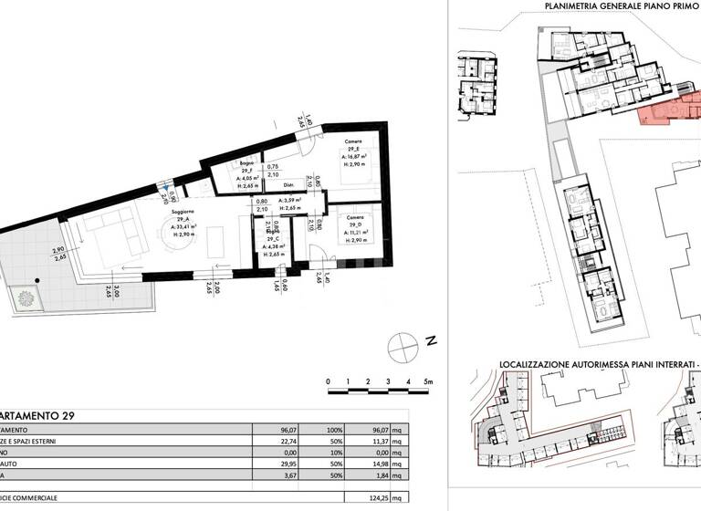
Grundrisse
Grundrisse
1 / 2
Virtueller Rundgang
Video

Realisiere Dein Projekt
Bausubstanz und Energie
Der Anbieter hat keine Informationen zum Energieverbrauch bereit gestellt.
- Baujahr2025
- HeizungsartFußbodenheizung
- EnergieträgerErdwärme
Preisdetails
Kaufpreis
1150000 €
9.255,53 €/m²
Hausgeld
150 €
Provision für Käufer
ja maklerprovision im Preis nicht inbegriffen zzgl. MwSt.
Lage

Desenzano del Garda (25015)
Der Anbieter hat die genaue Adresse nicht freigegeben
Weitere Informationen
Weitere Services
Lust auf eine Besichtigung?
Eine Frage zur Immobilie?
Über den Anbieter
Garda Haus SrlMaklerbüro
Via Meucci 77, 25080 PADENGHE SUL GARDA
Partnerschaft

Frau Olga HellerDein Kontakt
Online-ID: 2lzg459
Referenznummer: DV-527


Garda Haus Srl
Wie zufrieden bist du mit dieser Seite (nicht mit der Immobilie selbst)?

