Version: 8.25.1Navigation überspringen
Immobilien Franzen GmbH
2.320.000 €
25 Zimmer

Bürokomplex zum Kauf
2320000 €
25 Zimmer

Renditestarke Kapitalanlage: Kernsaniert, möblierte Appartments & moderne Büroflächen

Kurzbeschreibung - Büroeinheiten
- Wohneinheiten
- 22 Stellplätze à 15.000 € Objekt Dieses vielseitig nutzbare Gebäude vereint repräsentative Büroflächen und attraktive Wohneinheiten unter einem Dach und eignet sich ideal für Unternehmen, Investoren sowie Kapitalanleger.

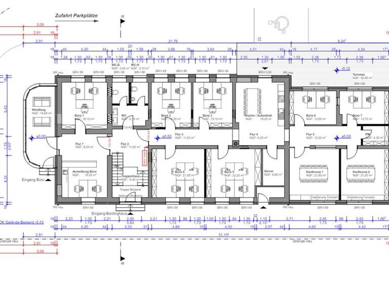
Im Erdgeschoss stehen rund 300 m² moderne Büroflächen zur Verfügung, die eine jährliche Nettokaltmiete von 55.400,00 € generieren. Die durchdachte Raumaufteilung umfasst 8 Einzelbüros, 2 Konferenzräume - darunter ein schalldichter Raum -, einen repräsentativen Empfangsbereich, 2 separate Sanitärräume, eine offene Küche mit Zugang zur Terrasse sowie einen klimatisierten Serverraum. Ergänzt wird das Angebot durch 12 zugeordnete Stellplätze, die zusätzliche Mieteinnahmen von 10.800,00 € jährlich erzielen. Damit bietet das Erdgeschoss optimale Voraussetzungen für Unternehmen, Kanzleien oder Praxen mit Anspruch an Funktionalität und Komfort.

Das 1. Obergeschoss beherbergt 6 voll möblierte Apartments mit Größen zwischen ca. 24 und 30 m² auf einer Gesamtfläche von rund 187 m². Gemeinsam mit den Einheiten im 2. Obergeschoss erwirtschaften die Apartments - inklusive jeweils eines Stellplatzes - eine attraktive jährliche Nettokaltmiete von 116.000,00 €.

Im 2. Obergeschoss befinden sich 4 gut geschnittene Zwei-Zimmer-Wohnungen mit jeweils ca. 44 m² Wohnfläche. Ein separater, gemeinschaftlich nutzbarer Waschraum sowie ein Putzmittelraum auf jeder Etage erhöhen den Wohnkomfort zusätzlich. Ein besonderes Highlight ist die großzügige Dachterrasse, die allen Mietern zur gemeinschaftlichen Nutzung zur Verfügung steht und einen echten Mehrwert für modernes Wohnen bietet.

Für die Apartments liegt eine offizielle Genehmigung der Stadt Trier zur Kurzzeitvermietung vor. Dadurch können die Einheiten flexibel auch über Plattformen wie Airbnb oder Booking.com für Zeiträume unter einem Monat vermietet werden. Das gesamte Gebäude ist als gewerblich nutzbar eingestuft.

Auch der Außenbereich überzeugt: Das vollständig erschlossene Grundstück bietet insgesamt 22 Stellplätze (à 15.000 €), sodass ausreichend Parkmöglichkeiten für Mitarbeiter, Kunden und Bewohner vorhanden sind. Zusätzlich verfügt das Gebäude über einen Keller sowie einen Speicher, die flexibel als Lagerflächen genutzt werden können.

Das Objekt wurde im Jahr 2016 umfassend kernsaniert und präsentiert sich heute in einem modernen und sehr gepflegten Zustand - sowohl technisch als auch optisch. Dies gewährleistet eine nachhaltige Werthaltigkeit und macht die Immobilie zu einer zukunftssicheren Investition.

Für Kapitalanleger besonders interessant ist die solide Ertragslage: Das Gebäude erzielt im ersten Quartal 2026 eine Gesamt-Nettokaltmiete von 182.200,00 € und stellt somit eine äußerst rentable Investitionsmöglichkeit dar. Detaillierte Mietaufstellungen und Renditekennzahlen stellen wir Ihnen gerne auf Anfrage zur Verfügung.

Mietübersicht 2025
Bürofläche Erdgeschoss: 55.400,00 €
Stellplätze Büro (12 Stück): 10.800,00 €
Apartments inkl. Stellplätze: 94.000,00 €

Gesamt-Nettokaltmiete: 160.200,00 €

Mietübersicht 2026 (Stand Q1)
Bürofläche Erdgeschoss: 55.400,00 €
Stellplätze Büro (12 Stück): 10.800,00 €
Apartments inkl. Stellplätze: 116.000,00 €

Gesamt-Nettokaltmiete: 182.200,00 €

Merkmale

  • Einbauküche
  • Bad mit Dusche
  • Keller
  • Terrasse
  • 22 Stellplätze: 22 Außen-Stellplätze
  • Waschraum
Allgemein:
- Dachboden, gedämmt, ggf. zur Lagerung + Keller
- Barrierefreier Gebäudezugang
- 3-fach Verglasung mit Lüftung und Schallschutz
- hochwertiger Öko-Vinylbodenbelag
- Elektrischer Sonnenschutz & Verdunkelung
- digitales Zugangssystem für alle Einheiten und Räume
- KeyBoy Schlüssel-Ausgabesystem für Self-Check-In Apartments
- Smart Home Heizungskontrollsystem
- Versorgungsschacht für Elektrizität, Wasser und Strom
- Fahrrad-Abstellplatz

Erdgeschoss 300 m²:
- 8 Einzelbüros
- 2 Konferenzräume, einer davon schalldicht
- 2 Sanitärräume
- 1 Empfangsbereich
- 1 offene Küche mit Terrasse
- 1 klimatisierter Serverraum mit Glasfaseranschluss und vollständige Netzwerkverkabelung in allen Räumen

1. Obergeschoss 230 m²:
- 6 voll möblierte Einzelapartments (zwischen 24 m² und 30 m²)
- Dachterrasse (ca. 45 m² auf 100 m² erweiterbar)
- 1 Putzmittelraum

2. Obergeschoss 160 m²:
- 4 voll möblierte Einzelapartments mit je 2 Zimmern (ca. 44 m²)
- Waschraum mit Waschmaschinen und Trockner
- 1 Putzmittelraum

Grundrisse

Grundrisse
1 / 4

Realisiere Dein Projekt

Bausubstanz und Energie

Energieausweis

Endenergiebedarf (Wärme)

  • Baujahr1950
  • HeizungsartZentralheizung
  • EnergieträgerElektro, Gas
MediumRectangleTop

Preisdetails

Kaufpreis
2320000 €
Preis pro Stellplatz
15000 €
Provision für Käufer
3,57 % inkl. MwSt.
Weitere Preisinformationen

zu verkaufen, 22 Stellplätze, Kaufpreis je: 15.000,00 EUR
Geschätzte Gesamtkosten
2.402.824 €1
Kaufpreis
2.320.000 €
Provision für Käufer (3,57%)
82.824 €
1Der angezeigte Wert ist eine automatisch berechnete Schätzung von immowelt.
2Bei den Angaben handelt es sich um ortsübliche Werte. Individuelle Kosten können abweichen.

Lage

address-icon
Trier-West-PallienTrier (54294)
Der Anbieter hat die genaue Adresse nicht freigegeben
Das Bobinet-Quartier im Westen von Trier - auf dem Gelände der ehemaligen Bobinet Textilfabrik - ist ein angesagtes, urbanes Quartier zum WOhnen und Arbeiten. Hier sind einzigartige Wohnlofts und Business-Einheiten als Gewerbelofts und Neubauten in einzigartiger Industriekulisse enstanden.

Das Verwaltungsgebäude der traditionsreichen Bobinetwerke wurde 2016 als eines der ersten Projekte im Zuge der Revitalisierung des Sanierungsgebietes "Bahnausbesserungswerk/Bobinet" in Zusammenarbeit mit der EGP GmbH Gesellschaft für urbane Projektentwicklung kernsaniert. Der Durchführung der Maßnahme lag eine Modernisierungsverinbarung mit der Stadt Trier zugrunde.

In jüngerer Zeit erlebt der Stadtteil Trier-West einen Aufschwung und ist zu einem gefragten Standort geworden, der sich durch viele Investitionen aktuell sehr positiv verändert.

Das Gebäude liegt nur wenige Minuten von der Trierer Innenstadt entfernt und bietet eine sehr gute Anbindung an den öffentlichen Nahverkehr: Mehrere Buslinien verkehren regelmäßig und bringen Sie schnell in die City, zum Hauptbahnhof oder in andere Stadtteile. Auch für Berufspendler sind die kurzen Wege zur B 49 und zur Autobahn A 602 ein klarer Vorteil.

Im direkten Umfeld finden sich vielfältige Einkaufsmöglichkeiten - vom Supermarkt für den täglichen Bedarf bis hin zu Fachgeschäften und Dienstleistern. Zudem ist die Trierer Innenstadt mit ihrem breiten Angebot an Einzelhandel und Boutiquen in kurzer Zeit erreichbar.

Für die Mittags- und Feierabendgestaltung sorgt eine lebendige Gastronomie-Szene: Cafés, Bistros und Restaurants in der Umgebung laden zu abwechslungsreicher Küche ein. Gleichzeitig bieten die Bobinethöfe selbst moderne Flächen für Büros und Dienstleister, die ein attraktives Arbeitsumfeld schaffen.

Ein weiterer Pluspunkt ist die hervorragende Anbindung an Luxemburg: Mit dem Auto erreichen Sie die Grenze in weniger als 30 Minuten, und dank gut ausgebauter Bus- und Bahnverbindungen gelangen auch Berufspendler schnell und komfortabel nach Luxemburg-Stadt oder in die umliegenden Gemeinden.

Das Gebäude verbindet somit urbanes Wohnen, Arbeiten und Freizeit auf ideale Weise - zentral gelegen, gut angebunden und mit allem, was man für den Alltag benötigt, direkt vor der Tür.

Weitere Informationen

Sonstiges Bei Interesse bieten wir Ihnen gerne eine Innenbesichtigung an. Wir führen Sie kompetent und völlig unverbindlich.
Die in unseren Exposé-Darstellungen aufgenommenen Daten beruhen auf Eigentümerangaben und sind unverbindlich. Irrtümer können nicht ausgeschlossen werden. Stichworte Stellplatz vorhanden, Gesamtfläche: 690,00 m², vermietbare Fläche: 690,00 m², Grundstücksfläche: 1.700,00 m², Anzahl Terrassen: 1, Distanz zum Kindergarten: 0.59, Distanz zur Grundschule: 0.57, Distanz zur Realschule: 0.90, Distanz zur nächsten Einkaufsmöglichkeit: 1.67, Distanz zum Gymnasium: 0.96, Distanz zum Flughafen: 9.48, Distanz zum Hauptbahnhof: 1.04, Distanz zur Autobahn: 3.32, Distanz zum Bus: 0.45, Distanz zur nächsten Gaststätte: 0.22, Distanz vom Zentrum: 2.31

Weitere Services

Lust auf eine Besichtigung?
Eine Frage zur Immobilie?
Nachricht hinzufügen
Mit der Nutzung der oben angegebenen Telefonnummer oder durch Klicken auf „Kontaktieren“ akzeptierst Du die Allgemeinen Nutzungsbedingungen, denen Du jederzeit widersprechen kannst. Weitere Informationen zum Datenschutz

Über den Anbieter

Domänenstraße 160-162, 54295 Trier
partner badge
10 Jahre Partnerschaft
Herr Stephan FranzenDein Kontakt
Online-ID: 268T3HAB9S81
Referenznummer: 983088
Immobilien Franzen GmbH
Immobilien Franzen GmbH
Bewertung: 3,6 von 5 Sternen
Nachricht hinzufügen
Mit der Nutzung der oben angegebenen Telefonnummer oder durch Klicken auf „Kontaktieren“ akzeptierst Du die Allgemeinen Nutzungsbedingungen, denen Du jederzeit widersprechen kannst. Weitere Informationen zum Datenschutz
MediumRectangleTop
MediumRectangleBottom
MediumRectangleTop
Wie zufrieden bist du mit dieser Seite (nicht mit der Immobilie selbst)?