Geschäftslokal/Büro/Ordinationsfläche zu mieten in 1210 Wien
Kurzbeschreibung
Geschäftslokal/Büro/Ordinationsfläche zu mieten in 1210 Wien
Objekt
Geschäftslokal/Büro/Ordinationsfläche zu mieten in 1210 Wien
Richten Sie Ihr Geschäftslokal, Büro oder Ihre Ordination in einer ausgezeichneten Lage an der Brünner Straße ein. Diese Lage bietet Ihnen eine hervorragende Infrastruktur mit guter Anbindung an öffentliche Verkehrsmittel, Einkaufsmöglichkeiten sowie gastronomische Einrichtungen.
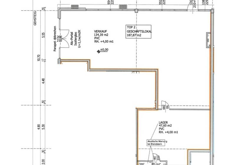
Das Objekt verfügt über eine Nutzfläche von ca. 188 m² und umfasst einen Verkaufsraum, einen Lagerraum, eine Teeküche sowie Toilettenanlagen.
Die Vermietung erfolgt unbefristet.
Ein Energieausweis wurde vom Vermieter nach Aufklärung über die generelle Vorlagepflicht ab 01.01.2009 noch nicht vorgelegt. Im Falle der Nichtvorlage gilt zumindest eine dem Alter und der Art des Gebäudes entsprechende Gesamtenergieeffizienz als vereinbart. Der vermittelnde Makler übernimmt keinerlei Gewähr oder Haftung für die tatsächliche Energieeffizienz des Gebäudes bzw. der Wohnung.
Merkmale
Erdgeschoss
Personenaufzug
Grundrisse
Grundrisse
1 / 2
Realisiere Dein Projekt
Bausubstanz und Energie
Möchtest du Details zum Energieverbrauch?
Mietkosten
Gesamtmiete
4.392 €
Nettokaltmiete
2.960 €
Betriebskosten
700 €
Umsatzsteuer
732 €
Provision für Mieter
13176 inkl. MwSt.
Kaution
13176 €13.176 €
Weitere Preisinformationen
Nettokaltmiete: 2.960,00 EUR
Lage
Wien (1210)
Der Anbieter hat die genaue Adresse nicht freigegeben
Verkehrsanbindung: Durch die Nähe der Haltestellen "Brünner Straße" und "Shuttleworthstraße" ist ein sehr guter Anschluss an das öffentliche Verkehrsnetz mit folgenden Linien gegeben: -Straßenbahn 30, 31 -Autobus 36B -S-Bahn S 3
Weitere Informationen
Sonstiges
Wir sind eine Tochtergesellschaft der ÖRAG-Österreichische Realitäten AG, Wien, genannt ÖRAG, und es besteht daher unter Umständen ein sonstiges wirtschaftliches Naheverhältnis im Sinne des Maklergesetzes zur ÖRAG und ihren anderen Tochtergesellschaften in Österreich. Das Naheverhältnis zur ÖRAG ergibt sich zB aus der Tatsache, dass die ÖRAG das Objekt für den Eigentümer verwaltet. Es kann aber auch ein wirtschaftliches Naheverhältnis im Sinne des Maklergesetzes zum Auftraggeber, also dem bzw. den Eigentümern bestehen, wenn wir laufend bzw. regelmäßig für diesen Auftraggeber als Makler tätig werden. Sollten Sie diesbezüglich Fragen haben oder eine weitere Aufklärung wünschen, wenden Sie sich bitte direkt an unseren Mitarbeiter. Die ÖRAG Immobilien Vermittlung GmbH wird als Doppelmakler tätig. Weitere Immobilien finden Sie auf unserer Website www.oerag.at.
Stichworte
Bürofläche: 188,00 m², Bundesland: Wien