Dieser Entwurf besticht mit seiner schlichten Formensprache: Ganz ohne Schnörkel oder überbordende Verzierungen weiß es sich gegenüber der umliegenden Bebauung zu behaupten. Im Mittelpunkt steht ein quaderförmiger Baukörper, der nur durch eine große Eingangsüberdachung ergänzt wird. Das flach geneigte Satteldach mit den schmalen Dachüberständen harmoniert perfekt mit der reduzierten Optik. Den modernen Wohnwünschen entsprechend öffnet sich das Fertighaus seiner Umgebung mit großzügigen Fensterflächen. Sie reichen von vertikalen und horizontalen Lichtbändern bis hin zur raumhohen Übereck-Verglasung. Einen sehr eleganten Touch erhält das Gebäude durch die anthrazitfarbenen Fensterrahmen, die zusammen mit der dunklen Dacheindeckung einen schönen Kontrast zur strahlend weißen Putzfassade bilden. Damit es auch am Abend gut zur Geltung kommt, können Bauherren Spots in die Dachüberstände integrieren lassen. Der Eingang befindet sich auf der Traufseite. Er kann aber - je nach Grundstückssituation - auch auf die Giebelseite gelegt werden. Das Innere des Hauses präsentiert sich überraschend offen. Erschlossen wird das Erdgeschoss von einer luftigen Diele mit Garderobenbereich: Hier können sich auch mehrere Personen aufhalten, ohne dass Gedränge entsteht. Gerade Familien mit mehreren Kindern oder Hausbesitzer, die gerne Gäste empfangen, werden diesen Vorteil zu schätzen wissen. An die Diele schließen sich ein kompaktes Gäste-WC und ein Hauswirtschaftsraum an. Ein breiter Durchgang führt die Besucher und Bewohner in das Herz des Hauses: den großzügigen Wohn-, Ess- und Kochbereich. Die fließenden Raumübergänge ermöglichen eine besonders familiäre Nähe: Während die Eltern das Essen vorbereiten, stehen sie jederzeit mit den Sprösslingen, die entweder fernsehen oder auf dem Fußboden spielen, in Kontakt. Eine Auszeit vom Familienleben finden die Bewohner im Dachgeschoss, das mit einem Kniestock von 1,60 m fast genauso viel Bewegungsfreiraum bietet wie das Erdgeschoss. Zwei annähernd gleich große Kinderzimmer, ein Elternschlafraum mit großem Ankleidebereich und ein gemütliches Badezimmer laden zum Entspannen ein.
Merkmale
300 m² Grundstück
Dieses hoch gedämmte Doppelhaus wird mit einer Wärmepumpe und unserer einzigartigen Wohlkühl-Klima-Heizung PLUS geheizt und gekühlt. Fenster mit Dreifachverglasung, sowie die Dämmung der Wände und im Dach sorgen für sehr geringen Energiebedarf und damit auch Nebenkosten. Einen großen Teil der Energie erzeugen Sie hierbei auf dem eigenen Dach mit einer Photovoltaik Anlage und Batteriespeicher selbst.
Das Haus wird "High Quality" schlüsselfertig, also ohne Eigenleistungen einzugsfertig übergeben.
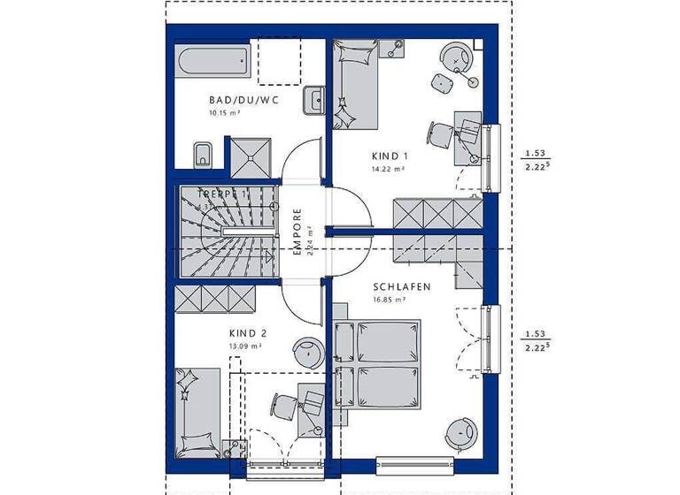
Grundrisse
Grundrisse
1 / 2
Realisiere Dein Projekt
Bausubstanz und Energie
Der Anbieter hat keine Informationen zu Energieverbrauch oder Zustand der Immobilie bereit gestellt.
Preisdetails
Kaufpreis
579379 €579.379 €
4.868,73 €/m²
Provision für Käufer
Bitte beachte, das Angebot kann bei Vertragsabschluss die Zahlung einer Provision beinhalten. Weitere Informationen erhältst Du vom Anbieter.
Geschätzte Gesamtkosten
649.311 €1
Kaufpreis
579.379 €
Kaufnebenkosten
69.932 €
2
Notarkosten (1,5%)
8.691 €
Grunderwerbsteuer (6,5%)
37.660 €
Provision für Käufer (3,57%)
20.684 €
Grundbucheintrag (0,5%)
2.897 €
1Der angezeigte Wert ist eine automatisch berechnete Schätzung von immowelt.
2Bei den Angaben handelt es sich um ortsübliche Werte. Individuelle Kosten können abweichen.
Lage
Innenstadt, Wülfrath (42489)
Der Anbieter hat die genaue Adresse nicht freigegeben
Wülfrath besticht durch seine ideale Lage mitten im Grünen mit gleichzeitig hervorragender Anbindung an städtische Infrastruktur. In unmittelbarer Nähe befinden sich zahlreiche Bildungseinrichtungen wie Kindergärten und Schulen sowie umfassende Gesundheitsangebote mit Ärzten und Apotheken.
Für Ihre täglichen Besorgungen stehen diverse Einkaufsmöglichkeiten bereit - vom Supermarkt bis hin zu kleinen Fachgeschäften ist alles gut erreichbar. Auch in Sachen Freizeitgestaltung hat Wülfrath einiges zu bieten: Ob Sportvereine, Spielplätze oder kulturelle Einrichtungen - hier findet jeder etwas nach seinem Geschmack.
Dank einer guten Verkehrsanbindung sind sowohl der öffentliche Personennahverkehr als auch die Autobahn schnell erreichbar, was Pendeln oder spontane Ausflüge besonders einfach macht. Egal ob Sie nach Düsseldorf pendeln oder am Wochenende ins Grüne fahren möchten - von Wülfrath aus starten Sie bequem in alle Richtungen.
Weitere Informationen
Sonstiges
Das Haus entspricht dem KfW40+ Standard.
Da es sich um eine Projektierung handelt, können wir aber auch ein anderes Bien-Zenker Haus wählen oder konstruieren.
QNG ist möglich.
Das Angebot richtet sich ausschließlich an Bien-Zenker Kunden!
Wir verkaufen und vermitteln keine Grundstücke.
Wenn Sie Bien-Zenker Kunde werden wollen, vereinbaren Sie bitte einen Termin mit mir.
Doppelhaus Celebration 122 Version 2 - https://www.fertighaus.de/haeuser/bz-celebration122v2l/