INSEL KRK, BASKA (Umgebung) - 2-Zimmer-Wohnung in einem neuen Gebäude mit Terrasse und 2 Parkplätzen
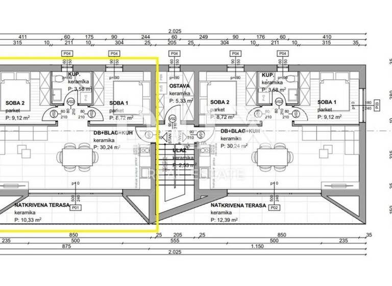
In der Nähe von Baska, 4 km vom Meer entfernt, steht eine Wohnung in einem neuen Gebäude zum Verkauf, modern gestaltet und gebaut auf hohem Niveau. Der Neubau besteht aus vier Wohneinheiten und liegt am Rande der Grünzone, umgeben von Olivenhainen. Die Wohnung befindet sich im 1. Stock des Gebäudes, hat eine Wohnfläche von 61,99 m2 und besteht aus einer Open-Space-Küche mit Esszimmer und Wohnzimmer, zwei Schlafzimmern und einem Badezimmer. Vom Wohnzimmer aus gibt es eine überdachte Terrasse von 10,33 m2. Die Wohnung ist nach Süden ausgerichtet und verfügt über zwei Parkplätze im Gemeinschaftsgarten. Die Zimmerei ist aus Aluminium, mit elektrischen Jalousienhebern, die Eingangstür ist einbruchhemmend. Die Klimaanlagen werden von Daikin sein und die Außengeräte werden versteckt sein. Beim Bau wurden äußerst hochwertige Materialien, moderne Sanitäranlagen, Keramik und andere Beläge verwendet. Der Käufer ist von der Zahlung der Immobilienumsatzsteuer befreit.
Liebe Kunden, die Vermittlungsprovision wird gemäß den Allgemeinen Geschäftsbedingungen berechnet. www.dux-nekretnine.hr/opci-uvjeti-poslovanja