



1 / 2




1 / 2
Grundstück zum Kauf379000 €379.000 €520 €/m²729 m² Grundstück
379000 €379.000 €
520 €/m²
729 m² Grundstück
6 Bauplätze - Premiumprojekt - ISTA-Nähe - 4.796 m² Grundstück - 2.233 m² bewilligte Nutzfläche - Baubewilligt
Baubewilligt . exklusiv . sofort realisierbar
In begehrter Grünruhelage von Maria Gugging gelangt dieses außergewöhnliche Bauträgerprojekt mit rechtskräftiger Baubewilligung zum Verkauf. Auf einer Gesamtgrundstücksfläche von ca. 4.796 m² entsteht ein hochwertiges Wohnensemble mit einer geplanten Gesamtnutzfläche von ca. 2.233 m². Die leichte Hanglage ermöglicht attraktive Ausblicke über die umliegende Hügellandschaft und garantiert zugleich höchste Privatsphäre.
Das genehmigte Projekt umfasst moderne Doppelhäuser mit großzügigen Eigengärten, Terrassen und Balkonen. Sämtliche Einreichpläne und Bewilligungen liegen vor. Sie erwerben ein baureifes Projekt ohne Planungs- und Genehmigungsrisiko.
Projektkennzahlen
* Grundstück gesamt: ca. 4.796 m²
* Genehmigte Gesamtnutzfläche: ca. 2.233 m²
* 6 Bauplätze mit bewilligter Doppelhausbebauung
* Großzügige Außenflächen & private Eigengärten
* Hochwertiges, zielgruppenstarkes Wohnkonzept
Flexible Erwerbsstruktur
Die einzelnen Bauplätze können auch separat erworben werden, wodurch sowohl Bauträger als auch private Bauherren oder Baugemeinschaften individuelle Umsetzungsmöglichkeiten erhalten.
Darüber hinaus unterstützen wir Sie auf Wunsch gerne bei der Realisierung des Bauvorhabens von der Projektkoordination über die Vermittlung zuverlässiger Bauunternehmen bis hin zur schlüsselfertigen Umsetzung.
Alles aus einer Hand - effizient, strukturiert und professionell begleitet.
Projektpotenzial für Bauträger
Aufrechte Baubewilligung
Attraktive, ruhige Wohnlage mit GrĂĽnblick
Klare Zielgruppe im ISTA-Umfeld
Hohe Nachfrage nach modernen Doppelhaus-Einheiten
Gute Weiterverwertbarkeit (Verkauf oder Vermietung)
Exzellente Lage mit nachhaltigem Wertpotenzial
Nur wenige Gehminuten vom renommierten Institute of Science and Technology Austria (ISTA) entfernt, bietet der Standort eine einzigartige Kombination aus internationalem Umfeld, Naturqualität und urbaner Nähe. Klosterneuburg ist in rund 12 Minuten erreichbar, das Wiener Stadtzentrum in ca. 30 Minuten. Infrastruktur, Schulen und Nahversorgung befinden sich im unmittelbaren Umfeld.
Standortvorteile
* Nur ca. 750 m zum Institute of Science and Technology Austria (ISTA)
* Ortszentrum fußläufig erreichbar
* Klosterneuburg-Zentrum ca. 12 Minuten mit dem PKW
* Wien Zentrum ca. 30 Minuten
* Bahnhof Klosterneuburg-Kierling ca. 11 Minuten mit dem Auto
Ihr strategischer Vorteil
In der aktuellen Marktsituation bedeutet dieses Projekt vor allem eines -> Zeitersparnis von bis zu 24 Monaten.
Keine Einreichplanung, kein Behördenverfahren, kein Bewilligungsrisiko, Sie starten unmittelbar mit der Umsetzung. Ideal für Bauträger, Investoren oder Projektentwickler mit Fokus auf hochwertige Wohnimmobilien im Wiener Umland sowie für die Vermietung an internationale Fachkräfte und Expats im ISTA-Umfeld.
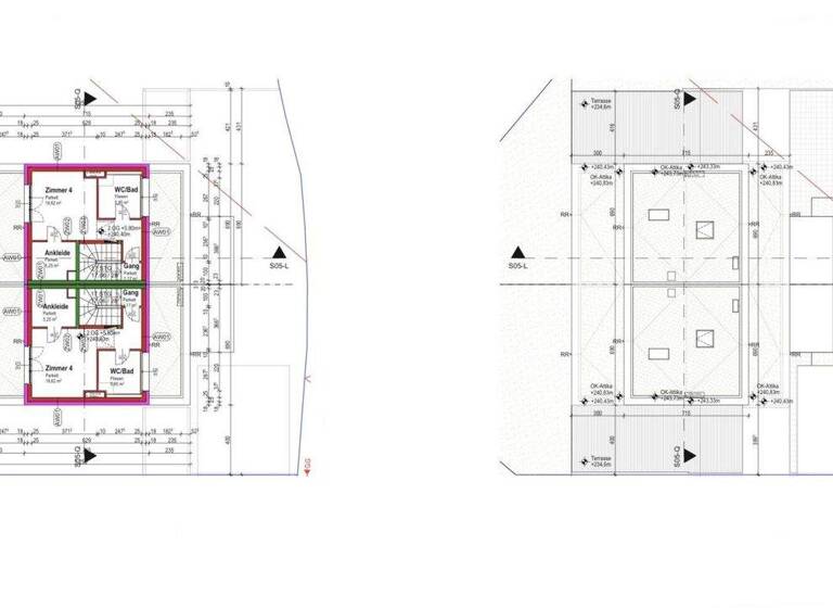
Bauplatz mit Baubewilligung ca. 729 m² | ca. 325 m² Wohnnutzfläche möglich | Eigengarten bis 235 m²
In begehrter Grünruhelage von Maria Gugging gelangt dieser attraktive Bauplatz mit ca. 729m² Grundstücksflächezum Verkauf. Das Grundstück ist Teil eines bereits bewilligten Doppelhausprojekts, Sie erwerben somit ein baureifes Grundstück inklusive rechtskräftiger Baubewilligung.
Je nach gewählter Einheit ist eine Wohnnutzfläche von rund 325m² pro Doppelhaus (ca. 162m² - 163 m² pro Einheit)realisierbar. Großzügige Eigengärten mit bis zu ca. 235m² Gartenfläche, Terrassenflächen bis rund 41 m² sowie Balkone bei ausgewählten Einheiten bieten ein hochwertiges Wohnkonzept mit viel Privatsphäre.
Die Hanglage ermöglicht attraktive Ausblicke über die umliegende Hügellandschaft und schafft ein exklusives Wohngefühl in absoluter Ruhelage.
Eckdaten
* Grundstück: ca. 729m²
* Bewilligte Wohnnutzfläche gesamt: ca. 325m² (Doppelhaus)
* Pro Einheit ca. 162m² - 163 m²
* Eigengärten: ca. 98m² - 235m²
* Garten-/Terrassenflächen: ca. 30m² - 41m²
* Baubewilligung rechtskräftig
*
Sofort realisierbar - kein Planungsrisiko
Ihr Vorteil
* Zeitersparnis von bis zu 24 Monaten
* Keine Einreichplanung notwendig
* Sofortiger Baustart möglich
* Ideal für Bauträger oder private Bauherren
Auf Wunsch begleiten wir Sie auch bei der kompletten Realisierung des Bauvorhabens von der Baukoordination bis zur schlĂĽsselfertigen Umsetzung.
Alles aus einer Hand.
Standortvorteile
* Nur ca. 750 m zum Institute of Science and Technology Austria (ISTA)
* Ortszentrum fußläufig erreichbar
* Klosterneuburg-Zentrum ca. 12 Minuten mit dem PKW
* Wien Zentrum ca. 30 Minuten
* Bahnhof Klosterneuburg-Kierling ca. 11 Minuten mit dem Auto
Gerne steht Ihnen Herr Michael Hellebrand fĂĽr weitere Fragen bzw. flexibel gestaltbare Besichtigungstermine unter 0664 75346995 [tel:066475346995] zur VerfĂĽgung.
www.4immobilien.at
Wir weisen ausdrücklich auf unser wirtschaftliches Naheverhältnis mit dem Abgeber/der Abgeberin und auf unsere Vermittlungstätigkeit als Doppelmakler hin.
Irrtum und Änderungen vorbehalten!
Hinweis gemäß Energieausweisvorlagegesetz: Ein Energieausweis wurde vom Eigentümer bzw. Verkäufer, nach unserer Aufklärung über die generell geltende Vorlagepflicht, sowie Aufforderung zu seiner Erstellung noch nicht vorgelegt. Daher gilt zumindest eine dem Alter und der Art des Gebäudes entsprechende Gesamtenergieeffizienz als vereinbart. Wir übernehmen keinerlei Gewähr oder Haftung für die tatsächliche Energieeffizienz der angebotenen Immobilie.
Der Vermittler ist als Doppelmakler tätig.
In begehrter Grünruhelage von Maria Gugging gelangt dieses außergewöhnliche Bauträgerprojekt mit rechtskräftiger Baubewilligung zum Verkauf. Auf einer Gesamtgrundstücksfläche von ca. 4.796 m² entsteht ein hochwertiges Wohnensemble mit einer geplanten Gesamtnutzfläche von ca. 2.233 m². Die leichte Hanglage ermöglicht attraktive Ausblicke über die umliegende Hügellandschaft und garantiert zugleich höchste Privatsphäre.
Das genehmigte Projekt umfasst moderne Doppelhäuser mit großzügigen Eigengärten, Terrassen und Balkonen. Sämtliche Einreichpläne und Bewilligungen liegen vor. Sie erwerben ein baureifes Projekt ohne Planungs- und Genehmigungsrisiko.
Projektkennzahlen
* Grundstück gesamt: ca. 4.796 m²
* Genehmigte Gesamtnutzfläche: ca. 2.233 m²
* 6 Bauplätze mit bewilligter Doppelhausbebauung
* Großzügige Außenflächen & private Eigengärten
* Hochwertiges, zielgruppenstarkes Wohnkonzept
Flexible Erwerbsstruktur
Die einzelnen Bauplätze können auch separat erworben werden, wodurch sowohl Bauträger als auch private Bauherren oder Baugemeinschaften individuelle Umsetzungsmöglichkeiten erhalten.
Darüber hinaus unterstützen wir Sie auf Wunsch gerne bei der Realisierung des Bauvorhabens von der Projektkoordination über die Vermittlung zuverlässiger Bauunternehmen bis hin zur schlüsselfertigen Umsetzung.
Alles aus einer Hand - effizient, strukturiert und professionell begleitet.
Projektpotenzial für Bauträger
Aufrechte Baubewilligung
Attraktive, ruhige Wohnlage mit GrĂĽnblick
Klare Zielgruppe im ISTA-Umfeld
Hohe Nachfrage nach modernen Doppelhaus-Einheiten
Gute Weiterverwertbarkeit (Verkauf oder Vermietung)
Exzellente Lage mit nachhaltigem Wertpotenzial
Nur wenige Gehminuten vom renommierten Institute of Science and Technology Austria (ISTA) entfernt, bietet der Standort eine einzigartige Kombination aus internationalem Umfeld, Naturqualität und urbaner Nähe. Klosterneuburg ist in rund 12 Minuten erreichbar, das Wiener Stadtzentrum in ca. 30 Minuten. Infrastruktur, Schulen und Nahversorgung befinden sich im unmittelbaren Umfeld.
Standortvorteile
* Nur ca. 750 m zum Institute of Science and Technology Austria (ISTA)
* Ortszentrum fußläufig erreichbar
* Klosterneuburg-Zentrum ca. 12 Minuten mit dem PKW
* Wien Zentrum ca. 30 Minuten
* Bahnhof Klosterneuburg-Kierling ca. 11 Minuten mit dem Auto
Ihr strategischer Vorteil
In der aktuellen Marktsituation bedeutet dieses Projekt vor allem eines -> Zeitersparnis von bis zu 24 Monaten.
Keine Einreichplanung, kein Behördenverfahren, kein Bewilligungsrisiko, Sie starten unmittelbar mit der Umsetzung. Ideal für Bauträger, Investoren oder Projektentwickler mit Fokus auf hochwertige Wohnimmobilien im Wiener Umland sowie für die Vermietung an internationale Fachkräfte und Expats im ISTA-Umfeld.
Bauplatz mit Baubewilligung ca. 729 m² | ca. 325 m² Wohnnutzfläche möglich | Eigengarten bis 235 m²
In begehrter Grünruhelage von Maria Gugging gelangt dieser attraktive Bauplatz mit ca. 729m² Grundstücksflächezum Verkauf. Das Grundstück ist Teil eines bereits bewilligten Doppelhausprojekts, Sie erwerben somit ein baureifes Grundstück inklusive rechtskräftiger Baubewilligung.
Je nach gewählter Einheit ist eine Wohnnutzfläche von rund 325m² pro Doppelhaus (ca. 162m² - 163 m² pro Einheit)realisierbar. Großzügige Eigengärten mit bis zu ca. 235m² Gartenfläche, Terrassenflächen bis rund 41 m² sowie Balkone bei ausgewählten Einheiten bieten ein hochwertiges Wohnkonzept mit viel Privatsphäre.
Die Hanglage ermöglicht attraktive Ausblicke über die umliegende Hügellandschaft und schafft ein exklusives Wohngefühl in absoluter Ruhelage.
Eckdaten
* Grundstück: ca. 729m²
* Bewilligte Wohnnutzfläche gesamt: ca. 325m² (Doppelhaus)
* Pro Einheit ca. 162m² - 163 m²
* Eigengärten: ca. 98m² - 235m²
* Garten-/Terrassenflächen: ca. 30m² - 41m²
* Baubewilligung rechtskräftig
*
Sofort realisierbar - kein Planungsrisiko
Ihr Vorteil
* Zeitersparnis von bis zu 24 Monaten
* Keine Einreichplanung notwendig
* Sofortiger Baustart möglich
* Ideal für Bauträger oder private Bauherren
Auf Wunsch begleiten wir Sie auch bei der kompletten Realisierung des Bauvorhabens von der Baukoordination bis zur schlĂĽsselfertigen Umsetzung.
Alles aus einer Hand.
Standortvorteile
* Nur ca. 750 m zum Institute of Science and Technology Austria (ISTA)
* Ortszentrum fußläufig erreichbar
* Klosterneuburg-Zentrum ca. 12 Minuten mit dem PKW
* Wien Zentrum ca. 30 Minuten
* Bahnhof Klosterneuburg-Kierling ca. 11 Minuten mit dem Auto
Gerne steht Ihnen Herr Michael Hellebrand fĂĽr weitere Fragen bzw. flexibel gestaltbare Besichtigungstermine unter 0664 75346995 [tel:066475346995] zur VerfĂĽgung.
www.4immobilien.at
Wir weisen ausdrücklich auf unser wirtschaftliches Naheverhältnis mit dem Abgeber/der Abgeberin und auf unsere Vermittlungstätigkeit als Doppelmakler hin.
Irrtum und Änderungen vorbehalten!
Hinweis gemäß Energieausweisvorlagegesetz: Ein Energieausweis wurde vom Eigentümer bzw. Verkäufer, nach unserer Aufklärung über die generell geltende Vorlagepflicht, sowie Aufforderung zu seiner Erstellung noch nicht vorgelegt. Daher gilt zumindest eine dem Alter und der Art des Gebäudes entsprechende Gesamtenergieeffizienz als vereinbart. Wir übernehmen keinerlei Gewähr oder Haftung für die tatsächliche Energieeffizienz der angebotenen Immobilie.
Der Vermittler ist als Doppelmakler tätig.
Merkmale
- 729 m² Grundstück
Grundrisse
Grundrisse
1 / 3
Realisiere Dein Projekt
Bausubstanz und Energie
Der Anbieter hat keine Informationen zu Energieverbrauch oder Zustand der Immobilie bereit gestellt.
Preisdetails
Kaufpreis
379000 €379.000 €
519,89 €/m²
Provision für Käufer
3% des Kaufpreises zzgl. 20% USt.
Lage

Maria Gugging (3400)
Weitere Informationen
Stichworte
Bundesland: Niederösterreich
Weitere Services
Lust auf eine Besichtigung?
Eine Frage zur Immobilie?
Ăśber den Anbieter
4 immobilienMaklerbĂĽro
UtzstraĂźe 1, 3500 Krems an der Donau
6 Jahre Partnerschaft
Herr Michael HellebrandDein Kontakt
Online-ID: 2ncm75s
Referenznummer: OBGC2026030313252118000fd08ffd3

4 immobilien
3,4/5Bewertung: 3,4 von 5 Sternen
Wie zufrieden bist du mit dieser Seite (nicht mit der Immobilie selbst)?