Version: 8.24.0Navigation ĂĽberspringen
95.000 €
3 Zimmer  â€˘  100 m²  â€˘  1.544 m² GrundstĂĽck  â€˘  frei ab sofort
Immowelt logo

Einfamilienhaus zum Kauf
95000 €
950 €/m²
3 Zimmer  â€˘  100 m²  â€˘  1.544 m² GrundstĂĽck  â€˘  frei ab sofort

Kleines Haus mit neuem Dach

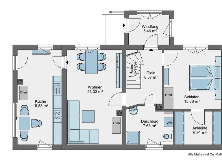
Das um 1940 in Massivbauweise errichtete Einfamilienhaus hat im Erdgeschoss 2 Zimmer, eine Küche und ein Duschbad, im Dachgeschoss befindet sich ein weiteres Zimmer. Neben dem Einfamilienhaus stehen auf dem Grundstück noch eine PKW-Garage und eine Scheune mit Anbau. In bzw. an den Gebäuden wurden seit 2011 diverse Instandhaltungsarbeiten ausgeführt, z.B.: Fenster (Küche, Schlafzimmer, Duschbad) - 2011/2015 Zählerschrank und diverse Leitungen - 2011 Schornstein unter dem Dach - 2016 Dacheindeckung des Hauses einschl. Dachrinnen erneuert – 2020 Teilweise Profilblecheindeckung der Scheune – 2020 Der Anbau an der Scheune wurde erneuert - 2020 Der Einsatz im Ofen (Schlafzimmer) wurde erneuert – 2021 Beheizt wird das Haus derzeit über 3 Kachelöfen. Es sind für den neuen Besitzer noch ein paar Renovierungsarbeiten übriggeblieben, hier kann nun nach eigenen Vorstellungen gestaltet werden. Das ca. 1.540 m² große Grundstück befindet am nördlichen Ortsrand von Sandförde, das Grundstück ist eingezäunt. Das vordere Flurstück ist mit den Gebäuden bebaut, auf dem hinteren Flurstück befindet sich der Garten und die Wiese für die Kleintierhaltung. Eckdaten: Wohnfläche des Hauses im EG:   ca. 83 m² + Ausbaureserve im DG: ca. 20 m² PKW-Garage: ca. 55 m² Scheune: ca. 57 m² + Anbau: 40 m² Grundstück: 674 m² (Gebäude- und Freifläche) + 870 m² (Erholungsfläche, Garten) = 1.544 m² Kaufpreis: 95.000 € zzgl. 3,5 % (3.325 €) Käuferprovision incl. gesetzlicher MwSt. Gerne stehen wir Ihnen zu einer persönlichen Beratung zur Verfügung.

Merkmale

  • frei ab sofort
  • 1.544 m² GrundstĂĽck
  • EinbaukĂĽche, separate KĂĽche
  • Garage
  • Garten
  • Terrasse
  • Glasfaser-Anschluss
  • Nicht möbliert

Grundrisse

Grundrisse
1 / 2

Realisiere Dein Projekt

Bausubstanz und Energie

Energieausweis

H
  • Baujahr1940
  • Letzte Modernisierung2020
  • EnergieträgerKohle, Holz, fossile Brennstoffe
Immowelt logo

Preisdetails

Kaufpreis
95000 €
950 €/m²
Provision für Käufer
die zusätzliche Käuferprovision beträgt 3,5 % vom Kaufpreis (3.325 €) incl. 19% MwSt.
Geschätzte Gesamtkosten
105.925 €1
Kaufpreis
95.000 €
Notarkosten (1,5%)
1.425 €
Grunderwerbsteuer (6%)
5.700 €
Provision für Käufer (3,5%)
3.325 €
Grundbucheintrag (0,5%)
475 €
1Der angezeigte Wert ist eine automatisch berechnete Schätzung von immowelt.
2Bei den Angaben handelt es sich um ortsübliche Werte. Individuelle Kosten können abweichen.

Lage

address-icon
Sandförder Dorfstraße 27, Sandförde, Jatznick (17309)
In dem malerischen Ortsteil Sandförde von Jatznick zeigt sich die perfekte Kombination aus Ruhe und ländlichem Charme. Diese idylische Lage ermöglicht es Familien, Professionals und Naturfreunden, sich in einer harmonischen Umgebung zu entfalten. Die umgebenden Wiesen bieten nicht nur zauberhafte Ausblicke, sondern fördern auch ein Leben im Einklang mit der Natur. Die praktische Anbindung an Verkehrsmittel sorgt dafür, dass alles Wichtige in greifbarer Nähe liegt. Ob Einkaufsgelegenheiten für den täglichen Bedarf oder Einrichtungen für die kleineren Familienmitglieder – hier findet man alles, was man braucht, ohne auf den ländlichen Frieden verzichten zu müssen. Für aktive Lebensstile sind in der nahegelegenen Umgebung reizvolle Parks und Freizeitmöglichkeiten zu finden, die dazu einladen, die Natur zu genießen und sich sportlich zu betätigen. Umgeben von einer herzlichen Gemeinschaft bietet dieser Standort nicht nur ein Zuhause, sondern auch einen Ort, an dem Lebensqualität großgeschrieben wird.

Weitere Services

Lust auf eine Besichtigung?
Eine Frage zur Immobilie?
Nachricht hinzufĂĽgen
Mit der Nutzung der oben angegebenen Telefonnummer oder durch Klicken auf „Kontaktieren“ akzeptierst Du die Allgemeinen Nutzungsbedingungen, denen Du jederzeit widersprechen kannst. Weitere Informationen zum Datenschutz

Ăśber den Anbieter

Feldstr. 16a, 17309 Pasewalk
partner badge
3 Jahre Partnerschaft
Herr Torsten MaskeDein Kontakt
Online-ID: 2nn2x5d
UER-Immobilien Torsten Maske
UER-Immobilien Torsten Maske
Nachricht hinzufĂĽgen
Mit der Nutzung der oben angegebenen Telefonnummer oder durch Klicken auf „Kontaktieren“ akzeptierst Du die Allgemeinen Nutzungsbedingungen, denen Du jederzeit widersprechen kannst. Weitere Informationen zum Datenschutz
Wie zufrieden bist du mit dieser Seite (nicht mit der Immobilie selbst)?