Version: 8.26.0Navigation überspringen
Sirius Facilities GmbH
6,90 €
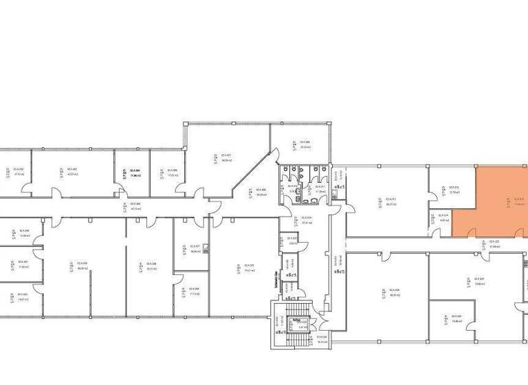
71,4 m² Bürofläche

Bürofläche zur Miete
6,90 €
/m²
71,4 m² Bürofläche

Schönes Büro mit Aussicht und 24/7 Zugang, sofort bezugsfertig. im 2. OG

Im Sirius Business Park Teningen stehen Büros, Lagerräume, Produktions- und Laborflächen zur Anmietung bereit. Die günstige Lage in der Nähe der Freiburger Hochschul- und Forschungslandschaft sowie faire Quadratmeterpreise und flexible Mietlaufzeiten machen den Standort besonders attraktiv.
Darüber hinaus bietet der Standort dank seines bunten Mietermixes viele Gelegenheiten für Austausch und Kooperation, die unsere Mieter sehr zu schätzen wissen.

Merkmale

  • Lastenaufzug
  • Außen-Stellplatz
  • DSL-Anschluss
  • Kantine
  • Raumaufteilung flexibel
  • Bodenbelag: Teppich
  • Beleuchtung: Deckenbeleuchtung
  • Empfang

Grundrisse

Grundrisse
1 / 1

Bausubstanz und Energie

Möchtest du Details zum Energieverbrauch?info_energy_calculation-icon
  • HeizungsartZentralheizung
MediumRectangleTop

Mietkosten

Monatliche Miete
6,90 €/m²
Provision für Mieter
Bitte beachte, das Angebot kann bei Vertragsabschluss die Zahlung einer Provision beinhalten. Weitere Informationen erhältst Du vom Anbieter.
Kaution
keine Angabe

Lage

address-icon
Tscheulinstr. 21Teningen (79331)
Der Sirius Business Park Teningen liegt ideal im Gewerbegebiet zwischen Elz und B3. Über die nahe gelegene A5 ist er optimal an das Fernstraßennetz angebunden. Vom knapp 20 km südlich gelegenen Freiburg aus erreichen Sie Ihre Gewerbeflächen in Teningen sowohl mit dem Auto als auch mit dem ÖPNV in nur 20 Minuten.


* Bequeme Anfahrt *

Bushaltestelle direkt am Business Park
Anschluss an die B3: 2 Minuten Fahrzeit
Bahnhof Köndringen: 0,8 km

Weitere Informationen

Sonstiges *Das Angebot ist abhängig von der Verfügbarkeit und ist nicht kombinierbar mit anderen Rabatten und Aktionen. Das Angebot gilt, sofern die beidseitige Vertragsunterschrift bis zum 16.03.26 geleistet wurde und bezieht sich auf Verträge mit einer Mindestlaufzeit von 36 Monaten. Das Angebot bezieht sich zudem ausschließlich auf die Kaltmiete, Nebenkosten sind zu zahlen. Ausgenommen von der Aktion sind Büros mit einer All-in-Miete.
Das Angebot gilt an folgenden Standorten**: promo.siriusfacilities.com/p2intern/

+++ Innovative Technologielösungen am Standort für Sie als Mieter +++

Mit unserem All-in-One-Service vermeiden Sie lange Wartezeiten und mühsame Kommunikation mit verschiedenen Anbietern. Unser Anschluss ist sofort verfügbar und kann ab 1 Monat gemietet werden.

+ Highspeed-Internet mit 100 Mbit/s über Glasfaserleitungen. (symmetrische Upload-/Downloadgeschwindigkeit)

+ Professionelle Telefonanlage mit Wildix-Telefonen.
+ 3.000 Freiminuten in 34 Länder, erreichbar über Cloud-basierte Lösungen.
+ Unser kompetentes Team vor Ort unterstützt Sie bei allen Fragen rund um unsere Services.

Die Abbildungen bzw. die Fotos der Mietflächen dienen lediglich der optischen Orientierung. Die Abbildungen der Mietflächen begründen keinen Anspruch auf ihren Erhalt und bedeuten nicht, dass diese, wie abgebildet, auch zur Verfügung stehen. Für genauere Informationen zu den Mietflächen ist die Produktbeschreibung maßgeblich. Fahrzeit zur Auto... 5,00 Fahrzeit zum Flug... 50,00 Fahrzeit zum Bahnhof 1,00 Stichworte Sonstiges: EDV-Verkabelung, Getrennte Damen- und Herren-WCs

Weitere Services

Lust auf eine Besichtigung?
Eine Frage zur Immobilie?
Mit einer persönlichen Nachricht hast du bessere Chancen auf eine Antwort.
Mit der Nutzung der oben angegebenen Telefonnummer oder durch Klicken auf „Kontaktieren“ akzeptierst Du die Allgemeinen Nutzungsbedingungen, denen Du jederzeit widersprechen kannst. Weitere Informationen zum Datenschutz

Über den Anbieter

Eichhornstraße 3, 10785 Berlin
partner badge
Partnerschaft
Herr Felix Meier
Herr Felix MeierDein Kontakt

Weitere Unterlagen

Online-ID: 23R1MM4GGPMG
Referenznummer: A9937Ac
MediumRectangleTop
Wie zufrieden bist du mit dieser Seite (nicht mit der Immobilie selbst)?