Version: 8.22.6Navigation überspringen
695.000 €
239 m²  •  444 m² Grundstück
Immowelt logo

Mehrfamilienhaus zum Kauf
695000 €
2.908 €/m²
239 m²  •  444 m² Grundstück

Zweifamilienhaus in Feldkirch - vielfältige Möglichkeit zum Wohnen, vermieten und Erweitern

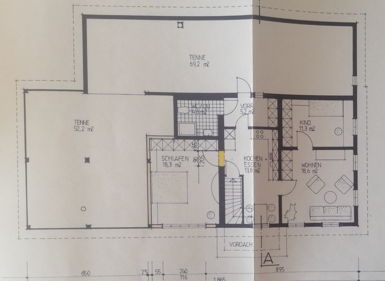
Willkommen in Ihrem neuen Zuhause – einem beeindruckenden Zweifamilienhaus in der malerischen Stadt Feldkirch. Dieses mehrfach renovierte Schmuckstück (Baujahr 1820) bietet Ihnen auf einem knapp 450 m2 großen Grundstück ausreichend Platz für Ihre Familie. Aber nicht nur das: alternativ können Sie das Objekt auch durch 2 getrennten Wohneinheiten nutzen. Die Vierzimmerwohnung im Erdgeschoss mit rund 109 m2 verfügt über Kellerräume, Schopf und Gartenanteil. Zur Verfügung stehen 2 Kinderzimmer, ein Elternschlafzimmer und Wohnzimmer, dazu eine Küche mit Diele und Esszimmer. Über den Vorraum gelangen Sie ins Bad sowie das seperate WC.

In der darüberliegenden 5 Zimmerwohnung im Obergeschoss stehen eine Wohnküche, Wohnzimmer, 3 Zimmer, Umkleide, Bad und WC bereit. Sie verfügt zudem über einen Schopf und Dachboden.

Bei einem Kaufpreis von 695.000,00 € erwartet Sie hier eine einmalige Gelegenheit, in eine Immobilie zu investieren, die keine Wünsche offen lässt und gleichzeitig zahlreiche Optionen bereit hält. Die zwei separaten Wohneinheiten bieten Ihnen die Flexibilität, entweder beide Einheiten selbst zu nutzen oder eine zu vermieten – ideal für Familien, die zusammen wohnen möchten, aber dennoch Wert auf Privatsphäre legen.

Der kleine Garten lädt zum Entspannen und Verweilen ein. Stellen Sie sich vor, wie Sie an sonnigen Tagen im Freien grillen oder mit Freunden und Familie feiern. Die Garagen und zusätzlichen Stellplätze sorgen dafür, dass Sie und Ihre Gäste immer genügend Platz haben.

Im Inneren des Hauses erwarten Sie lichtdurchflutete Räume mit Parkettboden. Die Einbauküche ist der perfekte Ort, um kulinarische Köstlichkeiten zu zaubern. Die Bäder, ausgestattet mit Fenstern, bieten nicht nur Komfort, sondern auch eine angenehme Belüftung.

Sie brauchen noch mehr Platz? Kein Problem! Erweitern Sie den angrenzenden Schopf ganz nach Ihren Wünschen oder bauen den gesamten Dachboden aus. Das Haus offeriert Ihnen vielfältige Erweiterungsmöglichkeiten.

Das Haus ist mit einer Gas-Zentralheizung ausgestattet, die für wohlige Wärme an kalten Tagen sorgt. Genießen Sie den Bergblick, der Ihnen jeden Morgen ein Lächeln ins Gesicht zaubert und Sie daran erinnert, wie schön das Leben in dieser Region ist.

Die Lage könnte nicht besser sein: Mit hervorragenden Verkehrsanbindungen an den öffentlichen Personennahverkehr sind Sie schnell in der Stadt oder auf dem Weg zu Ihren nächsten Abenteuern in der Natur. In unmittelbarer Nähe finden Sie alles, was Sie für den Alltag benötigen: Ärzte, Apotheken, Schulen, Kindergärten, Supermärkte und Bäckereien sind nur einen kurzen Spaziergang entfernt. Das Naherholungsgebiet mit nahegelegenem Waldbad, der Sportanlage Blau-Weiss Feldkirch oder die Baggerseeen, die nur einen kurzen Radausflug entfernt sind.

Dieses Zweifamilienhaus in Feldkirch ist nicht nur ein Ort zum Wohnen, sondern ein Lebensraum, der Ihnen und Ihrer Familie unvergessliche Erinnerungen bescheren wird. Lassen Sie sich diese einmalige Gelegenheit nicht entgehen! Vereinbaren Sie noch heute einen Besichtigungstermin und erleben Sie selbst, was dieses wunderbare Zuhause zu bieten hat. Wir freuen uns darauf, Ihnen diese exquisite Immobilie präsentieren zu dürfen!



Wir garantieren Ihnen eine professionelle Abwicklung und kümmern uns um alles!

Seit über 20 Jahren unterstützen wir unsere Kunden sehr erfolgreich bei der Immobilienvermittlung.

Profitieren auch Sie von den vielen Vorteilen unserer langjährigen und einschlägigen Erfahrung als Immobilienmakler.

Merkmale

  • Bezug: verhandelbar
  • 444 m² Grundstück
  • Einbauküche
  • 3 Stellplätze: Garage, Außen-Stellplatz
  • Bad/WC getrennt
  • Garten, Gartenmitbenutzung
  • Bergblick
  • Bad mit Fenster

Grundrisse

Grundrisse
1 / 2

Realisiere Dein Projekt

Bausubstanz und Energie

Der Anbieter hat keine Informationen zum Energieverbrauch bereit gestellt.
  • Baujahr1820
  • Zustand der ImmobilieAltbau (bis 1945), Massivhaus, renoviert / saniert
  • HeizungsartZentralheizung
  • EnergieträgerGas
Immowelt logo

Preisdetails

Kaufpreis
695000 €
2.907,95 €/m²
Provision für Käufer
Bitte beachte, das Angebot beinhaltet bei Vertragsabschluss die Zahlung einer Provision. Weitere Informationen erhältst Du vom Anbieter.

Lage

address-icon
Feldkirch (6800)
Der Anbieter hat die genaue Adresse nicht freigegeben
Dieses charmante Zweifamilienhaus in Feldkirch Gisingen besticht durch seine optimale Südausrichtung und eine hervorragende Lage. In unmittelbarer Nähe finden Sie alle Annehmlichkeiten des täglichen Lebens: Arzt, Apotheke, Schule, Kindergarten sowie Supermarkt und Bäckerei. Auch Bank und Post sind fußläufig erreichbar. Dank der guten Anbindung an Bus und Bahnhof sind Sie zudem bestens vernetzt. Hier genießen Sie Lebensqualität und Komfort!

Weitere Informationen

Besichtigungstermine nach Vereinbarung Stichworte Sonstiges: frei werdend

Weitere Services

Lust auf eine Besichtigung?
Eine Frage zur Immobilie?
Nachricht hinzufügen
Mit der Nutzung der oben angegebenen Telefonnummer oder durch Klicken auf „Kontaktieren“ akzeptierst Du die Allgemeinen Nutzungsbedingungen, denen Du jederzeit widersprechen kannst. Weitere Informationen zum Datenschutz

Über den Anbieter

Revier4 GmbHMaklerbüro
Bremschlstraße 22, 6706 Bürs
partner badge
Partnerschaft
Herr Jürgen Kessler
Herr Jürgen KesslerDein Kontakt

Weitere Unterlagen

Online-ID: 2nkne5k
Revier4 GmbH
Revier4 GmbH
Nachricht hinzufügen
Mit der Nutzung der oben angegebenen Telefonnummer oder durch Klicken auf „Kontaktieren“ akzeptierst Du die Allgemeinen Nutzungsbedingungen, denen Du jederzeit widersprechen kannst. Weitere Informationen zum Datenschutz
Wie zufrieden bist du mit dieser Seite (nicht mit der Immobilie selbst)?