Version: 8.24.1Navigation überspringen
460 €
1 Zimmer  •  41,2 m²  •  1. Geschoss
Immowelt logo

Studio zur Miete
460 €
1 Zimmer  •  41,2 m²  •  1. Geschoss

Ein - Zimmerwohnung zu vermieten!

Zur Vermietung gelangt diese schöne Einzimmerwohnung in Möllersdorf - Bezirk Baden.

Die Wohnung befindet sich am 1. Stock einer gepflegten Wohnhausanlage + wäre sofort beziehbar.

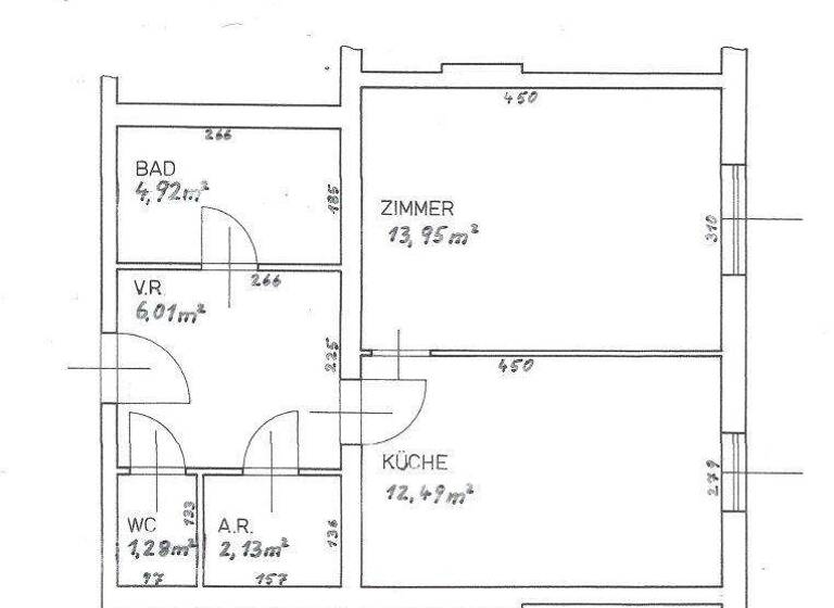
Die Immobilie teilt sich wie folgt auf -

- Stiegenhaus 

- Vorzimmer 6,01m2

- WC + Abstellraum

- Badezimmer mit Wanne + Waschmaschinenanschluss 4,92m2

- Küche inkl. Geräte - Essbereich 12,49m2

- Wohn / Schlafzimmer 13,95m2

- Parkplatz

- Kellerabteil + Fahrradraum

- gemeinsame Gartenfläche

- Beheizung: Gastherme mit Heizkörpern

- Die Mietdauer beträgt 5 Jahre mit Option auf Verlängerung

- Die Kosten für die Vertragserrichtung beträgt einmalig € 380.-

Vereinbaren Sie Ihre persönliche Besichtigung.

Ihre Immobilienträume.

Unser Ziel!

www.realbrokers.at

 

 

Der Immobilienmakler erklärt, dass er - entgegen dem in der Immobilienwirtschaft üblichen Geschäftsgebrauch des Doppelmaklers - einseitig nur für den Vermieter tätig ist.

Merkmale

  • Bezug: ab sofort
  • 1. Geschoss
  • Einbauküche
  • Außen-Stellplatz
  • Badewanne
  • Bodenbelag: Fliesen, Kunststoff

Grundrisse

Grundrisse
1 / 1

Realisiere Dein Projekt

Bausubstanz und Energie

Heizwärmebedarf (HWB)

F

Gesamtenergieeffizienz (fGEE)

Der Anbieter hat keine Daten zum Energieausweis hinterlegt.
  • Baujahr1986
  • Zustand der ImmobilieNeubau, Gepflegt
  • HeizungsartZentralheizung
  • EnergieträgerGas
Immowelt logo

Mietkosten

Gesamtmiete
680 €
Nettokaltmiete
15,02 €/m²
460,20 €
Betriebskosten
157,98 €
Kaution
2.500,00 €
Weitere Preisinformationen
1 Stellplatz
Nettokaltmiete: 460,20 EUR

Lage

address-icon
Guntramsdorfer Straße 30Möllersdorf (2514)
nähe Baden - Mödling

Weitere Informationen

Stichworte Stellplatz vorhanden, Fahrradraum, Anzahl der Badezimmer: 1, Anzahl der separaten WCs: 1, Kellerfläche: 2,00 m², Bundesland: Niederösterreich, Wohnungsnr.: 15, modernisiert: 2026

Weitere Services

Lust auf eine Besichtigung?
Eine Frage zur Immobilie?
Nachricht hinzufügen
Mit der Nutzung der oben angegebenen Telefonnummer oder durch Klicken auf „Kontaktieren“ akzeptierst Du die Allgemeinen Nutzungsbedingungen, denen Du jederzeit widersprechen kannst. Weitere Informationen zum Datenschutz

Über den Anbieter

Braitnerstraße 41 Büro 1A, 2500 BADEN
partner badge
Partnerschaft
Herr Harald EbnerDein Kontakt
Online-ID: 2ntan5s
Referenznummer: OBGC20260306064042127c9a60b2e41
realbrokers immobilien dienstl. GmbH & Co KG
Bewertung: 4,6 von 5 Sternen
Nachricht hinzufügen
Mit der Nutzung der oben angegebenen Telefonnummer oder durch Klicken auf „Kontaktieren“ akzeptierst Du die Allgemeinen Nutzungsbedingungen, denen Du jederzeit widersprechen kannst. Weitere Informationen zum Datenschutz
Wie zufrieden bist du mit dieser Seite (nicht mit der Immobilie selbst)?