Version: 8.26.0Navigation überspringen
650.000 €
340 m²  •  470 m² Grundstück
Immowelt logo

Sonstiges zum Kauf • als Kapitalanlage geeignet
650000 €
340 m²  •  470 m² Grundstück

++ verkehrsgünstige Lage nähe Neckar ++ 6 Stellplätze/Garagen ++ Gartenanteil +++

Objektbeschreibung Dieses zu verkaufende Wohn-/Geschäftsgebäude (1 Gewerbeeinheit sowie 2 Wohnungen) aus dem Jahr 1960 befindet sich in absolut verkehrsgünstiger Lage von Stuttgart-Mühlhausen. Diverse Einkaufsmöglichkeiten (Kaufland, Netto, Bäcker, Tankstellen, Fressnapf, usw.) sowie Restaurants befinden sich in der Nähe und sind fussläufig sehr gut erreichbar.
Der Neckar befindet sich ebenfalls nur wenige Gehminuten entfernt.

U-Bahn "Mühlhausen" (U12, U14) ca. 250m (ca. 3 Gehminuten)
Bus (Linien 53, 54, N5) ca. 100 m (ca. 2 Gehminuten)
Autobahn A81 ca. 11,0 km (ca. 14 Fahrminuten)
Bundesstraße B27 ca. 4,0 km (ca. 7 Fahrminuten)
Flughafen/Messe ca. 22,0 km (ca. 40 Fahrtminuten)
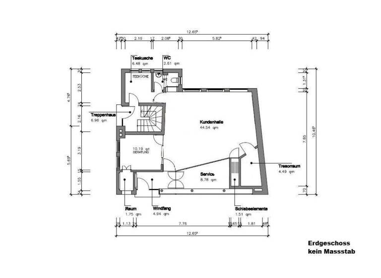
Stuttgart Stadtmitte ca. 10,0 km (ca. 23 Fahrminuten) Aufteilung Erdgeschoß (ehemalige Bankfiliale) ca. 96 m²
1. Obergeschoß (3-4 Zimmerwohnung) ca. 91 m²
Dachgeschoß (3 Zimmerwohnung) ca. 64 m²
Untergeschoss (Lager, Keller, Heizung, Flur, usw.) ca. 89 m²
Gesamtfläche ca. 340 m²

3 Stellplätze im Freien
3 Garagen

Grundstücksgröße ca. 470 m²

Auf Wunsch stellen wir Ihnen gerne weitere Unterlagen zur Verfügung:
+ Grundbuchauszug
+ Energieausweis
+ Grundrisspläne
+ Lageplan
+ usw.

Merkmale

  • Bezug: Bezug nach Vereinbarung möglich
  • 470 m² Grundstück
  • 6 Stellplätze
Die Immobilie befindet sich in einem guten Unterhaltungszustand.
Das Gebäude ist nicht gedämmt. Der Zustand der Fassade sowie des Daches entsprechen dem Baujahr.
Untergeschoß neu renoviert inkl. Elektroverteiler, Gasanschlüßen und Sickergrube
Kabelanschluß im Gebäude

Erdgeschoß (ehemalige Bankfiliale)

+ ebenerdiger Zugang
+ Fliesenboden/Teppichboden
+ Wände Glattputz in weiß
+ Beleuchtung
+ teilweise Flächenvorhänge
+ teilweise Glastrennwände
+ Akustikdecke
+ kleine Teeküche
+ 1 WC
+ Klimageräte
+ Raumhöhe ca. 2,97 m
+ separater Zugang über Treppenhaus
+ uvm.

1. Obergeschoß (Wohnung)

+ Laminatboden in Holzoptik
+ Aussenjalousien
+ Rauhfaser in weiß
+ sep. WC
+ Tageslichtbad mit Badewanne
+ Durchlauferhitzer für Warmwasser
+ kleiner Balkon
+ Küchenanschlüße
+ uvm.

Dachgeschoß (Wohnung)

+ Laminatboden in Holzoptik
+ Aussenjalousien
+ Rauhfaser in weiß
+ sep. WC
+ Tageslichtbad mit Badewanne
+ Durchlauferhitzer für Warmwasser
+ Küchenanschlüße
+ uvm.

Grundrisse

Grundrisse
1 / 3

Bausubstanz und Energie

Energieausweis

  • Baujahr1959
  • EnergieträgerGas
Immowelt logo

Preisdetails

Kaufpreis
650000 €
Provision für Käufer
4,76

4,76 % aus dem Kaufpreis inkl. MwSt.
Weitere Preisinformationen

EUR 650.000,-

Das Objekt steht komplett leer und kann sofort bezogen/genutzt werden.
Alle Preise sind inkl. MWST.
Geschätzte Gesamtkosten
680.940 €1
Kaufpreis
650.000 €
Provision für Käufer (4,76%)
30.940 €
1Der angezeigte Wert ist eine automatisch berechnete Schätzung von immowelt.
2Bei den Angaben handelt es sich um ortsübliche Werte. Individuelle Kosten können abweichen.

Lage

address-icon
MühlhausenStuttgart (70378)
Der Anbieter hat die genaue Adresse nicht freigegeben

Weitere Informationen

Miete EUR 650.000,-

Das Objekt steht komplett leer und kann sofort bezogen/genutzt werden.

Weitere Services

Lust auf eine Besichtigung?
Eine Frage zur Immobilie?
Nachricht hinzufügen
Mit der Nutzung der oben angegebenen Telefonnummer oder durch Klicken auf „Kontaktieren“ akzeptierst Du die Allgemeinen Nutzungsbedingungen, denen Du jederzeit widersprechen kannst. Weitere Informationen zum Datenschutz

Über den Anbieter

Rüsternweg 7, 70597 Stuttgart
partner badge
6 Jahre Partnerschaft
Herr Jens LudwigDein Kontakt
Online-ID: 26CTBJ54KTCU
Referenznummer: P866
Wie zufrieden bist du mit dieser Seite (nicht mit der Immobilie selbst)?