Seniorengerechter barrierefreier Bungalow in Gangelt -Langbroich
Dieser neuwertige, lichtdurchflutete Bungalow bietet alles, was Sie sich für ein komfortables und barrierefreies Leben wünschen. Auf der großzügigen 113 m² Wohnfläche erwartet Sie eine durchdachte Raumaufteilung mit drei Zimmern, u. a. ein geräumiger Wohn- und Essbereich mit integrierter offener Küche. Große Fensterfronten in allen Räumen sorgen für eine helle, einladende Atmosphäre und bringen viel Tageslicht in Ihr neues Zuhause. Angeboten wird ein Bungalow mit gehobener komfortabler Ausstattung, wo selbst das Gäste-WC über eine 1m breite Türe verfügt, damit diese auch barrierefrei zugänglich ist. Der direkte Zugang vom Hauswirtschaftsraum in die mehr als großzügige Doppelgarage erhöht den Wohnkomfort zusätzlich und sorgt für eine maximale Alltagserleichterung. Das moderne Badezimmer sowie das separate Gäste-WC lassen keine Wünsche offen. Ein flexibles Gästezimmer, welches auch als Büro genutzt werden kann, bietet weitere zusätzliche Gestaltungs- bzw. Nutzungsmöglichkeiten. Eine Kombination aus Büro- und Gästezimmer wäre auch denkbar. Genießen Sie entspannte Stunden auf der Terrasse oder in dem zum Objekt passenden, angelegten und nicht zu großen Garten. Zusätzlich zum Hauswirtschaftsraum und weiteren Abstellmöglichkeiten in der Doppelgarage bietet der Dachboden über eine Auszugstreppe weiteren Stauraum an. Ausgestattet mit einer Fußbodenheizung, einer Luft-Wasser-Wärmepumpe sowie einer Photovoltaikanlage nebst Speicher erfüllt das Objekt in hohem Maße den aktuellen energetischen Anforderungen. Bedenken Sie auch die komplette Fertigstellung der Immobilie einschließlich der gesamten hochwertigen Einfriedung sowie der Küche. Lassen Sie sich die Gelegenheit nicht entgehen und vereinbaren Sie noch heute einen Besichtigungstermin.
Merkmale
Bezug: Anfang 2026
478 m² Grundstück
Barrierefrei
Einbauküche
Ausgestattet ist diese Immobilie mit einer Fußbodenheizung, Wärmepumpe sowie einer Dreifach-Verglasung. Eine Photovoltaikanlage nebst Stromspeicher reduziert die Stromkosten. Das Objekt ist komplett fertiggestellt und eingefriedet. Eine neue hochmoderne Küche rundet das Paket ab.
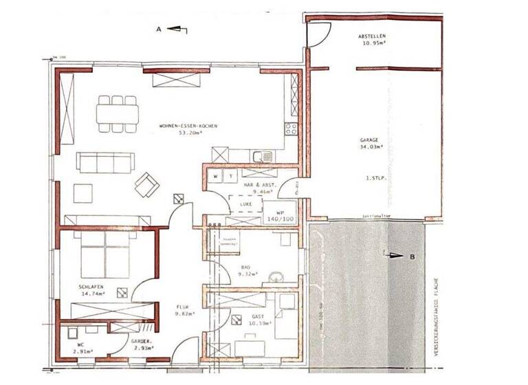
Grundrisse
Grundrisse
1 / 1
Realisiere Dein Projekt
Bausubstanz und Energie
Energieausweis
A+
Baujahr2023
Zustand der ImmobilieNeubau
EnergieträgerElektro
Preisdetails
Kaufpreis
579000 €579.000 €
5.123,89 €/m²
Provision für Käufer
2,38% inkl. MwSt.
Geschätzte Gesamtkosten
641.995 €1
Kaufpreis
579.000 €
Kaufnebenkosten
62.995 €
2
Notarkosten (1,5%)
8.685 €
Grunderwerbsteuer (6,5%)
37.635 €
Provision für Käufer (2,38%)
13.780 €
Grundbucheintrag (0,5%)
2.895 €
1Der angezeigte Wert ist eine automatisch berechnete Schätzung von immowelt.
2Bei den Angaben handelt es sich um ortsübliche Werte. Individuelle Kosten können abweichen.
Lage
Langbroich, Gangelt (52538)
Der Anbieter hat die genaue Adresse nicht freigegeben
Die Umgebung der Immobilie in Gangelt - Langbroich bietet eine ruhige naturnahe Umgebung mit guter Anbindung an den öffentlichen Nahverkehr. Gangelt selbst überzeugt durch seine historische Altstadt, charmante Cafés und den Wildpark Gangelt, der besonders für Familien ein beliebtes Ausflugsziel darstellt. Der nahegelegene Bahnhof "Schierwaldenrath" der Selfkantbahn lädt zu nostalgischen Zugfahrten durch die Region ein. Die Bushaltestelle "Langbroich Krings" und "Langbroich Kirche" ermöglichen eine einfache Anbindung an das Umland. Alle wichtigen Einrichtungen des täglichen Bedarfs darunter Supermärkte, Ärzte und Apotheken-sind bequem erreichbar und machen den Alltag hier besonders angenehm. Die Kombination aus ländlicher Idylle, praktischen Verkehrsanbindungen und naturnahen Freizeitmöglichkeiten macht die Immobilie zu einem idealen Standort für all jene, die Ruhe und Erholung suchen, aber nicht auf städtische Annehmlichkeiten verzichten möchten. Schnell erreichen Sie die A 46 Verlängerung als Zubringer zu den Städten Düsseldorf, Maastricht oder Roermond.
Weitere Informationen
Sonstiges
Die genannten Informationen beruhen auf den Angaben des Verkäufers. Für die Richtigkeit und Vollständigkeit der Angaben wird keine Gewähr oder Haftung übernommen.
Seit dem 25. Mai 2018 gilt in Deutschland die EU-Datenschutz-Grundverordnung (DS-GVO). Sie regelt, wie private Unternehmen und öffentliche Stellen personenbezogene Daten verarbeiten dürfen. Neben dem freien Datenverkehr innerhalb der Europäischen Union steht der Schutz der personenbezogenen Daten im Vordergrund. Weitere Angaben zum Umgang mit personenbezogenen Daten sowie Rechten finden Sie unter www.debeka.de/datenschutz.
Stichworte
Nutzfläche: 45,00 m², Anzahl der Schlafzimmer: 2, Anzahl der Badezimmer: 1
Sonstiges/Wohnen: seniorengerechtes Wohnen