Ihr Eigenheim wartet auf Sie! Inkl. Grundstück in Zwickau-Planitz!
Basierend auf den schönsten Wohnideen der Bauherren hat Kern-Haus das Architektenhaus Luna entwickelt. Luna ist ideal auf die Bedürfnisse und Anforderungen von Familien ausgerichtet: hier gibt es reichlich Platz für Eltern, Kinder und Gäste.
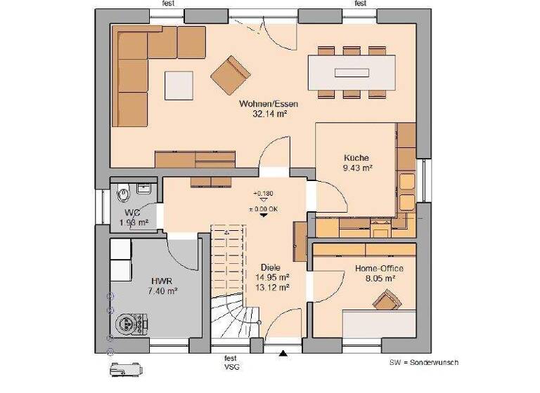
Das Erdgeschoss bietet neben großen, lichtdurchfluteten Wohn- und Essraum und der offenen Küche noch einen weiteren Raum, der beliebig, beispielsweise als Home-Office oder Gästezimmer genutzt werden kann.
Im Dachgeschoss bieten zwei große Kinderzimmer viel Platz zum Spielen. Ein geräumiges Elternschlafzimmer und das beeindruckend großzügige Familienbad vervollständigen das Wohlfühl-Angebot.
Dieses Haus wird nach Ihren individuellen Wünschen geplant und ausgestattet!
+ Schlüsselfertiges Massivhaus im Sinne der Ausstattungsbeschreibung "Easy" + Inklusive Bodenplatte
Beste Markenausstattung in jedem Kern-Haus:
+ Zimmermannsmäßiger Dachstuhl aus Konstruktionsvollholz + Dacheindeckung mit Betondachsteinen von Braas + Hochwertiger Kunstharz-Außenputz für eine langlebige Fassade + Vollständige Badausstattung von Villeroy & Boch mit Badewanne und flacher Duschwanne + Fliesen von Villeroy & Boch in Bad und WC + Haustür mit 3-fach-Sicherheitsverriegelung + Erstklassige Innentüren der Marke Herholz + Fenster mit 3-Scheiben-Wärmeschutzverglasung und Rollläden + Stahl-Holz-Treppe mit individueller Farbgestaltungsmöglichkeit + Elektroausstattung inklusive Klingelanlage + Rauchmelder für Ihre Sicherheit + Alle Leistungen aus einer Hand + Alle Planungs- und Architektenleistungen + Einsatz regionaler Handwerksbetriebe + Individuelle Anpassung auf Ihre Bedürfnisse + Auf Wunsch mit Keller erhältlich + Auf Wunsch mit weiteren Energietechniken erhältlich
Grundrisse
Grundrisse
1 / 2
Realisiere Dein Projekt
Bausubstanz und Energie
Energieausweis
A+
Baujahr2024
Zustand der ImmobilieNeubau, Projektiert
HeizungsartZentralheizung: Fußbodenheizung
EnergieträgerElektro
Preisdetails
Kaufpreis
412900 €412.900 €
3.151,91 €/m²
Provision für Käufer
provisionsfrei
Geschätzte Gesamtkosten
443.869 €1
Kaufpreis
412.900 €
Kaufnebenkosten
30.969 €
2
Notarkosten (1,5%)
6.194 €
Grunderwerbsteuer (5,5%)
22.710 €
Grundbucheintrag (0,5%)
2.065 €
1Der angezeigte Wert ist eine automatisch berechnete Schätzung von immowelt.
2Bei den Angaben handelt es sich um ortsübliche Werte. Individuelle Kosten können abweichen.
Lage
Oberplanitz, Zwickau (08294)
Der Anbieter hat die genaue Adresse nicht freigegeben
Das Grundstück befindet sich im Zwickauer Stadtteil Oberplanitz. Es handelt sich um eine ebenerdige Baulücke, umgeben von Bestandsgebäuden. Sie erreichen fußläufig Einrichtungen des täglichen Bedarfs und öffentliche Verkehrsmittel.
Der Preis versteht sich inklusive Grundstück und exklusive Baunebenkosten. Wir planen jedes Kern-Haus frei & Individuell nach Ihren Wünschen und passen es in das Grundstück ein.
Weitere Informationen
Sonstiges
Kern-Haus
Kern-Haus baut individuelle und massive Architektenhäuser zu einem attraktiven Preis-Leistungs-Verhältnis - und das bereits mit einer Erfahrung seit 1980. Kern-Haus ist an mehr als 20 Standorten in Deutschland vertreten. Bei Kern-Haus erhalten Sie unter anderem 10 Jahre Gewährleistung auf die wesentlichen Bauleistungen, bis zu 24 Monate Preissicherheit sowie eine dokumentierte 5-Phasen-TÜV-Prüfung während der Bauphase.
40 Jahre Expertise für das massive, energieeffiziente Bauen: Kern-Haus realisiert Massivhäuser in Ziegel, Bims, Porenbeton oder Stahlbeton (DuoTherm).
Jedes Kern-Haus ist bereits im Standard ein schlüsselfertiges Massivhaus in der Energieeffizienzklasse A+.
Kern-Haus setzt auf eine hohe Bauqualität der Handwerker und auf eine große Auswahl starker Marken. So verwendet Kern-Haus beim Bau Ihres Hauses nur hochwertige Markenprodukte renommierter Hersteller - wie etwa Produkte von Villeroy & Boch.
Maximale Sicherheit bei Kern-Haus: + 10 Jahre Gewährleistung auf die wesentlichen Bauleistungen + Bis zu 24 Monate Festpreisbindung + 50 Jahre Gewährleistung auf das DuoTherm-Mauerwerk + 5 Phasen-TÜV-Prüfung + Verbindliche Bauzeit + Zahlung nach Baufortschritt
Weitere Informationen
Der gezeigte Preis versteht sich inklusive Grundstück und exklusive der Baunebenkosten.
Das Kern-Haus-Team in Chemnitz freut sich darauf Ihre Fragen zu beantworten. Jetzt anrufen: 03722 / 71850
Kern-Haus in Chemnitz - https://www.kern-haus.de/chemnitz/
Weitere Architektenhäuser - https://www.kern-haus.de/haeuser
Stichworte
Stellplatz vorhanden, Anzahl der Schlafzimmer: 4, Anzahl der separaten WCs: 1