Version: 8.25.1Navigation überspringen
KENSINGTON Immobilien Berlin-Pankow
445.000 €
4 Zimmer  •  118,2 m²  •  206 m² Grundstück

Doppelhaushälfte zum Kauf • provisionsfrei
445000 €
3.764 €/m²
4 Zimmer  •  118,2 m²  •  206 m² Grundstück

Doppelter Wohnkomfort - Moderne Doppelhaushälfte im Stienitzpark

Die Qual der Wahl! Neu, mit viel Platz und in grüner Umgebung. Hier will ich zu Hause sein.

Am nord-östlichen Berliner Stadtrand, im naturnahen Werneuchen, entsteht dieser moderne Wohnpark mit sechs Reihenhäusern und zwei Doppelhäusern, die sich mit einer Wohnfläche von ca. 118 m2 bis 144 m2 über drei Etagen erstrecken.
Das Erdgeschoss beeindruckt mit einem offenen Grundriss, denn die Verbindung von Wohn- , Ess- und Küchenbereich schafft viel Platz für die liebsten Möbelstücke und sorgt für ein angenehmes Raumgefühl. Hier bieten die bodentiefen Fenster angenehme Lichtverhältnisse und ermöglichen den Zugang zur Terrasse und zum Garten. Des Weiteren befinden sich hier im Erdgeschoss das taghelle Gäste-WC und ein Abstellraum unter der Treppe.
Über den Treppenaufgang gelangt man in das Obergeschoss. Diese Etage wartet auf Sie mit zwei Schlafzimmern. Ja nach Einheit gibt es ein weiteres kleineres Zimmer, welches sich optimal als Arbeitszimmer eignet. Die teilweise taghellen Bäder sind je nach Einheit mit einer Badewanne oder einer ebenerdigen Dusche ausgestattet. Das Badezimmer wird über hochwertige Fliesen und Sanitärobjekte verfügen.
Im frühen Bauabschnitt können individuelle Wünsche der neuen Eigentümer noch berücksichtigt werden. So kann durch die freie Wahl von zum Beispiel Armaturen und Bodenbelägen die individuelle Persönlichkeit der zukünftigen Bewohner gegen Mehrpreis frei entfaltet werden.
Im zweiten Obergeschoss findet sich ein weiteres großzügiges Schlafzimmer sowie eine Galerie oder ein Studio mit Zugang zur Dachterrasse.
Zusätzliche gibt es eine gemeinschaftliche Parkfläche mit einem Stellplatz für jede Einheit. Vereinzelt verfügt eine Einheit über einen eigenen Stellplatz am Haus.
Hinter dem Wohnpark, Richtung Stadtkern, entsteht eine öffentliche Grünfläche mit Spielplatz
Der Bauträger hat es sich zum Ziel gemacht, bezahlbaren und gleichzeitig hochwertigen Wohnraum zu schaffen. Verwirklichen Sie Ihren Traum des eigenen Zuhauses und profitieren Sie vom Rundum-Sorglos-Paket des Bau trägers, welcher bereits zahlreiche Projekte in Berlin und Brandenburg realisiert hat und Sie von Beginn bis zur Übergabe der Immobilie begleiten wird.
Sie erhalten das Haus schlüsselfertig, einschließlich der zum Haus gehörigen Außenanlagen.

Merkmale

  • 206 m² Grundstück
  • Einbauküche, offene Küche
  • Gäste-WC
  • Kein Keller
  • Terrasse
  • Außen-Stellplatz
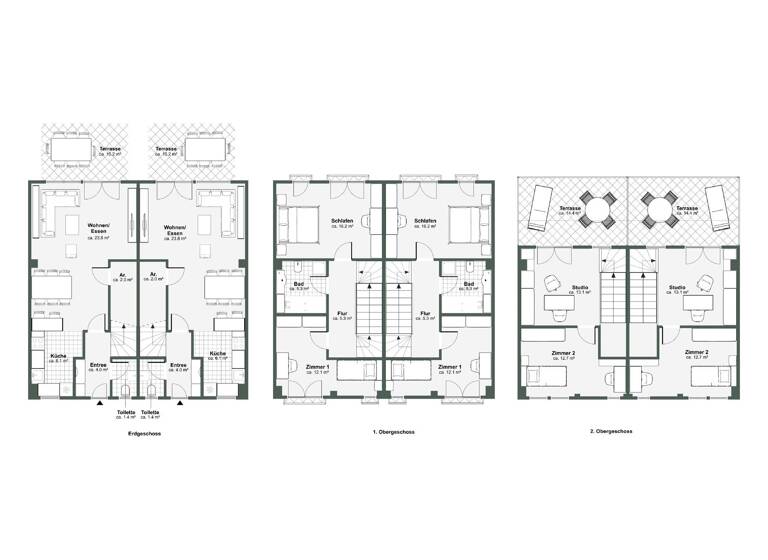
ERDGESCHOSS
. Diele mit Treppenaufgang zum Obergeschoss
. Taghelles Gäste-WC mit Fenster und Fußbodenheizung
. Großzügig geschnittener Küchen-, Wohn- und Essbereich
. Bodentiefe Kunststoff-Fenster
. Abstellraum unter der Treppe

1. OBERGESCHOSS
. Schlafzimmer
. Kinder- / Gästezimmer
. Badezimmer mit Dusche oder Wanne und hochwertiger Verfliesung
. Je nach Einheit ein zusätzliches Arbeitszimmer

2. OBERGESCHOSS
. Schlafzimmer
. Studio oder Galerie
. Dachterrasse

WEITERE DETAILS
. Fußbodenheizung mit raumweiser Thermostatregelung
. Qualitativ hochwertige Fliesen im Badezimmer und Gäste-WC
. Deckenhöhe: ca. 2,625 m
. Kunststoff-Fenster mit Isolierverglasung, Wärmeschutz und Schall- Schulz
. Luft-Wasser-Wärmepumpe
. eigener Stellplatz auf einer gemeinschaftlichen Parkfläche
. Garten mit Terrasse

Grundrisse

Grundrisse
1 / 1

Realisiere Dein Projekt

Bausubstanz und Energie

Möchtest du Details zum Energieverbrauch?info_energy_calculation-icon
  • Baujahr2026
  • Zustand der ImmobilieProjektiert
  • EnergieträgerLuft-/Wasser-Wärmepumpe

Preisdetails

Kaufpreis
445000 €
3.763,85 €/m²
Provision für Käufer
provisionsfrei
Weitere Preisinformationen
1 Stellplatz
Geschätzte Gesamtkosten
482.825 €1
Kaufpreis
445.000 €
Notarkosten (1,5%)
6.675 €
Grunderwerbsteuer (6,5%)
28.925 €
Grundbucheintrag (0,5%)
2.225 €
1Der angezeigte Wert ist eine automatisch berechnete Schätzung von immowelt.
2Bei den Angaben handelt es sich um ortsübliche Werte. Individuelle Kosten können abweichen.

Lage

address-icon
Werneuchen (16356)
Der Anbieter hat die genaue Adresse nicht freigegeben
Werneuchen überzeugt durch eine ideale Kombination aus ländlicher Ruhe und hervorragender Anbindung an Berlin sowie die umliegenden Regionen. Der kleine Wohnpark, der sich südlich des historischen Stadtkerns in einer idyllischen und ruhigen Lage befindet, bietet ein grünes Paradies für Familien. Hier genießen Sie die erholsame Atmosphäre von von Bäumen gesäumten Straßen und die Nähe zur Natur, während Sie gleichzeitig die urbanen Vorteile einer schnellen Erreichbarkeit Berlins nutzen können.

Die Region ist geprägt von familienfreundlichen Wohngebieten, historischen Villen und einer wald- und wasserreichen Umgebung, die Werneuchen zu einem aufstrebenden und attraktiven Wohnstandort machen. Für den täglichen Bedarf stehen zahlreiche Einkaufsmöglichkeiten, Schulen, Kitas und medizinische Einrichtungen zur Verfügung. Die geplante Erschließung neuer Grün- und Freizeitflächen sowie eine öffentliche Grünanlage mit Spielplatz erhöhen den Wohnkomfort und machen den Ort besonders familienfreundlich.

Die gute Verkehrsanbindung sorgt dafür, dass Sie in nur ca. 30 Minuten mit der Regionalbahn RB25 am Bahnhof Berlin Lichtenberg sind und in etwa 40 Minuten das Berliner Stadtzentrum mit dem Auto erreichen. Werneuchen ist somit der perfekte Ort für Pendler, die das ruhige Leben auf dem Land mit der Nähe zur Hauptstadt verbinden möchten. Hier können Sie ausgedehnte Spaziergänge unternehmen, Rad fahren oder einfach die frische Luft genießen, während Sie die Hektik des Alltags hinter sich lassen.

Nutzen Sie die Chance, in Werneuchen ein Zuhause zu finden, das modernes, nachhaltiges Wohnen in einer grünen Umgebung mit urbaner Nähe vereint.

Weitere Informationen

Sonstiges Unsere Angebote sind freibleibend und unverbindlich. Die Angaben basieren auf Aussagen des Verkäufers. Irrtum sowie Zwischenverkauf bleiben ausdrücklich vorbehalten.

Wir bitten um Verständnis, dass wir Detailinformationen nur liefern, sofern Sie uns Ihre kompletten Adress- und Kontaktdaten übermittelt haben.
Weitere interessante Objekte finden Sie auf unserer Firmenhomepage: www.kensington-berlin.com sowie auf www.kensington-international.com Stichworte Anzahl der Schlafzimmer: 3, Anzahl der Badezimmer: 1, Anzahl der separaten WCs: 1, Anzahl Terrassen: 2, Balkon-Terrassen-Fläche: 26,48 m², Bundesland: Brandenburg

Weitere Services

Lust auf eine Besichtigung?
Eine Frage zur Immobilie?
Nachricht hinzufügen
Mit der Nutzung der oben angegebenen Telefonnummer oder durch Klicken auf „Kontaktieren“ akzeptierst Du die Allgemeinen Nutzungsbedingungen, denen Du jederzeit widersprechen kannst. Weitere Informationen zum Datenschutz

Über den Anbieter

Wollankstraße 135, 13187 Berlin
partner badge
Partnerschaft
Frau Sophie KolanderDein Kontakt
Online-ID: 25G1MS5DEIT9
Referenznummer: Kensington_KBP_507_A
KENSINGTON Immobilien Berlin-Pankow
KENSINGTON Immobilien Berlin-Pankow
Bewertung: 5 von 5 Sternen
Nachricht hinzufügen
Mit der Nutzung der oben angegebenen Telefonnummer oder durch Klicken auf „Kontaktieren“ akzeptierst Du die Allgemeinen Nutzungsbedingungen, denen Du jederzeit widersprechen kannst. Weitere Informationen zum Datenschutz
MediumRectangleTop
MediumRectangleTop
Wie zufrieden bist du mit dieser Seite (nicht mit der Immobilie selbst)?