




Sonstiges zum Kauf • als Kapitalanlage geeignet660 m² • 1.660 m² Grundstück
660 m² • 1.660 m² Grundstück
***Großzügige Gewerbeeinheit mit vielfältigen Möglichkeiten
Merkmale
- 1.660 m² Grundstück
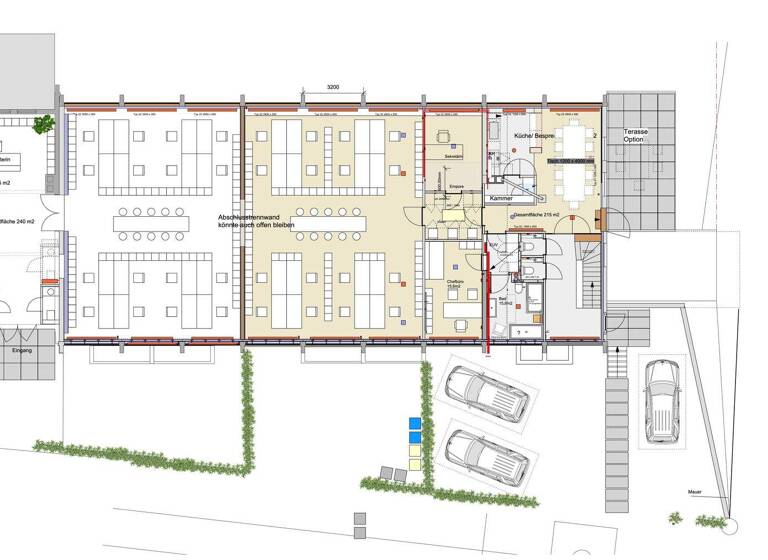
Grundrisse
Grundrisse
1 / 2
Realisiere Dein Projekt
Bausubstanz und Energie
Der Anbieter hat keine Informationen zum Energieverbrauch bereit gestellt.
- Baujahr1958
- Zustand der Immobilierenoviert / saniert
- HeizungsartZentralheizung
- EnergieträgerGas
Preisdetails
Provision für Käufer
3,57% (inkl. ges. MwSt.)
3,57% (inkl. ges. MwSt.) des Kaufpreises, fällig und zahlbar mit Abschluss des notariellen Kaufvertrages.
3,57% (inkl. ges. MwSt.) des Kaufpreises, fällig und zahlbar mit Abschluss des notariellen Kaufvertrages.
Lage

Burg, Solingen (42659)
Der Anbieter hat die genaue Adresse nicht freigegeben
Weitere Informationen
Weitere Services
Lust auf eine Besichtigung?
Eine Frage zur Immobilie?
Über den Anbieter
Daniel von Baum Immobilien GmbHMaklerbüro
Am Buschhäuschen 7, 42115 Wuppertal
Partnerschaft

Herr Artin MartinianDein Kontakt
Online-ID: 2n3lu5k
Referenznummer: S63 - GE
Wie zufrieden bist du mit dieser Seite (nicht mit der Immobilie selbst)?




