Version: 8.25.1Navigation überspringen
6,14 €
2 Zimmer  •  44 m² Verkaufsfläche
Immowelt logo

Laden zur Miete • provisionsfrei
6,14 €
/m²
2 Zimmer  •  44 m² Verkaufsfläche

Repräsentative Ladenfläche im Stadtzentrum von Döbeln

Objektbeschreibung Tolles kleines Geschäft mit Flair in zentraler Lage. Inmitten der Altstadt von Döbeln umgeben von hochwertigen sanierten Bürgerhäusern liegt die Kreuzstraße .
Im Erdgeschoss eines repräsentativen Wohn- und Geschäftshauses befindet sich die
zu vermietende Ladenfläche mit insgesamt 44 m².
Das Geschäft befindet sich in sehr guten Zustand.
Beste Möglichkeiten für einen kostengünstigen Einstieg.
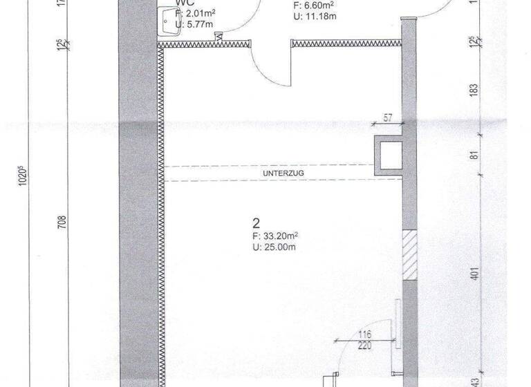
Das Büro wird gewerblich vermietet. Im Mietpreis ist die MWSt..zusätzlich zu berechnen Raumaufteilung Die Gesamtfläche beträgt insgesamt 44 m² und teilt sich in den 33 m² großen Verkaufsraum ,ein kleines Büro und ein WC
.
Eventuelle Änderungen der Ausstattung sind mit dem Vermieter abzusprechen.

Merkmale

  • frei ab sofort
  • 3 m Schaufensterfront
  • Bodenbelag: Fliesen
  • Beleuchtung: Deckenbeleuchtung
  • Fenster: Holz

Grundrisse

Grundrisse
1 / 1

Realisiere Dein Projekt

Bausubstanz und Energie

Energieausweis

Ein Energieausweis ist für diesen Gebäudetyp nicht notwendig.
  • Baujahr1880
  • HeizungsartZentralheizung
  • EnergieträgerGas
Immowelt logo

Mietkosten

Warmmiete
395 €
Nettomiete
6,14 €/m²
270 €
Nebenkosten
125 €
Heizkosten
in Nebenkosten enthalten
Provision für Mieter
provisionsfrei; provisionsfrei für Mieter
Kaution
zwei Monatsmieten

Lage

address-icon
Kreuzstraße 2Döbeln (04720)
1A-Lage Döbeln besitzt durch seine zentrale Lage zwischen den sächsischen Metropolen
Dresden ,Leipzig und Chemnitz logistisch einen sehr guten Ausgangspunkt.
Die traditionelle Innenstadt wird umschlossen von den zwei Flussarmen der Freiberger Mulde und bildet damit den Kern der sächsischen Kleinstadt.
Die hier angebotene Ladenfläche befindet sich in dieser zentralen Lage und bietet hiermit einen attraktiven Standort.

Weitere Informationen

Besichtigungstermine
Besichtigungstermine nach Vereinbarung mit

Dr. Gerd Naether Immobilien
Tel.: 01716124296
Mail: immobilien@dr-naether.de Stichworte Zustand: renoviert, saniert, gepflegt Sonstiges: ISDN, frei werdend

Weitere Services

Lust auf eine Besichtigung?
Eine Frage zur Immobilie?
Mit einer persönlichen Nachricht hast du bessere Chancen auf eine Antwort.
Mit der Nutzung der oben angegebenen Telefonnummer oder durch Klicken auf „Kontaktieren“ akzeptierst Du die Allgemeinen Nutzungsbedingungen, denen Du jederzeit widersprechen kannst. Weitere Informationen zum Datenschutz

Über den Anbieter

Rodelandstr. 4, 04159 Leipzig
partner badge
Partnerschaft
Herr Gerd Dr . NaetherDein Kontakt
Online-ID: 259HVYACST9K
Referenznummer: 28/2025
SW Immobilien
SW Immobilien
Bewertung: 5 von 5 Sternen
Mit einer persönlichen Nachricht hast du bessere Chancen auf eine Antwort.
Mit der Nutzung der oben angegebenen Telefonnummer oder durch Klicken auf „Kontaktieren“ akzeptierst Du die Allgemeinen Nutzungsbedingungen, denen Du jederzeit widersprechen kannst. Weitere Informationen zum Datenschutz
Wie zufrieden bist du mit dieser Seite (nicht mit der Immobilie selbst)?