Schönes Dorfhausprojekt zur Fertigstellung mit Pool und Garage in Sineu
Dieses stilvolle Sanierungsprojekt befindet sich in Sineu, einem gewachsenen Ort im Herzen Mallorcas, der für sein ursprüngliches Flair, seine gute Infrastruktur und seine zentrale Lage bekannt ist. Es vereint den ursprünglichen Charakter eines traditionellen mallorquinischen Dorfhauses mit zeitgemäßem Wohnkomfort und moderner Architektur.
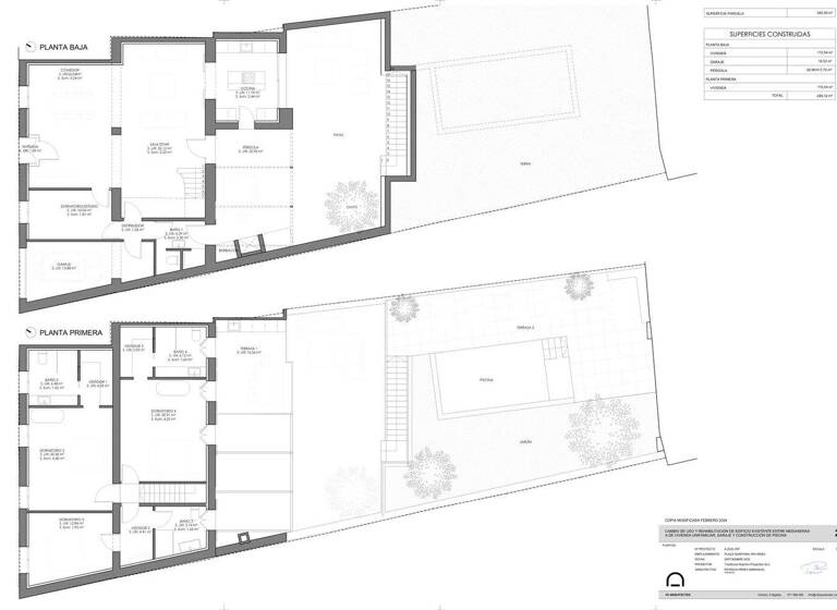
Das Grundstück umfasst ca. 340 qm. Geplant ist eine Wohn- und Nutzfläche von rund 262 qm, verteilt auf 4 Schlafzimmer und 4 Badezimmer. Die Raumaufteilung bietet sowohl Großzügigkeit als auch ein hohes Maß an Privatsphäre - ideal für Familien oder Gäste.
Die Innenräume sind offen gestaltet und überzeugen durch viel Tageslicht, klare Linien und eine moderne, zeitlose Ästhetik. Hochwertige Materialien und sorgfältig ausgewählte Ausstattungsdetails schaffen eine elegante und zugleich wohnliche Atmosphäre.
Die offene Küche ist nahtlos in den Wohnbereich integriert und bildet den zentralen Mittelpunkt des Hauses. Sie ist funktional konzipiert, modern ausgestattet, ideal für gesellige Stunden im Kreis von Familie und Freunden.
Der Außenbereich bietet einen 19 qm großen Pool, umgeben von einem kleinen angelegten Garten. Eine überdachte Terrasse lädt dazu ein, das mediterrane Klima auch in den Abendstunden entspannt zu genießen. Die Immobilie ist an das öffentliche Strom- und Wassernetz angeschlossen.
Ein attraktives Projekt für Käufer, die ein individuelles Zuhause mit Charakter in einer der authentischsten Regionen Mallorcas realisieren möchten. Eine gültige Baulizenz liegt vor.
Merkmale
340 m² Grundstück
voll klimatisiert
Bodenbelag: Fliesen
Swimmingpool
Grundrisse
Grundrisse
1 / 1
Realisiere Dein Projekt
Bausubstanz und Energie
Der Anbieter hat keine Informationen zum Energieverbrauch bereit gestellt.
EnergieträgerLuft-/Wasser-Wärmepumpe
Preisdetails
Kaufpreis
490000 €490.000 €
1.870,23 €/m²
Provision für Käufer
Bitte beachte, das Angebot kann bei Vertragsabschluss die Zahlung einer Provision beinhalten. Weitere Informationen erhältst Du vom Anbieter.
Lage
Sineu (07510)
Der Anbieter hat die genaue Adresse nicht freigegeben
Sineu ist geographisch das zentrale Dorf Mallorcas und befindet sich in der Es Plà Region. Es verfügt über einige architektonische Sehenswürdigkeiten wie z.B. die Pfarrkirche Nuestra Senyora de los Angeles oder das Kloster Convento de las Monjas. Die Hauptattraktion ist wöchentlich stattfindende Vieh- und Kunstmarkt. Die Einwohnerzahl Sineus liegt bei 3000.
Weitere Informationen
Stichworte
Anzahl der Schlafzimmer: 4, Anzahl der Badezimmer: 4, Bundesland: Balearische_Inseln