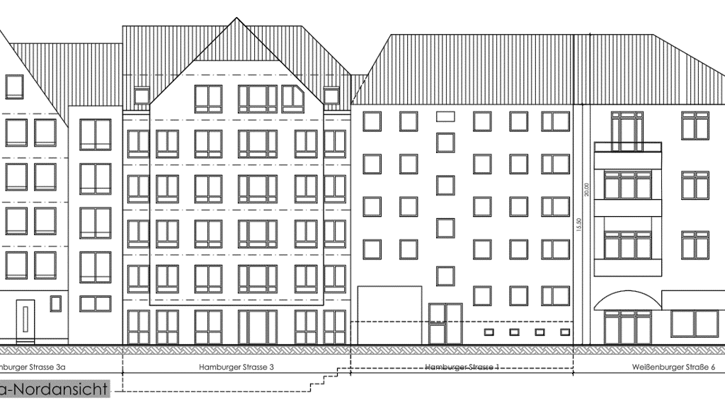
DO-City: Projektiertes Grundstück für ein 12 Familienhaus (eine der letzten Baulücken)
Derzeit befindet sich auf dem Grundstück ein kleines Bürohaus mit Garage und Stellplätzen. Unsere Projektplanung sieht den Abriss der Bestandsgebäude sowie dann den Neubau mit einer Straßenfront von 15 Metern und 6 Geschossen vor. Der Neubau erstreckt sich dann Fassadenbündig an die Nachbarschaftsgebäude und Straßenbündig zur Hamburger Straße.
Der zentrale Hauszugang erfolgt straßenseits, über ein modernes Treppenhaus mit Personenaufzug sind die Wohneinheiten erreichbar und angeschlossen, sodass die Barrierefreiheit im Gesamtobjekt gegeben ist.
Merkmale
270 m² Grundstück
voll erschlossen
Strom, Gas, Telekommunikation, Wasser
Realisiere Dein Projekt
Bausubstanz und Energie
Der Anbieter hat keine Informationen zu Energieverbrauch oder Zustand der Immobilie bereit gestellt.
Preisdetails
Preis auf Anfrage
Provision für Käufer
provisionsfrei
Lage
Hamburger Straße 3, Mitte, Dortmund (44135)
Weitere Informationen
Projekterschließung I Sonstige
Das Grundstück ist komplett erschlossen, im Hofbereich eingefriedet, das übrige verbleibende Grundstück angelegt.
Als Fassade ist eine mineralische Putzfassade vorgesehen. Fenster, Fensteranlagen, Balkon-türen erhalten 3-Fach-Isoverglasung, die Balkonbereiche werden mit Edelstahl-Glas-Brüstungen ausgeführt. Thermisch getrennte Ausführung in und am Objekt in Gänze.
Kaufoptionen
Optional verkaufen wir auch nur das Grundstück incl. aller Projekt- und Planungszeichnungen und incl. der Leistungen wie Honorare für bisherige Architektur-Planleistungen, Vermessung zum Kauffestpreis in Höhe von Euro 590.000,--.
Unsere Gesellschaft bietet darüber hinaus die Herstellung des Gesamtgebäudes gemäß vorliegender Bau- und Leistungsbeschreibung zum GU-Werkvertrag mit Komplettheitsklausel in Höhe von Euro 2.650.000,-- brutto bezugs- und schlüsselfertig an.
Wohnungsgrößen
Die geplanten Wohnungsgrößen liegen zwischen ca. 51 qm und 75 qm Wohnfläche.
Die Bau- und Leistungsbeschreibung kann wie auch die Planzeichnungen gern zur Verfügung gestellt werden.