

Wohnung zur Miete1312 €Nettokaltmiete2 Zimmer • 77,4 m² • frei ab sofort
1312 €
Nettokaltmiete
2 Zimmer • 77,4 m² • frei ab sofort
Moderne Etagenwohnung mit Terrasse und Stellplatz in 1140 Wien
Merkmale
- frei ab sofort
- offene KĂĽche
- AuĂźen-Stellplatz
- Garten
- Bad mit Dusche
- voll klimatisiert
- Bodenbelag: Fliesen, Parkett
- Loggia
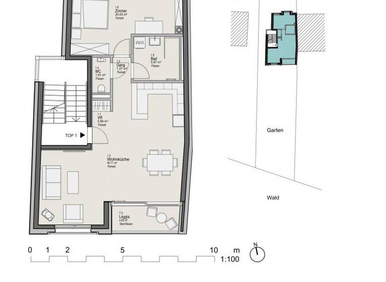
Grundrisse
Grundrisse
1 / 1
Realisiere Dein Projekt
Bausubstanz und Energie
Heizwärmebedarf (HWB)
C
Gesamtenergieeffizienz (fGEE)
- Baujahr2021
- Zustand der ImmobilieMassivhaus, Gepflegt
- HeizungsartFuĂźbodenheizung
- EnergieträgerGas
Mietkosten
Gesamtmiete
1.630,20 €
Nettokaltmiete
16,95 €/m²
1.312 €
Betriebskosten
170 €
Kaution
4.900,00Â €
Weitere Preisinformationen
1 Stellplatz
Nettokaltmiete: 1.312,00 EUR
Nettokaltmiete: 1.312,00 EUR
Lage

Wien (1140)
Weitere Informationen
Weitere Services
Lust auf eine Besichtigung?
Eine Frage zur Immobilie?
Ăśber den Anbieter
Bereswill Immobilien GmbHMaklerbĂĽro
Wiener StraĂźe 6-8 / 1 / 2, 3430 TULLN AN DER DONAU
Partnerschaft
Herr Udo BereswillDein Kontakt
Online-ID: 2mrt859
Referenznummer: OBGC20251110151053372d65fce14e6

Bereswill Immobilien GmbH
Bewertung: 1,5 von 5 Sternen
Wie zufrieden bist du mit dieser Seite (nicht mit der Immobilie selbst)?

