Version: 8.25.1Navigation überspringen
267.000 €
8 Zimmer  •  127,8 m²  •  1.551 m² Grundstück
Immowelt logo

Reihenendhaus zum Kauf
267000 €
2.089 €/m²
8 Zimmer  •  127,8 m²  •  1.551 m² Grundstück

Doppelhaushälfte mit Entwicklungspotenzial in guter Lage von Grevenbroich

Diese Doppelhaushälfte wurde 1907 in massiver Bauweise errichtet und um Anbauten im hinteren Bereich erweitert. Die Immobilie befindet sich in einem soliden, aber modernisierungsbedürftigen Zustand.

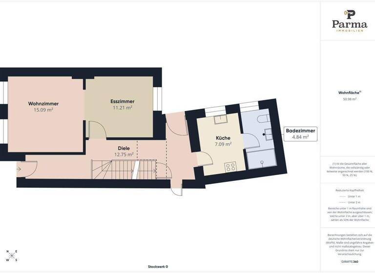
Das Erdgeschoss verfügt neben der Diele über ein offenes Ess-und Wohnzimmer, eine Küche und ein Duschbad mit Tageslicht. Von der Diele aus ist sowohl das Grundstück, als auch die Garage zu erreichen.

Das erste Obergeschoss setzt sich aus einem Schlafzimmer mit Ankleidezimmer, zwei weiteren Zimmern und einem Abstellraum zusammen.

Im Dachgeschoss gibt es ein Vorraum mit Waschtisch und WC,sowie zwei weitere Zimmer, die als Arbeits-, Gäste- und/oder Kinderzimmer genutzt wurden.

Der Keller des Objekts besteht neben dem Heizungsraum aus einem geräumigen Vorratsraum.

Im Außenbereich erwartet Sie eine überdachte Terrasse, ein Carport zur individuellen Nutzung, Zugang zur Waschküche und zum Tankraum.

Des Weiteren erreichen Sie den Garten auch über ein Gartentor, welches sich linksseitig neben dem Treppenaufgang zum Hauseingang befindet. Das große Grundstück verfügt zudem über weitere Stauräume im vorderen Bereich.

Abgerundet wird das zum Verkauf stehende Immobilienangebot mit einer Garage nebst Stallung.

Aufgrund der Räumlichkeiten eignet sich diese Immobilie ideal für eine große Familie.

Fordern Sie unverbindlich über das Kontaktformular ein Exposé sowie die 360°Tour an.

Merkmale

  • 1.551 m² Grundstück
  • Einbauküche
  • Keller
* modernisierungsbedürftig
* Wohnfläche: ca. 127m²
* 8 Zimmer
* Grundstücksgröße: 1.551 m²
* Bodenbeläge: Teppich- und Fliesenböden
* Holzdielen
* 2-Fach verglaste Kunststofffenster mit manuellen Rollläden Bj. 1990er-Jahre
* Gäste-WC im DG
* Tageslichtbad mit Dusche im EG
* Ölheizung Fa. Buderus Bj. 2015
* Garage mit Rolltor und Stallung
* Carport
* überdachte Terrasse

und vieles mehr....

Grundrisse

Grundrisse
1 / 4

Realisiere Dein Projekt

Bausubstanz und Energie

Möchtest du Details zum Energieverbrauch?info_energy_calculation-icon
  • Baujahr1907
  • HeizungsartZentralheizung
  • EnergieträgerÖl
Immowelt logo

Preisdetails

Kaufpreis
267000 €
2.088,87 €/m²
Provision für Käufer
3,57 % inkl. 19 % MwSt.
Geschätzte Gesamtkosten
299.227 €1
Kaufpreis
267.000 €
Notarkosten (1,5%)
4.005 €
Grunderwerbsteuer (6,5%)
17.355 €
Provision für Käufer (3,57%)
9.532 €
Grundbucheintrag (0,5%)
1.335 €
1Der angezeigte Wert ist eine automatisch berechnete Schätzung von immowelt.
2Bei den Angaben handelt es sich um ortsübliche Werte. Individuelle Kosten können abweichen.

Lage

address-icon
NoithausenGrevenbroich (41515)
Der Anbieter hat die genaue Adresse nicht freigegeben
Grevenbroich ist eine große kreisangehörige Stadt in Nordrhein-Westfalen, zum Rhein-Kreis Neuss gehörend. Sie liegt im Städtedreieck Düsseldorf-Köln-Mönchengladbach und hat 65.983 Einwohner (31. Dezember 2024).

Bildung:
In Grevenbroich befinden sich in städtischer Trägerschaft 34 Kindergärten, 13 Grundschulen, davon drei als offene Ganztagsschule, drei Gesamtschulen (Käthe-Kollwitz-Gesamtschule, Wilhelm-von-Humboldt-Gesamtschule, 3. Gesamtschule Grevenbroich), zwei Gymnasien (Pascal-Gymnasium und Erasmus-Gymnasium), eine Realschule, eine Volkshochschule und eine Jugendkunstschule. Folgende Schulen werden durch den Rhein-Kreis Neuss getragen: Berufsschule, Fachschule für Sozialpädagogik, Berufsfachschule für Gesundheitswesen und Förderschule mit dem Förderschwerpunkt geistige Entwicklung. Zudem befindet sich das AOK-Bildungszentrum Rheinland in der Ortschaft.

Infrastruktur:
Eine gute Infrastruktur und umfassende Nahversorgung sorgen für ein angenehmes Lebensumfeld. Grevenbroich bietet eine umfassende Nahversorgung: Supermärkte, vielfältige Einzelhandelsgeschäfte, Dienstleister und Handwerksbetriebe prägen das lebendige Ortsbild. Auch die medizinische Versorgung ist bestens aufgestellt, mit Haus- und Fachärzten nahezu aller Fachrichtungen.

Verkehr:
In Grevenbroich gibt es Anschlussstellen an die A 46 und die B 59 (ehemals A 540).
Die Flughäfen Düsseldorf und Köln/Bonn liegen max. 55km Fahrminuten entfernt. Der Grevenbroicher Bahnhof bildet den Knotenpunkt der Bahnstrecke Köln-Mönchengladbach mit der Bahnstrecke Düren-Neuss. Er wird von den Linien RB 39 (Düssel-Erft-Bahn), RE 8 (Rhein-Erft-Express) und RB 27 (Rhein-Erft-Bahn) bedient und bietet tagsüber im Halbstundenrhythmus Verkehrsverbindungen in die Nachbarstädte Düsseldorf und Köln sowie mindestens im Stundenrhythmus nach Mönchengladbach.
Der städtische Busverkehr wird hauptsächlich vom Busverkehr Rheinland (BVR) betrieben, so auch die drei Stadtbuslinien (891, 892, 893).

Weitere Informationen

Sonstiges Bei Fragen stehen wir Ihnen gerne zur Verfügung. Bitte nehmen
Sie Kontakt über das Kontaktformular auf.

Jacqueline Henot
Immobilienmaklerin

Parma Immobilien
Monschauer Straße 64
52355 Düren

Kontakt
Telefon: +49 2421 9748688
Mobil: +4915731935118
E-Mail: info@parmaimmobilien.de
www.parmaimmobilien.de Stichworte Anzahl der Schlafzimmer: 5, Anzahl der Badezimmer: 1, Anzahl der separaten WCs: 1, Anzahl Balkone und Terrassen: 2, Anzahl der Wohneinheiten: 1

Weitere Services

Lust auf eine Besichtigung?
Eine Frage zur Immobilie?
Nachricht hinzufügen
Mit der Nutzung der oben angegebenen Telefonnummer oder durch Klicken auf „Kontaktieren“ akzeptierst Du die Allgemeinen Nutzungsbedingungen, denen Du jederzeit widersprechen kannst. Weitere Informationen zum Datenschutz

Über den Anbieter

Monschauer Straße 64, 52355 Düren
partner badge
Partnerschaft
Frau Jacqueline HenotDein Kontakt
Online-ID: 26872ZJUWLRZ
Referenznummer: JH963
Parma Immobilien
Parma Immobilien
Bewertung: 5 von 5 Sternen
Nachricht hinzufügen
Mit der Nutzung der oben angegebenen Telefonnummer oder durch Klicken auf „Kontaktieren“ akzeptierst Du die Allgemeinen Nutzungsbedingungen, denen Du jederzeit widersprechen kannst. Weitere Informationen zum Datenschutz
Wie zufrieden bist du mit dieser Seite (nicht mit der Immobilie selbst)?