Büro- und Praxisflächen im Businesspark - Lippe - Ems zu verpachten
Das im Jahre 2020 komplett umgebaute und sehr repräsentative Gebäude im Businesspark Lippe-Ems bietet sich optimal für moderne Büro- und Praxisflächen an. Sanitärräume sind ebenfalls vorhanden. Die Räume werden mit einem hochwertigem Bodenbelag ausgestattet und bieten eine großzügige und helle Atmosphäre.
Optional stehen zudem Lagermöglichkeiten zur Verfügung.
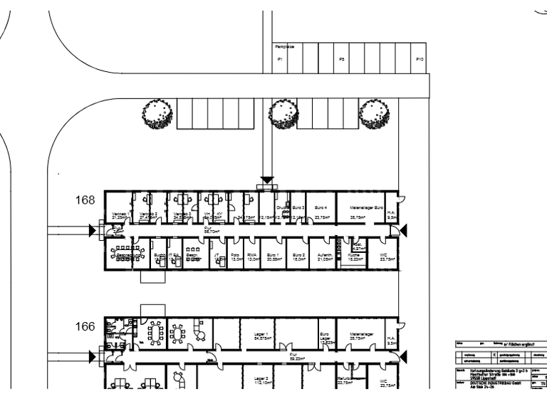
Grundrisse
Grundrisse
1 / 1
Realisiere Dein Projekt
Bausubstanz und Energie
Energieausweis
Ein Energieausweis ist für diesen Gebäudetyp nicht notwendig.
Der Business Park liegt in optimaler Lage im Vier-Landkreise-Kreuz: SOEST,
WARENDORF, PADERBORN, GĂśTERSLOH und zeichnet sich durch die top
ĂĽberregionale Verkehrsanbindung an die B55 sowie die Autobahnen A2/A44 aus.
Nutzen Sie die positiven Synergieeffekte eines einzigartigen Branchen-Mixes in einem dynamischen Standort für Business & Arbeitsqualität, der einen hohen Grundumsatz garantiert.
Parkplätze direkt am Objekt verfügbar.
Weitere Informationen
Mtl. Mietpreis ab 4,75 €/m² zzgl. MwSt. und NK!
Makler- und Provisionsfrei direkt vom EigentĂĽmer zu vermieten.