Version: 8.24.1Navigation überspringen
1.920 €
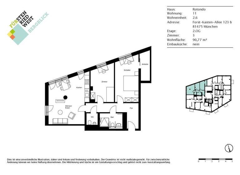
3 Zimmer  •  90,8 m²  •  2. Geschoss
Immowelt logo

Studio zur Miete - Erstbezug
1.920 €
3 Zimmer  •  90,8 m²  •  2. Geschoss

3-Zimmer-Apartment im Quartier FÜRstenried West mit offener Wohnküche

Moderne 3-Zimmer-Wohnung im Quartier Fürstenried: Bad mit Dusche, separates WC, flexibles Kinder-, Arbeits- oder Gästezimmer sowie Schlafzimmer mit Ankleide bieten Komfort für Alltag und Familie. Die helle Wohnküche öffnet sich nahtlos in den Wohnbereich. Durchdachte Abläufe, offene Raumgestaltung und hochwertige Ausstattung schaffen ein modernes, stilvolles Zuhause.
Teil eines Projekts
BERGBLICK
Neubauprojekt
  • alle Details des Projekts erhalten
  • alle verfügbaren Einheiten ansehen
Zum Projekt

Merkmale

  • Bezug: ab sofort
  • 2. Geschoss
  • Personenaufzug
  • Keller
Die Wohnungen im BERGBLICK wurden mit dem Anspruch gestaltet, zeitgemäße Wohnqualität mit langlebiger Ausstattung zu verbinden. Die klare Formsprache der Architektur setzt sich auch im Innenraum fort: Helle Materialien, funktionale Grundrisse und ein hoher Wohnkomfort prägen das Erscheinungsbild.

- Eichenparkett in Wohnräumen und Fluren
- Fußbodenheizung in allen Wohnbereichen
- Feinsteinzeug-Fliesen in Küche, Bad und WC
- Handtuchheizkörper im Bad
- 3-fach-verglaste Fenster mit hoher Energieeffizienz
- Verschattungssysteme in den Obergeschossen
- Einbauküchen in allen 1- bis 2-Zimmer-Wohnungen
- Balkon zu fast jeder Wohneinheit
- IP-fähige Gegensprechanlage
- Vollständig digitalisiertes Zugangssystem (inkl. Chip-Zutritt zu den Wohnungen)
- Mieterstrom-Modell über Photovoltaik-Anlage
- Begehbare Dachterrasse zur gemeinschaftlichen Nutzung
- Kostenfreies Quartiersfitnessstudio im Erd- und ersten Obergeschoss

Grundrisse

Grundrisse
1 / 1

Virtueller Rundgang

3D tour

Realisiere Dein Projekt

Bausubstanz und Energie

Energieausweis

A
  • Baujahr2024
  • Zustand der ImmobilieNeubau, Erstbezug
  • EnergieträgerFernwärme
Immowelt logo

Mietkosten

Warmmiete
2.210 €
Kaltmiete
21,15 €/m²
1.920 €
Nebenkosten
290 €
Heizkosten
in Warmmiete enthalten
Kaution
5760 €

Lage

address-icon
Forst-Kasten-Allee 123bThalk.Obersendl.-Forsten-Fürstenr.-SollnMünchen (81475)
Im Süden Münchens liegt Fürstenried - ein Stadtteil, der ursprünglich als reines Wohngebiet konzipiert wurde und bis heute von großzügigen Wohnanlagen, charmanten Einfamilienhäusern und viel Grün geprägt ist. Das namensgebende Schloss Fürstenried, auch liebevoll "Klein-Nymphenburg" genannt, ist das markanteste Bauwerk des Viertels und spiegelt den gewachsenen Charakter des Quartiers wider. Für Familien bietet Fürstenried ideale Bedingungen: eine hervorragend ausgebaute Infrastruktur, zahlreiche Spiel- und Grünflächen sowie eine direkte Nähe zur Natur sorgen für hohe Wohn- und Lebensqualität. Der öffentliche Nahverkehr und die schnelle Anbindung an die Autobahn machen sowohl das Münchner Stadtzentrum als auch das Umland bequem erreichbar. Zwischen den Häuserzeilen schaffen begrünte Verbindungswege, Gärten und kleine Parks ruhige Rückzugsorte und fördern die nachbarschaftliche Gemeinschaft. Zu den besonderen Erholungsangeboten zählen der Schlosspark, der Forstenrieder Park und der Wildpark - allesamt direkt vor der Haustür gelegen. Historische Sehenswürdigkeiten wie die Kirche St. Matthias oder die spätgotische Pestsäule verleihen dem Viertel kulturelle Tiefe. Rund um den Schweizer Platz mit dem Brunnen "Schweizer Brocken" findet regelmäßig ein Wochenmarkt statt, der die lokale Nahversorgung - ergänzt durch einen REWE und den geplanten EDEKA - abrundet. Auch gastronomisch bietet Fürstenried mit traditionellen Wirtshäusern und gemütlichen Biergärten viele Anlaufpunkte, die das soziale Leben im Viertel bereichern. Nicht zuletzt überzeugt Fürstenried durch seine Nähe zu Obersendling, einem bedeutenden Wirtschafts- und Gewerbestandort. Für dort Berufstätige verbindet sich hier urbanes Leben mit naturnahem Wohnen auf besonders attraktive Weise.

Weitere Informationen

Sonstiges Bei den Bildern handelt es sich um unverbindliche Visualisierungen und Bilder einer Musterwohnung. Gerne können Sie sich im Zuge einer Besichtigung der Musterwohnung vom BERGBLICK überzeugen.

WEITERE INFOS UNTER WWW.BERGBLICK-FUERSTENRIEDWEST.DE

HAFTUNGSAUSSCHLUSS:
Diese Anzeige dient nur der ersten Information und stellt kein Vertragsangebot dar. Die Anzeige begründet keine vertraglichen Ansprüche. Der Inhalt und die Angaben wurden nach bestem Wissen und Gewissen ermittelt. Für Richtigkeit und Vollständigkeit wird keine Haftung übernommen. Die Grundrisse sind nicht zur Maßentnahme geeignet. Bei den Flächenangaben handelt es sich um Planmaße.
Bei den Objektdarstellungen handelt es sich um unverbindliche Visualisierungen (Visualisierungen von ADRIAN BECK PHOTOGRAPHER / h4a Gessert + Randecker). Stichworte Garage vorhanden, Anzahl der Schlafzimmer: 2, Anzahl der Badezimmer: 1, Anzahl der separaten WCs: 1, 17 Etagen

Weitere Services

Lust auf eine Besichtigung?
Eine Frage zur Immobilie?
Nachricht hinzufügen
Mit der Nutzung der oben angegebenen Telefonnummer oder durch Klicken auf „Kontaktieren“ akzeptierst Du die Allgemeinen Nutzungsbedingungen, denen Du jederzeit widersprechen kannst. Weitere Informationen zum Datenschutz

Über den Anbieter

Galileistraße 1, 69115 Heidelberg
partner badge
Partnerschaft
Frau Tania ZieglerDein Kontakt
Keine Telefonnummer hinterlegt
Keine Telefonnummer hinterlegt
Online-ID: 26LXAECJDIU6
Referenznummer: bb_11#EpnLD
Müller Merkle Immobilien GmbH
Müller Merkle Immobilien GmbH
Bewertung: 4,2 von 5 Sternen
Nachricht hinzufügen
Mit der Nutzung der oben angegebenen Telefonnummer oder durch Klicken auf „Kontaktieren“ akzeptierst Du die Allgemeinen Nutzungsbedingungen, denen Du jederzeit widersprechen kannst. Weitere Informationen zum Datenschutz
Wie zufrieden bist du mit dieser Seite (nicht mit der Immobilie selbst)?