Version: 8.25.1Navigation überspringen
295 €
2 Zimmer  •  48 m²  •  2. Geschoss  •  frei ab sofort
Immowelt logo

Wohnung zur Miete
295 €
2 Zimmer  •  48 m²  •  2. Geschoss  •  frei ab sofort

Erstbezug nach Komplettrenovierung - Wohnen im Herzen der Stadt

Merkmale

  • Bezug: ab sofort
  • 2. Geschoss
  • Bad mit Dusche
  • Bodenbelag: Fliesen, Laminat

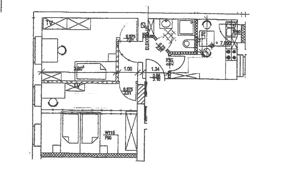
Grundrisse

Verschaffe dir einen genauen Überblick über die Raumaufteilung.selection_property_house-icon

Realisiere Dein Projekt

Bausubstanz und Energie

Energieausweis

F
  • Baujahr1950
  • HeizungsartZentralheizung
Immowelt logo

Mietkosten

Warmmiete
470 €
Kaltmiete
6,15 €/m²
295 €
Nebenkosten
175 €
Heizkosten
in Nebenkosten enthalten
Kaution
3 Kaltmieten

Lage

address-icon
Askanische Straße 13InnenstadtDessau-Roßlau (06842)
Die Askanische Straße ist zentral im Stadtteil Dessau-Mitte gelegen.
Fußläufig sind Sie im Herzen der Stadt mit Einkaufsmöglichkeiten, Restaurants, dem Kino und Zugang zum Bahnhof sowie zu öffentlichen Verkehrsmitteln.
Der Stadtpark, der mit zahlreichen Grünflächen zur Entspannung und/oder körperlicher Betätigung einlädt, befindet sich ebenfalls in direkter Nachbarschaft.

Weitere Informationen

Besichtigungstermine Besichtigungstermine
Bitte melden Sie sich während unserer Sprechzeiten bei uns, wenn Sie einen Besichtigungstermin vereinbaren möchten. Sie erreichen uns Montag, Dienstag und Donnerstag von 9.00 - 12.00 Uhr sowie von 14.00 - 17.00 Uhr. Stichworte Zustand: renoviert, gepflegt Versorgung: Eigene Stromversorgung Serviceleistungen: Hausmeister

Weitere Services

Lust auf eine Besichtigung?
Eine Frage zur Immobilie?
Mit einer persönlichen Nachricht hast du bessere Chancen auf eine Antwort.
Mit der Nutzung der oben angegebenen Telefonnummer oder durch Klicken auf „Kontaktieren“ akzeptierst Du die Allgemeinen Nutzungsbedingungen, denen Du jederzeit widersprechen kannst. Weitere Informationen zum Datenschutz

Über den Anbieter

Albrechtstr. 11, 06844 Dessau
partner badgepartner badge
3 Jahre Partnerschaft + Diamond Partner
Frau Anja GurbandtDein Kontakt

Weitere Unterlagen

Online-ID: 233SL9MUNAHB
Referenznummer: 12651-06
HuB Hausverwaltung und Immobilienbetreuung GmbH
Mit einer persönlichen Nachricht hast du bessere Chancen auf eine Antwort.
Mit der Nutzung der oben angegebenen Telefonnummer oder durch Klicken auf „Kontaktieren“ akzeptierst Du die Allgemeinen Nutzungsbedingungen, denen Du jederzeit widersprechen kannst. Weitere Informationen zum Datenschutz
Wie zufrieden bist du mit dieser Seite (nicht mit der Immobilie selbst)?