
roomers immobilien GmbH & Co. KG
Herrn Andreas Engelhardt
051 ···
Nr. anzeigenPreise & Kosten
Provision für Käufer
5,95 % vom beurkundeten Kaufpreis
Lage
Das Gewerbeobjekt befindet sich in zentraler Lage von Burgdorf, nur wenige Gehminuten von der Innenstadt entfernt. Die Gartenstraße ist eine etablierte Adresse innerhalb eines gemischt genutzten Bereichs, in dem sich Gewerbe, Dienstleistungen und Wohnbebauung harmonisch ergänzen. Dadurch bietet der Standort gute...
Das Objekt
Baujahr
1930
Bezug
sofort
Energie & Heizung
Warum sehe ich diese Anzeige? – Du siehst diese Anzeige basierend auf Ihrer Navigation auf unserer Website und den Suchkriterien, die du verwendet hast.
Weitere Energiedaten
Energieträger
Gas
Heizungsart
Zentralheizung
Details
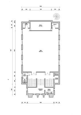
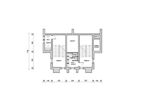
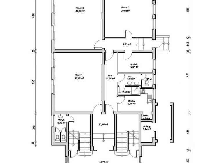
Objektbeschreibung
Das beeindruckende und äußerst vielseitige Objekt erstreckt sich über drei Etagen und bietet insgesamt ca. 532 m? flexibel nutzbare Fläche.
Das Gebäude aus dem Baujahr 1930 wurde im Jahr 2003 umfassend saniert und befindet sich in einem sehr gepflegten Zustand.
Es kombiniert historische Architektur mit modernen...
Weitere Informationen
Austattung
- Personen- und Lastenaufzug
- Vollständig unterkellert
- Mehrere Haupteingänge
- Hochwertige Elektroinstallation im gesamten Gebäude
- Große Fensterflächen für optimale Tageslichtnutzung
- Klassische Holzelemente
- Stilvolle Beleuchtung
- Große Küche im Untergeschoss
-...
Anbieter der Immobilie
roomers immobilien GmbH & Co. KG
Marktstraße 62, 31303 Burgdorf
Online-ID: 2mjqt5h
Finde Angebote wie dieses
Hier geht es zu unserem Impressum, den Allgemeinen Geschäftsbedingungen, den Hinweisen zum Datenschutz und nutzungsbasierter Online-Werbung.