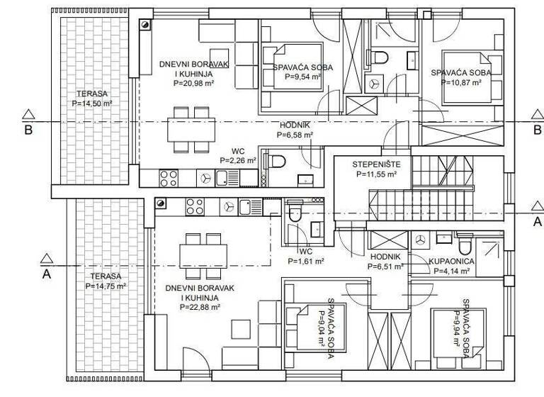
Zum Verkauf steht die Wohnung S3, die sich im ersten Stock eines modernen Neubaus im Ortsteil Brodarica, in unmittelbarer Nähe von Sibenik, befindet.
Die Gesamtfläche der Wohnung beträgt 72,50 m² und besteht aus einem Eingangsbereich, einem Wohnzimmer mit Küche und Essbereich, zwei Schlafzimmern, einem Badezimmer, einem separaten WC sowie einem Zugang zur Terrasse und einem eigenen Parkplatz.
Das Gebäude wird nach modernen Baustandards errichtet, mit besonderem Fokus auf hochwertige Materialien und Verarbeitung. Zur Ausstattung gehören erstklassige Tischlerei, moderne Keramik sowie hochwertige Sanitäreinrichtungen.
Die Lage ist sowohl für den täglichen Wohnbedarf als auch für Erholungszwecke äußerst geeignet, da sich der Strand nur 10 Meter entfernt befindet.
Für weitere Informationen oder zur Vereinbarung eines Besichtigungstermins stehen wir Ihnen gerne zur Verfügung.