ZADAR, PRIVLAKA - Villa im Bau mit Swimmingpool, 150 m vom Meer entfernt
ZADAR, PRIVLAKA - Villa mit Pool im Bau, 150 m vom Meer entfernt
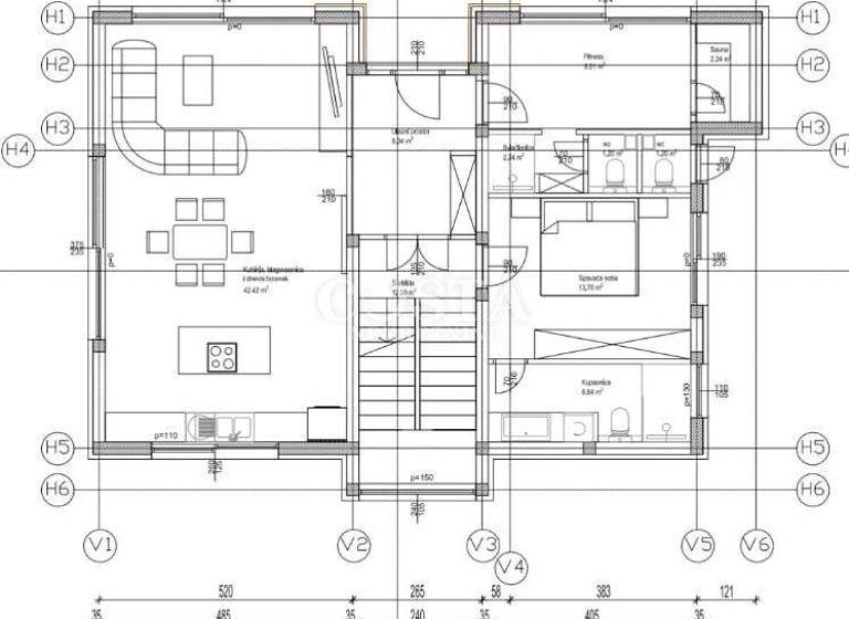
In Privlaka bei Zadar steht eine Villa mit Pool im Bau zum Verkauf. Das 234 m² große Gebäude entsteht auf einem 391 m² großen Grundstück und besteht aus Erdgeschoss und Obergeschoss. Im Erdgeschoss befinden sich ein geräumiges Wohnzimmer, eine Küche mit Essbereich, ein Schlafzimmer mit Bad, ein Gäste-WC sowie ein Wellnessbereich und ein Fitnessraum. Das Obergeschoss verfügt über drei Schlafzimmer mit Bädern und eine Loggia. Vom Wohnzimmer gelangt man auf eine Terrasse mit Pool und Garten. Ein privater Parkplatz im Hof ??ist ebenfalls vorhanden.
Die voraussichtliche Fertigstellung der Bauarbeiten ist in der zweiten Jahreshälfte Das Gebäude befindet sich in exzellenter Lage in Privlaka, im Norden, nahe der Brücke und nur 150 m vom Meer und dem Strand Vletak entfernt. Eine Strandbar und eine Bäckerei sind in der Nähe, und das Stadtzentrum ist 5 km entfernt. Auch die Königsstadt Nin ist nicht weit entfernt, und das Stadtzentrum von Zadar erreichen Sie nach 17 km. Der nächstgelegene Flughafen ist Zemunik, 30 km entfernt.
Sehr geehrte Kunden, die Maklergebühr wird gemäß den Allgemeinen Geschäftsbedingungen berechnet: https://costa-nekretnine.hr/o-nama/opci-uvjeti-poslovanja
ID CODE: 279
Merkmale
391 m² Grundstück
Grundrisse
Grundrisse
1 / 2
Realisiere Dein Projekt
Bausubstanz und Energie
Der Anbieter hat keine Informationen zum Energieverbrauch bereit gestellt.
Baujahr2026
Preisdetails
Kaufpreis
800000 €800.000 €
Provision für Käufer
Bitte beachte, das Angebot kann bei Vertragsabschluss die Zahlung einer Provision beinhalten. Weitere Informationen erhältst Du vom Anbieter.
Lage
Privlaka (23233)
Der Anbieter hat die genaue Adresse nicht freigegeben
Weitere Informationen
Stichworte
Gesamtfläche: 234,00 m², Anzahl der Schlafzimmer: 4, Anzahl der Badezimmer: 1, Anzahl der separaten WCs: 2, Anzahl der Wohn-Schlafzimmer: 2, 1 Etagen, Stadtzentrumslage