Version: 8.26.0Navigation überspringen
5,50 €
463 m² Bürofläche  •  teilbar ab 463 m²
Immowelt logo

Bürofläche zur Miete • provisionsfrei
5,50 €
/m²
463 m² Bürofläche  •  teilbar ab 463 m²

BUERO.flächen im Logistikcenter Leipzig/Halle an der A9

Das moderne Bürogebäude mit Aluminium-Fassade bietet über 3 Etagen durch die flexible Flächenaufteilung ideale Voraussetzungen für Firmen mit unterschiedlichen Anforderungenprofilen.

Die Büroflächen verfügen über folgende Grundausstattung:
- Stuhlrollenfester Teppichfußboden
- abgehängte Akustikdecke
- Cat5-Datenverkabelung
- praktische Einbauschränke
- Teeküche
- getrennte Sanitäranlagen

Aktuell stehen im Objekt folgende Flächen zur Verfügung, welche sowohl einzeln als auch zusammen angemietet werden können:
- ca. 463m² im 1. OG
- ca. 493m² im 2. OG
- ca. 206m² im 3. OG
- ca. 312m² im 3. OG

Stellplätze stehen ausreichend auf dem Gelände zur Anmietung zur Verfügung.

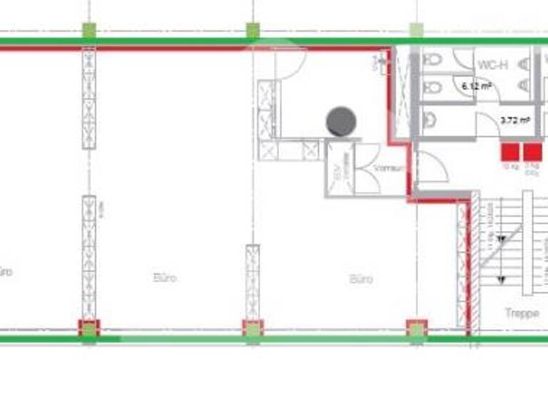
Grundrisse

Grundrisse
1 / 1

Bausubstanz und Energie

Möchtest du Details zum Energieverbrauch?info_energy_calculation-icon
Immowelt logo

Mietkosten

Monatliche Miete
5,50 €/m²
Zusätzliche Kosten
Heizkosten
Provision für Mieter
provisionsfrei
Kaution
keine Angabe

Lage

address-icon
GützLandsberg (06188)
Der Anbieter hat die genaue Adresse nicht freigegeben
Das Bürogebäude befindet sich am Rande eines Gewerbegebietes unweit von Landsberg entfernt. Über die B100 und A9 erreichen Sie mit dem Auto Leipzig in ca. 25 Minuten und Halle in 10 Minuten. Der Bahnhof liegt wenige Gehminuten entfernt und ermöglicht eine Direktverbindung nach Halle. Eine Busverbindung besteht durch die Linie 346 nach Landsberg ebenfalls.

Weitere Informationen

Sonstiges Der Mietpreis richtet sich nach Ausstattung, Lage im Gebäude und Vertragslaufzeit und liegt zwischen 5,50 EUR/ m² und 7,50 EUR/ m².


Flächenanmietung leicht gemacht?

Bitte sprechen Sie uns an, gern stellen wir Ihnen eine Auswahl geeigneter Büroflächenangebote zusammen. Für Fragen, ein persönliches Gespräch oder auch eine persönliche Terminvereinbarung stehen wir Ihnen gern telefonisch unter 0341 | 5643000 zur Verfügung.

Weitere Services

Lust auf eine Besichtigung?
Eine Frage zur Immobilie?
Mit einer persönlichen Nachricht hast du bessere Chancen auf eine Antwort.
Mit der Nutzung der oben angegebenen Telefonnummer oder durch Klicken auf „Kontaktieren“ akzeptierst Du die Allgemeinen Nutzungsbedingungen, denen Du jederzeit widersprechen kannst. Weitere Informationen zum Datenschutz

Über den Anbieter

Markt 9, 04109 Leipzig
Frau Kathrin Oldenburg
Frau Kathrin OldenburgDein Kontakt
Online-ID: 24I8SKM31ET9
Referenznummer: 1217/E9/Eh1
Wie zufrieden bist du mit dieser Seite (nicht mit der Immobilie selbst)?