Version: 8.25.1Navigation überspringen
ohne-makler.net - Immobilien selbst vermarkten
1.085 €
3 Zimmer  •  83,3 m²  •  frei ab 01.05.2026

Wohnung zur Miete - Erstbezug
1.085 €
3 Zimmer  •  83,3 m²  •  frei ab 01.05.2026

Wohnen mit Stil: 3 Zimmer-Neubauwohnung mit Balkon - ca. 83 m² in Fümmelse

Wohnung 3 - großzügiges Wohnen für Paare, Familien und Senioren

Das Neubauprojekt bietet modernen Wohnraum mit hoher Aufenthaltsqualität. Jede Wohnung verfügt über einen offenen Wohn- und Essbereich mit angrenzender Küche, ein modernes Bad mit Dusche oder Badewanne sowie ein bis zwei lichtdurchflutete Schlafzimmer. Zusätzlich steht Ihnen ein praktischer Abstellraum innerhalb der Wohnung zur Verfügung - ein echtes Plus für Alltag und Ordnung.

Die Wohnungen liegen im 1. und 2. Obergeschoss und verfügen über großzügige Balkone, die nach Südwesten ausgerichtet sind - ideal zum Entspannen im Grünen. Die Wohnungen im Erdgeschoss verfügen über Terrassen, die zum Verweilen einladen.

Dank der barrierearmen Gestaltung, des Aufzugs im Haus und der schwellenarmen Zugänge eignet sich das Objekt auch ideal für ältere Menschen oder Menschen mit eingeschränkter Mobilität. Die Ausstattung ist modern, pflegeleicht und auf ein angenehmes Wohnklima ausgerichtet.

Im Außenbereich sorgen gepflegte Wege, überwiegend überdachte Stellplätze mit einer vorbereiteten Infrastruktur für E-Mobilität für zusätzlichen Komfort und Nachhaltigkeit.

Merkmale

  • frei ab 01.05.2026
  • Personenaufzug
  • Badewanne
  • Balkon
  • Terrasse
  • Außen-Stellplatz
Balkon, Terrasse, Fahrstuhl, Vollbad

Bemerkungen:
Helle Räume mit modernen Grundrissen

Barrierearme Zugänge und Aufzug im Haus

Modernes Bad mit Dusche oder Wanne

Abstellraum innerhalb der Wohnung

Erstbezug, hochwertige Boden- und Wandbeläge

Fußbodenheizung

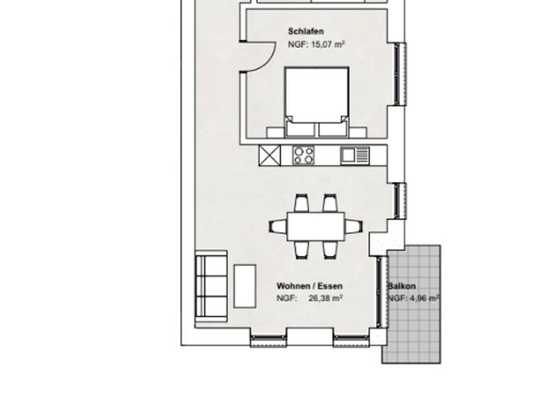
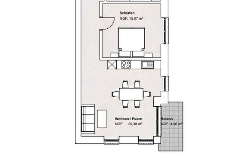
Grundrisse

Grundrisse
1 / 1

Realisiere Dein Projekt

Bausubstanz und Energie

Möchtest du Details zum Energieverbrauch?info_energy_calculation-icon
  • Baujahr2025
  • Zustand der ImmobilieErstbezug
  • HeizungsartFußbodenheizung
MediumRectangleTop

Mietkosten

Warmmiete
1.335 €
Kaltmiete
13,02 €/m²
1.085 €
Nebenkosten
150 €
Zusätzliche Kosten
Heizkosten
100 €
Kaution
3255 €
Weitere Preisinformationen
1 Stellplatz
Nettokaltmiete: 1.085,00 EUR

Lage

address-icon
Am Brüggeberge 14FümmelseWolfenbüttel (38304)
Fümmelse liegt nur wenige Fahrminuten vom Zentrum Wolfenbüttels entfernt und bietet gleichzeitig alle Vorteile eines ruhigen Wohnumfelds. Der Ort ist geprägt von Einfamilienhäusern, kleinen Mehrfamilienhäusern und einer freundlichen Nachbarschaft - optimal für Familien mit Kindern und für Menschen, die ihren Ruhestand in angenehmer Atmosphäre verbringen möchten.

Alle wichtigen Einrichtungen befinden sich in unmittelbarer Umgebung:

- Eine Grundschule ist in wenigen Gehminuten erreichbar

- Kindergarten und eine Tagespflegeeinrichtung des ASB befinden sich direkt in der Nachbarschaft

- Ein Spielplatz liegt gegenüber der Immobilie - perfekt für junge Familien

-Einkaufsmöglichkeiten, Ärzte und weitere Dienstleister sind schnell erreichbar

- Sehr gute Anbindung an die Innenstadt Wolfenbüttels und die B79

In Fümmelse finden Sie eine ruhige Wohnlage mit allen Vorzügen der Nähe zur Stadt - eingebettet in eine grüne Umgebung mit viel Lebensqualität.
Infrastruktur (im Umkreis von 5 km):
Apotheke, Kindergarten, Grundschule, Öffentliche Verkehrsmittel

Weitere Informationen

Sonstiges Heizungsart: Fußbodenheizung
Energieausweis nicht vorhanden

Interessiert? Wir senden Ihnen gern ein ausführliches Exposé mit allen Informationen zu Wohnung, Grundriss und Mietkonditionen zu - schreiben Sie uns einfach eine kurze Nachricht.

Makleranfragen nicht erwünscht. Nach § 7 UWG sind unaufgeforderte Kontaktaufnahmen durch Makler ohne ausdrückliche Einwilligung des Empfängers verboten!

ohne-makler (OM) ist weder Anbieter noch Vermittler der Immobilie. OM betreibt eine Plattform für Immobilieneigentümer, die unter anderem die gleichzeitige Veröffentlichung einzelner Inserate auf mehreren Immobilienportalen ermöglicht. Die Inhalte dieser Inserate werden ausschließlich von Dritten verantwortet. Für die Richtigkeit, Vollständigkeit oder Rechtmäßigkeit der Angaben übernimmt OM keine Haftung. Hinweise auf mögliche Rechtsverstöße können jederzeit gemeldet werden und werden nach Prüfung umgehend bearbeitet. Stichworte Stellplatz vorhanden, Anzahl Balkone: 1, Anzahl Terrassen: 1, Bundesland: Niedersachsen

Weitere Services

Lust auf eine Besichtigung?
Eine Frage zur Immobilie?
Mit einer persönlichen Nachricht hast du bessere Chancen auf eine Antwort.
Mit der Nutzung der oben angegebenen Telefonnummer oder durch Klicken auf „Kontaktieren“ akzeptierst Du die Allgemeinen Nutzungsbedingungen, denen Du jederzeit widersprechen kannst. Weitere Informationen zum Datenschutz

Über den Anbieter

Humboldtstr. 25 A, 21509 Glinde
partner badge
Partnerschaft
Privat von Lena KaiserDein Kontakt
Keine Telefonnummer hinterlegt
Keine Telefonnummer hinterlegt
Online-ID: 25X59CX9H4XJ
Referenznummer: 370666
ohne-makler.net - Immobilien selbst vermarkten
ohne-makler.net - Immobilien selbst vermarkten
Mit einer persönlichen Nachricht hast du bessere Chancen auf eine Antwort.
Mit der Nutzung der oben angegebenen Telefonnummer oder durch Klicken auf „Kontaktieren“ akzeptierst Du die Allgemeinen Nutzungsbedingungen, denen Du jederzeit widersprechen kannst. Weitere Informationen zum Datenschutz
MediumRectangleTop
MediumRectangleBottom
MediumRectangleTop
Wie zufrieden bist du mit dieser Seite (nicht mit der Immobilie selbst)?