Version: 8.25.1Navigation überspringen
350 €
frei ab sofort
Immowelt logo

Wohnung zur Miete
350 €
frei ab sofort

Neu attraktive WG-Zimmer im schönen Schwarzwald (K5)

Objektbeschreibung
Furtwangen liegt im Naturpark Südschwarzwald im Naturraum Südöstlicher Schwarzwald, rund 25 Kilometer westlich der Kreisstadt Villingen-Schwenningen und rund 27 Kilometer nordöstlich von Freiburg.
Die Stadt liegt zwischen 850 und 1150 m ü. NN und bezeichnet sich als „höchstgelegene Stadt Baden-Württembergs.
Die Einwohnerzahl beläuft sich auf etwa 9.100 und hat sich in den letzten zwei Jahrzehnten insgesamt rückläufig entwickelt:

Merkmale

  • Balkon
  • Bodenbelag: Fliesen, Laminat
  • Fenster: Kunststoff

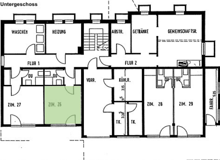
Grundrisse

Grundrisse
1 / 1

Bausubstanz und Energie

Energieausweis

E
  • Baujahr2003
  • EnergieträgerFernwärme
Immowelt logo

Mietkosten

Warmmiete
350 €
Kaltmiete
nicht angegeben
Kaution
800,00 €

Lage

address-icon
StadtgebietFurtwangen im Schwarzwald (78120)
Der Anbieter hat die genaue Adresse nicht freigegeben
Das Objekt bietet eine Vielzahl von Studentenzimmer in verschiedenen Größen und Ausstattungen. Folgende WG-Zimmer stehen zur Verfügung:

Zimmer 26 / UG - Ausstattung - mit Balkon / Terrasse
Zimmer 27 / UG - Ausstattung - mit Balkon / Terrasse
Zimmer 28 / UG - Ausstattung - mit Balkon / Terrasse

Zimmer 5 / EG - Ausstattung - mit Balkon / Terrasse
Zimmer 8 / EG - Ausstattung - mit Balkon / Terrasse

Bei Interesse eines WG Zimmers, beziehen Sie sich bitte auf die Zimmer-Nummer, um eine Zuordnung zu gewähren.

Weitere Informationen

Besichtigungstermine Interessiert? Kontaktieren Sie uns gerne für weitere Details oder zur Vereinbarung eines Besichtigungstermins.
Hinterlassen Sie Ihre Anschrift sowie Telefonnummer und wir werden uns umgehend mit Ihnen in Verbindung setzen.

Nach Absprache senden Sie uns die ausgefüllte und unterschriebene Mieter-Selbstauskunft per E-Mail zu.

Hinweise zum Datenschutz unter https://www.ifgruppe.com/impressum-datenschutz.
Mit Ihrer Kontaktanfrage bestätigen Sie uns, dass Sie die Datenschutzhinweise zustimmend zur Kenntnis genommen haben. Stichworte Zustand: neuwertig, gepflegt

Weitere Services

Lust auf eine Besichtigung?
Eine Frage zur Immobilie?
Mit einer persönlichen Nachricht hast du bessere Chancen auf eine Antwort.
Mit der Nutzung der oben angegebenen Telefonnummer oder durch Klicken auf „Kontaktieren“ akzeptierst Du die Allgemeinen Nutzungsbedingungen, denen Du jederzeit widersprechen kannst. Weitere Informationen zum Datenschutz

Über den Anbieter

Oberes Muldental 2, 09599 Freiberg
Team Vermietung
Team VermietungDein Kontakt
Online-ID: 25AUZ67L9RNQ
Wie zufrieden bist du mit dieser Seite (nicht mit der Immobilie selbst)?