Version: 8.22.5Navigation überspringen
6,50 €
391,8 m² Lagerfläche
Immowelt logo

Lagerhalle zur Miete
6,50 Euro pro Quadratmeter
391,8 m² Lagerfläche

GELEGENHEIT in Gamlitz - Großzügige Lagerfläche (auch teilbar) mit Parkplatz!

Die komplette Lagerfläche oder nur Teile davon mieten - alles ist möglich!
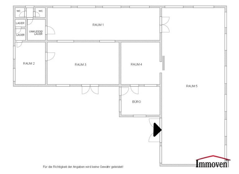
Die Räumlichkeiten (ca. 392 m²) einer ehemaligen Tischlerei eignen sich ideal für ein großes Lager. Je nach Bedarf kann die ganze Fläche oder nur Teilstücke angemietet werden (siehe Raumaufteilung).

Abstellplätze sind ausreichend am Grundstück vorhanden.

Wichtiger Hinweis:
Mietpreis = € 6,50/m² Netto
Die Befristung erfolgt nach Vereinbarung. Die Vergebührung für das Finanzamt richtet sich nach der Befristung.

_Haben wir Ihr Interesse geweckt? Dann freuen wir uns auf Ihre Anfrage._

Lage und Infrastruktur:
Gamlitz ist eine Gemeinde in der Südsteiermark und bekannt für Wein, Kulinarik, Kultur und Natur. Die zentrale Lage in Gamlitz ermöglicht eine sehr gute Zufahrt und das Objekt ist über die A9 und die B69 einfach erreichbar.
----------------------------

Über weitere Informationen zu diesem bzw. ähnlichen Objekten aus unserem bestehenden Portfolio informieren wir Sie sehr gerne persönlich auf Anfrage unter:

Norbert Karner
+43 (0)664 160 30 61
n.karner@immovent.at

Im Falle einer erfolgreichen Vermittlung stellen wir 3 BMM zzgl. 20% USt als Provision in gesetzlicher Höhe in Rechnung. Die obigen Angaben über dieses Objekt erfolgen mit der Sorgfalt eines ordentlichen Immobilienmaklers und basieren auf den Angaben und Informationen des Eigentümers. Daher können wir keine Gewähr für die Richtigkeit der Angaben leisten.

Hinweis gemäß Energieausweisvorlagegesetz: Ein Energieausweis wurde vom Eigentümer bzw. Verkäufer, nach unserer Aufklärung über die generell geltende Vorlagepflicht, sowie Aufforderung zu seiner Erstellung noch nicht vorgelegt. Daher gilt zumindest eine dem Alter und der Art des Gebäudes entsprechende Gesamtenergieeffizienz als vereinbart. Wir übernehmen keinerlei Gewähr oder Haftung für die tatsächliche Energieeffizienz der angebotenen Immobilie.

Infrastruktur / Entfernungen

Gesundheit
Arzt <500m
Apotheke <1.000m
Krankenhaus <5.500m

Kinder & Schulen
Schule <500m
Kindergarten <6.000m
Höhere Schule <7.500m

Nahversorgung
Supermarkt <1.000m
Bäckerei <3.000m
Einkaufszentrum <1.500m

Sonstige
Bank <500m
Geldautomat <500m
Post <3.000m
Polizei <500m

Verkehr
Bus <500m
Autobahnanschluss <5.500m
Bahnhof <3.000m

Angaben Entfernung Luftlinie / Quelle: OpenStreetMap

Merkmale

  • Bezug: nach Vereinbarung

Grundrisse

Grundrisse
1 / 1

Realisiere Dein Projekt

Bausubstanz und Energie

Der Anbieter hat keine Informationen zu Energieverbrauch oder Zustand der Immobilie bereit gestellt.
Immowelt logo

Mietkosten

Monatliche Miete
6,50 €/m²
Provision für Mieter
3 Bruttomonatsmieten zzgl. 20% USt.
Kaution
3 Bruttomonatsmieten

Lage

address-icon
Gamlitz (8462)

Weitere Informationen

Stichworte Stellplatz vorhanden, Nutzfläche: 391,77 m², Bundesland: Steiermark

Weitere Services

Lust auf eine Besichtigung?
Eine Frage zur Immobilie?
Nachricht hinzufügen
Mit der Nutzung der oben angegebenen Telefonnummer oder durch Klicken auf „Kontaktieren“ akzeptierst Du die Allgemeinen Nutzungsbedingungen, denen Du jederzeit widersprechen kannst. Weitere Informationen zum Datenschutz

Über den Anbieter

Immovent GmbHMaklerbüro
Niederhofstraße 2, 1120 Wien
Herr Norbert KarnerDein Kontakt

Weitere Unterlagen

Online-ID: 2lhq35f
Referenznummer: OBGC2025072311301680026eb040bae
Immovent GmbH
Bewertung: 5 von 5 Sternen
Nachricht hinzufügen
Mit der Nutzung der oben angegebenen Telefonnummer oder durch Klicken auf „Kontaktieren“ akzeptierst Du die Allgemeinen Nutzungsbedingungen, denen Du jederzeit widersprechen kannst. Weitere Informationen zum Datenschutz
Wie zufrieden bist du mit dieser Seite (nicht mit der Immobilie selbst)?