Version: 8.24.0Navigation überspringen
ohne-makler.net - Immobilien selbst vermarkten
639.000 €
8 Zimmer  •  183 m²  •  300 m² Grundstück

Einfamilienhaus zum Kauf • provisionsfrei
639000 €
3.492 €/m²
8 Zimmer  •  183 m²  •  300 m² Grundstück

Alleinstehendes Einfamilienhaus für die große Familie/ Ideales Mehrgenerationenhaus

Alleinstehendes Einfamilienhaus/ Mehrgenerationenhaus
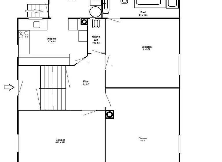
Das Haus erstreckt sich über 3 Wohnebenen und verfügt über insgesamt 8 Zimmer, Gäste-WC, 2 Bäder und 2 neue Einbauküchen (2019), sowie einem kleinen Garten mit einem (gemauerten) Gartenhaus und zwei große Kellerräume.
Im EG befindet sich eine 3-Zimmer-Wohnung mit Küche, Tageslicht-Bad mit Badewanne und Dusche, Gäste-WC und Waschmaschinenraum mit Gas-Brennwert-Therme (2016).
Im 1. OG finden sich drei weitere Zimmer, eine 2. Küche, ein neues Tageslicht-Duschbad (2019) und der Zugang zum Dachspitz mit zwei weiteren Zimmern.
Das Haus wird derzeit frei gemacht.
Das Haus wurde fortlaufend modernisiert und renoviert:
2016: neuer Hausanschluß für Gas, Wasser und Strom, neue Gas-Brennwerttechnik-Therme, Elektronik im OG
2019 : neues Duschbad im OG sowie neue Einbauküchen im EG und OG
2022: Neue Wohnungstüren im EG, neuer Laminatboden im DG....

Merkmale

  • Bezug: nach Absprache
  • 300 m² Grundstück
  • Einbauküche
  • Keller
  • Garten
  • Badezimmer: Badewanne, Bad mit Dusche
  • Bodenbelag: Parkett, Kunststoff
  • offener Kamin
Garten, Keller, Vollbad, Duschbad, Einbauküche, Gäste-WC, Kamin, Parkett, Sonstiges (s. Text)

Grundrisse

Grundrisse
1 / 2

Realisiere Dein Projekt

Bausubstanz und Energie

Energieausweis

C
  • Baujahr1908
  • Zustand der Immobilierenoviert / saniert
  • HeizungsartZentralheizung
  • EnergieträgerGas
MediumRectangleTop

Preisdetails

Kaufpreis
639000 €
3.491,80 €/m²
Provision für Käufer
provisionsfrei; keine Provision, courtagefrei
Geschätzte Gesamtkosten
683.730 €1
Kaufpreis
639.000 €
Notarkosten (1,5%)
9.585 €
Grunderwerbsteuer (5%)
31.950 €
Grundbucheintrag (0,5%)
3.195 €
1Der angezeigte Wert ist eine automatisch berechnete Schätzung von immowelt.
2Bei den Angaben handelt es sich um ortsübliche Werte. Individuelle Kosten können abweichen.

Lage

address-icon
OberesslingenEsslingen am Neckar (Oberesslingen) (73730)
Der Anbieter hat die genaue Adresse nicht freigegeben
Das vielseitig nutzbare Haus ist verkehrsgünstig in der Nähe des S-Bahnhofes Oberesslingen gelegen und ideal für eine größere Familie oder als Mehrgenerationenhaus geeignet. S-Bahn, Bus und alle Einkaufsmöglichkeiten, Ärzte, Kindergarten und Schulen sind in fußläufiger Entfernung.
Infrastruktur (im Umkreis von 5 km):
Apotheke, Lebensmittel-Discount, Allgemeinmediziner, Kindergarten, Grundschule, Hauptschule, Realschule, Gymnasium, Gesamtschule, Öffentliche Verkehrsmittel

Weitere Informationen

Sonstiges Heizungsart: Zentralheizung
Energieträger: Gas


Makleranfragen nicht erwünscht. Nach § 7 UWG sind unaufgeforderte Kontaktaufnahmen durch Makler ohne ausdrückliche Einwilligung des Empfängers verboten!

ohne-makler (OM) ist weder Anbieter noch Vermittler der Immobilie. OM betreibt eine Plattform für Immobilieneigentümer, die unter anderem die gleichzeitige Veröffentlichung einzelner Inserate auf mehreren Immobilienportalen ermöglicht. Die Inhalte dieser Inserate werden ausschließlich von Dritten verantwortet. Für die Richtigkeit, Vollständigkeit oder Rechtmäßigkeit der Angaben übernimmt OM keine Haftung. Hinweise auf mögliche Rechtsverstöße können jederzeit gemeldet werden und werden nach Prüfung umgehend bearbeitet. Stichworte Nutzfläche: 50,00 m², Anzahl der Schlafzimmer: 6, Anzahl der Badezimmer: 2, Anzahl der separaten WCs: 1, Bundesland: Baden-Württemberg, 3 Etagen

Weitere Services

Lust auf eine Besichtigung?
Eine Frage zur Immobilie?
Nachricht hinzufügen
Mit der Nutzung der oben angegebenen Telefonnummer oder durch Klicken auf „Kontaktieren“ akzeptierst Du die Allgemeinen Nutzungsbedingungen, denen Du jederzeit widersprechen kannst. Weitere Informationen zum Datenschutz

Über den Anbieter

Humboldtstr. 25 A, 21509 Glinde
partner badge
Partnerschaft
Privat von PeterDein Kontakt
Keine Telefonnummer hinterlegt
Keine Telefonnummer hinterlegt
Online-ID: 2nkxt5k
Referenznummer: 374601
ohne-makler.net - Immobilien selbst vermarkten
ohne-makler.net - Immobilien selbst vermarkten
Nachricht hinzufügen
Mit der Nutzung der oben angegebenen Telefonnummer oder durch Klicken auf „Kontaktieren“ akzeptierst Du die Allgemeinen Nutzungsbedingungen, denen Du jederzeit widersprechen kannst. Weitere Informationen zum Datenschutz
MediumRectangleTop
MediumRectangleBottom
MediumRectangleTop
Wie zufrieden bist du mit dieser Seite (nicht mit der Immobilie selbst)?