

claussen immobilien
Frau Sylvia Claußen
041 ···
Nr. anzeigenPreise & Kosten
Provision für Käufer
3 % vom Kaufpreis inkl. MwSt. Dem Verkäufer wird eine Provision in gleicher Höhe berechnet.
Lage
Das Reihenendhaus befindet sich in einer ruhigen Wohnstraße in Buchholz in der Nordheide. Das Umfeld ist familienfreundlich und geprägt von gepflegten Reihenhäusern. Einkaufsmöglichkeiten, Schulen, Kitas sowie Ärzte sind in kurzer Entfernung erreichbar. Das angrenzende Waldgebiet lädt zu ausgedehnten Spaziergängen und...
Das Haus
Kategorie
Reihenendhaus
Baujahr
1967
Bezug
sofort
Energie & Heizung
Warum sehe ich diese Anzeige? – Du siehst diese Anzeige basierend auf Ihrer Navigation auf unserer Website und den Suchkriterien, die du verwendet hast.
Energieausweistyp
Bedarfsausweis
Gebäudetyp
Wohngebäude
Baujahr laut Energieausweis
2020
Wesentliche Energieträger
GAS
Gültigkeit
bis 21.10.2035
Effizienzklasse
H
Endenergiebedarf
297,30 kWh/(m²·a)
Weitere Energiedaten
Energieträger
Gas
Heizungsart
Zentralheizung
Details
Objektbeschreibung
Dieses gepflegte Reihenendhaus wurde 1967 in begehrter und familienfreundlicher Lage auf einem sehr schönen und sonnigen ca. 315 m² großen Eckgrundstück erbaut. Das Haus bietet auf ca. 84 m² Wohnfläche genügend Platz für eine Familie. Durch den Einbau einer Dachgaube könnte weiterer Wohnraum geschaffen werden. Das Haus ist...
Ausstattung
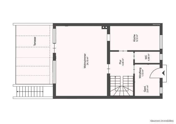
Erdgeschoss:
Das Erdgeschoss besticht durch eine harmonische Grundrissgestaltung und ein modernes, freundliches Wohnambiente. Helle Räume und kurze Wege sorgen für hohen Wohnkomfort:
. Großzügiger Wohn- und Essbereich mit großen Fensterfronten und Terrassenzugang - viel Tageslicht, ein freier Blick in den Garten und...
Preisinformation
1 Garagenstellplatz
Weitere Informationen
Sonstiges
Bitte haben Sie Verständnis dafür, dass wir ausschließlich Anfragen mit vollständigen Kontaktdaten (inkl. Adresse) bearbeiten können.
Alle Angaben in diesem Exposé erfolgen ohne Gewähr und basieren auf Informationen, die uns vom Eigentümer zur Verfügung gestellt wurden. Eine Haftung für die Richtigkeit...
Anbieter der Immobilie

Online-ID: 2lhey5z
Referenznummer: SC445
Finde Angebote wie dieses
Hier geht es zu unserem Impressum, den Allgemeinen Geschäftsbedingungen, den Hinweisen zum Datenschutz und nutzungsbasierter Online-Werbung.