Version: 8.24.0Navigation überspringen
Mietkosten auf Anfrage
1.530 m² Verkaufsfläche
Immowelt logo

Verkaufsfläche zur Miete • provisionsfrei
Mietkosten auf Anfrage
1.530 m² Verkaufsfläche

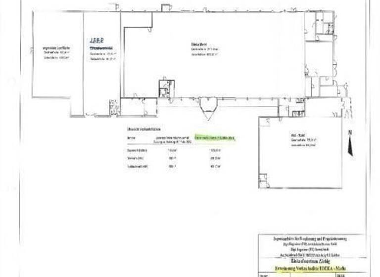
1530 m² Gewerbefläche in Zörbig zu vermieten

Das Fachmarktzentrum hat sich über mehr als 20 Jahr hinweg als Nahversorgungszentrum etabliert.
Es gab und gibt im Einzugsgebiet keine weiteren gewichtigen Einzelhandelsflächen. Die Ankermieter Edeka (Vollsortiment- Lebensmittelmarkt) und Aldi (Discounter) sind seit einigen Jahren etabliert. Eine baurechtliche Grundlage zur Erweiterung und Modernisierung des Marktes wurde in 2012 verabschiedet.

LEH 2 Discounter 630,00

Freifläche 401,17

Freifläche (abgetrennt mit Ständerwand) 498,00


Merkmale

  • Bezug: 2000

Grundrisse

Grundrisse
1 / 1

Realisiere Dein Projekt

Bausubstanz und Energie

Energieausweis

Endenergieverbrauch (Wärme)

Endenergieverbrauch (Strom)

  • Baujahr2000
  • EnergieträgerGas
Immowelt logo

Mietkosten

Miete auf Anfrage
Provision für Mieter
provisionsfrei
Kaution
keine Angabe

Lage

address-icon
Radegasterstr. 63GörzigZörbig (06369)
Die Stadt Zörbig mit ca. 10.000 Einwohner befindet sich im Zentrum der Städte Halle (Saale), Köthen (Anhalt), Dessau-Roßlau, Bitterfeld-Wolfen und Leipzig, im Bundesland Sachsen-Anhalt, im Landkreis
Anhalt-Bitterfeld. Zörbig ist eine Stadt mit Tradition und Perspektive, besitzt eine gute soziale Infrastruktur, eine über 200-jährige Industriegeschichte, eine nachhaltige Wirtschaftsentwicklung und ein vielfältiges Angebot für alle Generationen.

Für weitere Informationen und die Vereinbarung eines Besichtigungstermins stehen wir Ihnen gerne zur Verfügung.

Weitere Services

Lust auf eine Besichtigung?
Eine Frage zur Immobilie?
Nachricht hinzufügen
Mit der Nutzung der oben angegebenen Telefonnummer oder durch Klicken auf „Kontaktieren“ akzeptierst Du die Allgemeinen Nutzungsbedingungen, denen Du jederzeit widersprechen kannst. Weitere Informationen zum Datenschutz

Über den Anbieter

Keine Telefonnummer hinterlegt
Höfelstraße 5, 72411 Bodelshausen
partner badge
6 Jahre Partnerschaft
Keine Telefonnummer hinterlegt

Weitere Unterlagen

Online-ID: 2jgeh5z
Monika Rieker DLG GmbH & Co. KG
Bewertung: 3,4 von 5 Sternen
Nachricht hinzufügen
Mit der Nutzung der oben angegebenen Telefonnummer oder durch Klicken auf „Kontaktieren“ akzeptierst Du die Allgemeinen Nutzungsbedingungen, denen Du jederzeit widersprechen kannst. Weitere Informationen zum Datenschutz
Wie zufrieden bist du mit dieser Seite (nicht mit der Immobilie selbst)?