Version: 8.25.1Navigation überspringen
346.559 €
6 Zimmer  •  130 m²  •  108 m² Grundstück
Immowelt logo

Haus zum Kauf - Erstbezug • provisionsfrei
346559 €
2.666 €/m²
6 Zimmer  •  130 m²  •  108 m² Grundstück

Charmantes Reihenendhaus mit Garten – Ihr neues Zuhause wartet auf Sie!

Ein Reihenhaus ist eine optimale Lösung für alle, die sich genügend Raum zum Wohnen wünschen, aber zugleich in einer Region bauen in der Grundstücke knapp sind. Das Reihenhaus Mainz 128 wird in klassischer Weise als Kombination von vier Reihenhäusern gebaut. Vier Familien leben quasi unter einem Dach, Sie können von der guten Nachbarschaft und der Hausgemeinschaft profitieren. Zugleich lässt Ihr Reihenhaus genügend Platz für Ihre Individualität.

Im Erdgeschoss verfügen Sie über ein großes Wohnzimmer mit einladendem Essbereich. Die hohen Fenster machen Ihre Räume hell und freundlich und gewähren Ihnen einen freien Blick in den Garten. Über den geschwungenen Aufgang erreichen Sie das Obergeschoss mit einem gemütlichen Schlaf- und Gästezimmer sowie einem geräumigen Kinderzimmer.

Unter dem Dach schlägt das Herz tatsächlich höher – zumindest bei allen, die sich schon immer eine großzügiges Galerie als kreativen Freiraum gewünscht haben. Es gibt hier ein weiteres Zimmer zur freien Verfügung.

Das Reihenhaus Mainz bietet individuelles Wohnen in der Gemeinschaft und vereint damit viele Vorteile.

Rufen Sie uns gleich an!
Wir helfen Ihnen gerne weiter!

Ihr zuständiger Berater:
Herr Martin Hardtke
Tel. 0171 3590820
email: hardtke@tc-mv.de

Merkmale

  • 2 Geschosse
  • 108 m² Grundstück
  • offene Küche
  • Kein Keller
  • Außen-Stellplatz
  • Gäste-WC
  • Gartenanteil
  • Terrasse

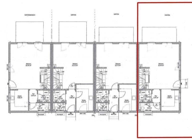
Grundrisse

Grundrisse
1 / 3

Realisiere Dein Projekt

Bausubstanz und Energie

Möchtest du Details zum Energieverbrauch?info_energy_calculation-icon
  • Baujahr2026
  • Zustand der ImmobilieNeubau, Massivhaus, Erstbezug
  • HeizungsartFußbodenheizung
  • EnergieträgerElektro, Luft-/Wasser-Wärmepumpe
Immowelt logo

Preisdetails

Kaufpreis
346559 €
2.665,84 €/m²
Provision für Käufer
provisionsfrei; keine Käuferprovision
Geschätzte Gesamtkosten
374.284 €1
Kaufpreis
346.559 €
Notarkosten (1,5%)
5.198 €
Grunderwerbsteuer (6%)
20.794 €
Grundbucheintrag (0,5%)
1.733 €
1Der angezeigte Wert ist eine automatisch berechnete Schätzung von immowelt.
2Bei den Angaben handelt es sich um ortsübliche Werte. Individuelle Kosten können abweichen.

Lage

address-icon
PflaumenalleeLubmin (17509)
So ein Traum von Haus braucht auch ein passendes Grundstück. Hierbei handelt es um ein Reihenendhaus mit einem Grundstück von 114 m² zzgl. einem Anteil an gemeinschaftlicher Zuwegung und Parkplatz im schönen Seebad Lubmin.
Der Kaufpreis des Grundstückes ist im Angebot bereits enthalten!

Die Arbeiten für Hausanschlüsse, Erdarbeiten, Bauwasser und Baustrom, Außenanlagen, Maler und Bodenbeläge sind im Angebot nicht enthalten. Gern unterbreiten wir Ihnen hierzu auf Wunsch ein Angebot.

Im Angebot ist ein PKW-Außenstellplatz enthalten. Auf Wunsch kann ein weiterer PKW-Außenstellplatz für 3.750,00 Euro erworben werden.

Weitere Reihenmittel- oder Reihenendhäuser stehen zur Verfügung - bitte sprechen Sie uns an!

Weitere Informationen

Stichworte Sonstiges/Wohnen: Galerie

Weitere Services

Lust auf eine Besichtigung?
Eine Frage zur Immobilie?
Nachricht hinzufügen
Mit der Nutzung der oben angegebenen Telefonnummer oder durch Klicken auf „Kontaktieren“ akzeptierst Du die Allgemeinen Nutzungsbedingungen, denen Du jederzeit widersprechen kannst. Weitere Informationen zum Datenschutz

Über den Anbieter

Am Elisenpark 34, 17491 Greifswald
partner badge
Partnerschaft
Herr Martin Hardtke
Herr Martin HardtkeDein Kontakt
Online-ID: 268TM6ZYGDRW
Referenznummer: Lubmin-A-REH_ re
Massivhaus M-V GmbH
title
Massivhaus M-V GmbH
Nachricht hinzufügen
Mit der Nutzung der oben angegebenen Telefonnummer oder durch Klicken auf „Kontaktieren“ akzeptierst Du die Allgemeinen Nutzungsbedingungen, denen Du jederzeit widersprechen kannst. Weitere Informationen zum Datenschutz
Wie zufrieden bist du mit dieser Seite (nicht mit der Immobilie selbst)?