THUJAWEG12 - Grunderwerbsteuer (6,5%) vom Bauträger geschenkt!
*Reservieren Sie bis zum 31.03.2026 eine Eigentumswohnung und Sie erhalten die Grunderwerbsteuer (6,5%) vom Bauträger geschenkt (nach Kauf der Eigentumswohnung).
Moderner Wohnkomfort in ländlicher Idylle - verbunden mit einer praktischen Anbindung an Köln!
Profitieren Sie von einer hohen Lebensqualität in einem grünen Umfeld, ohne auf die Vorteile urbanen Lebens verzichten zu müssen. Hier finden Sie ein Zuhause, in dem Sie sich rundum wohlfühlen können - ideal für Familien, Pendler und all jene, die das Besondere suchen!
THUJAWEG 12 - Ein Zuhause, das Ihnen Geborgenheit und Komfort bietet!
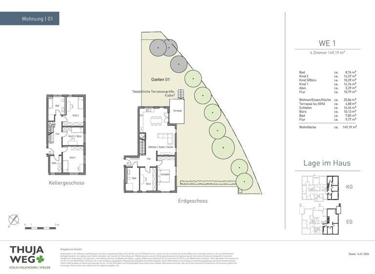
Es entstehen acht exklusive 2- bis 6-Zimmer-Eigentumswohnungen mit Wohnflächen von ca. 51,76 bis 149,19 m². Jede Wohnung bietet eine durchdachte Raumaufteilung mit viel Platz für alle Lebenslagen und einen zusätzlichen Abstellraum.
Die hochwertigen Ausstattungs-Highlights für Sie: . Großzügige Terrassen im Erdgeschoss mit eigenem Gartenanteil . Penthouse-Wohnungen mit privaten Dachterrassen und Blick ins Grüne . Gemeinschaftsgarten und kleiner Kinderspielplatz nur für die Bewohner . Außenstellplatz für jede Wohnung mit Vorrichtung für E-Ladestation . Im Kellergeschoss und draußen ausreichend Fahrradstellplätze . Fußbodenheizung mit Einzelraumsteuerung für alle Räume . Ein behindertengerechter Aufzug verbindet alle Geschosse . Farbvideo-Sprechanlage . Glasfaseranschluss möglich . Dreifachverglaste Kunststoff-Fenster mit elektrischen Rollläden und einer Fernsteuerung pro Raum . KfW 55 Effizienzhaus mit energiesparender Bauweise und eigener zentraler Wärmepumpe
Fühlen Sie sich eingeladen, Ihre neue Traumwohnung persönlich zu besichtigen - ganz ohne Käuferprovision!
Merkmale
Bezug: Herbst 2026
Erdgeschoss
AuĂźen-Stellplatz
Gäste-WC
Garten
Die hochwertigen Ausstattungs-Highlights für Sie: . Großzügige Terrassen im Erdgeschoss mit eigenem Gartenanteil . Penthouse-Wohnungen mit privaten Dachterrassen und Blick ins Grüne . Gemeinschaftsgarten und kleiner Kinderspielplatz nur für die Bewohner . Außenstellplatz für jede Wohnung mit Vorrichtung für E-Ladestation . Im Kellergeschoss und draußen ausreichend Fahrradstellplätze . Fußbodenheizung mit Einzelraumsteuerung für alle Räume . Ein behindertengerechter Aufzug verbindet alle Geschosse . Farbvideo-Sprechanlage . Glasfaseranschluss möglich . Dreifachverglaste Kunststoff-Fenster mit elektrischen Rollläden und einer Fernsteuerung pro Raum . KfW 55 Effizienzhaus mit energiesparender Bauweise und eigener zentraler Wärmepumpe
Grundrisse
Grundrisse
1 / 2
Realisiere Dein Projekt
Bausubstanz und Energie
Energieausweis
A+
Baujahr2025
Zustand der ImmobilieNeubau, Massivhaus, Erstbezug
HeizungsartFuĂźbodenheizung
EnergieträgerLuft-/Wasser-Wärmepumpe
Preisdetails
Kaufpreis
690000 €690.000 €
4.524,43 €/m²
Provision für Käufer
0% inkl. MwSt.
Weitere Preisinformationen
1 Stellplatz
Geschätzte Gesamtkosten
773.283 €1
Kaufpreis
690.000 €
Kaufnebenkosten
83.283 €
2
Notarkosten (1,5%)
10.350 €
Grunderwerbsteuer (6,5%)
44.850 €
Provision für Käufer (3,57%)
24.633 €
Grundbucheintrag (0,5%)
3.450 €
1Der angezeigte Wert ist eine automatisch berechnete Schätzung von immowelt.
2Bei den Angaben handelt es sich um ortsübliche Werte. Individuelle Kosten können abweichen.
Lage
Altstadt-Nord, Köln (50765)
Der Anbieter hat die genaue Adresse nicht freigegeben
Volkhoven-Weiler im nördlichen Köln ist ein idyllischer Stadtteil, der seinen ländlichen Charme bewahrt hat und gleichzeitig von der Nähe zur Kölner Innenstadt profitiert. Hier genießen Sie die Ruhe eines grünen Umfelds und sind dennoch nur 15 Minuten von der Innenstadt entfernt. Auch Düsseldorf und Leverkusen sind dank der direkten Anbindung an die A1 und A57 schnell erreichbar.
Bushaltestellen in der Nähe sorgen für eine schnelle Verbindung zu den wichtigsten Verkehrsknotenpunkten. Nur wenige Minuten entfernt liegt das Medienzentrum Ossendorf, ein kreativer Hotspot, in dem zahlreiche große Arbeitgeber aus den Bereichen Medien, IT und Kreativwirtschaft ansässig sind. Das macht den Standort besonders attraktiv für Berufspendler und Menschen aus der Medienbranche.
In Volkhoven-Weiler finden Sie zahlreiche Freizeitmöglichkeiten wie die nahegelegenen Fühlinger- und Escher Badeseen, die zu Erholung und sportlichen Aktivitäten einladen. Auch das grüne Umland bietet zahlreiche Möglichkeiten für Outdoor-Aktivitäten und Familienausflüge. Zahlreiche Radwege und Waldgebiete laden zu Naturerlebnissen direkt vor der Haustür ein. Für Familien bietet Volkhoven-Weiler eine hervorragende Infrastruktur: Kindergärten, wie der Evangelische Kindergarten Volkhoven, und die Grundschule Volkhoven-Weiler sind schnell zu erreichen. Das Gymnasium Köln-Ossendorf bietet eine weiterführende Ausbildung, und für den täglichen Bedarf sorgen Supermärkte, Geschäfte und das nahegelegene City-Center Chorweiler.
Weitere Informationen
Stichworte
Anzahl der Wohneinheiten: 8, Bundesland: Nordrhein-Westfalen, 3 Etagen